Residential Development Site at Lower Clavelshay Farm, Clavelshay, TA6
Description
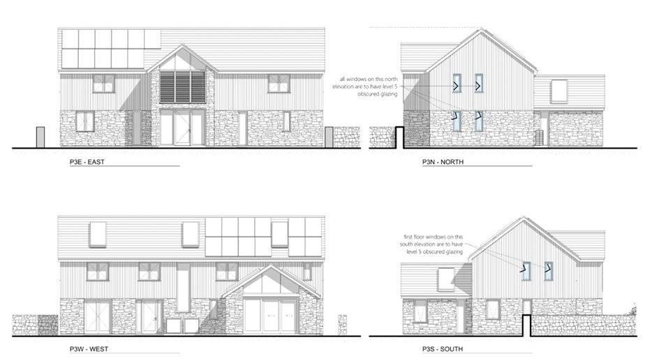
Residential Development Site at Lower Clavelshay Farm, Clavelshay, Bridgwater, Somerset, TA6 6PJ A residential development site for five dwellings on the edge of the Quantock Hills. The Residential Development Site at Lower Clavelshay Farm comprises a range of farm buildings with planning permission for replacement with five no. dwellings. The site is situated in an elevated position with views across the valley to mature woodland and beyond. In all extending to 1.86 acres. For sale by private treaty as a whole. Location Lower Clavelshay Farm is situated in a private location in the Quantock Hills, a particularly unspoilt area of Somerset. Clavelshay is a hamlet situated to the north of the attractive villages of West Monkton, Thurloxton and North Petherton which between them offer a wide range of facilities and good local pubs. It is also situated about six miles north of the county town of Taunton and six miles to the west of Bridgwater. Both towns offer day to day facilities including supermarkets, surgeries, numerous independent shops and restaurants. The M5 motorway at Junctions 24 or 25 are both within five miles and offer good access to the national motorway network. The mainline train station at Taunton is a fifteen-minute drive with access to regular train services to Bristol, the Midlands and London. The fast train to London Paddington takes less than two hours. The regional airports at Bristol and Exeter are less than an hour away. There are an excellent range of state and independent schools in the area including Taunton School, Kings College and Queens College in Taunton plus Wellington School (some 12 miles away) and Millfield (20 miles). The Property The site comprises a range of farm buildings for replacement with five no. dwellings. Permission has been granted for the following: – Plot 1 comprising a four-bedroom two storey dwelling of 154sqm plus a garage. – Plot 2 comprising a three-bedroom single storey dwelling of 150sqm. – Plot 3 comprising a four-bedroom two storey dwelling of 211sqm. – Plot 4 comprising a three-bedroom single storey dwelling of 150sqm plus a car port. – Plot 5 comprising a three-bedroom single storey dwelling of 159sqm plus a car port. Because the site has permission in lieu of consent originally obtained using Class Q Permitted Development rights, the Community Infrastructure Levy (CIL) has been calculated as zero, and there is no Phosphate or Biodiversity Net Gain (BNG) mitigation requirement. The Vendor plans to remove several of the farm buildings on the site, comprising the largest/northernmost loose housing shed and lean-to off, the covered yard between the former parlour and the cubicle house, and the loose housing/machinery store west of the Dutch barn. Method of Sale The property is offered for sale by private treaty with a guide price of £850,000. Planning Planning permission was granted in October 2025 under application reference 37/25/00049 by Somerset Council (Sedgemoor District) for the erection of five no. dwellings (in lieu of Class Q approvals 37/23/00016 and 37/23/00017) with garaging, means of access, landscaping and associated works. Services The Vendor has had a borehole installed to service the site, ready for the purchaser to install a pump, etc. A right will be reserved to water from this supply for the Vendor’s retained property. There is an existing mains electricity supply to the site. Wayleaves, Easements, & Rights of Way The property will be sold with a right of access over the existing farm drive running down from the road. Health & Safety Potential purchasers are required to take particular care when inspecting the property, recommended to wear supportive footwear for viewings and are advised to be conscious of potentially uneven and slippery ground surfaces. Local Authority Somerset Council (Sedgemoor) Viewings Viewings are by appointment with Carter Jonas on 01823 428590. What Three Words /// diamonds.unite.racing
Location
Key property details
- Accessibility
- Ask agent
- Parking
- Ask agent
- Garden
- No
- Carter Jonas reference
- TAU260017
Description
Residential Development Site at Lower Clavelshay Farm, Clavelshay, Bridgwater, Somerset, TA6 6PJ A residential development site for five dwellings on the edge of the Quantock Hills. The Residential Development Site at Lower Clavelshay Farm comprises a range of farm buildings with planning permission for replacement with five no. dwellings. The site is situated in an elevated position with views across the valley to mature woodland and beyond. In all extending to 1.86 acres. For sale by private treaty as a whole. Location Lower Clavelshay Farm is situated in a private location in the Quantock Hills, a particularly unspoilt area of Somerset. Clavelshay is a hamlet situated to the north of the attractive villages of West Monkton, Thurloxton and North Petherton which between them offer a wide range of facilities and good local pubs. It is also situated about six miles north of the county town of Taunton and six miles to the west of Bridgwater. Both towns offer day to day facilities including supermarkets, surgeries, numerous independent shops and restaurants. The M5 motorway at Junctions 24 or 25 are both within five miles and offer good access to the national motorway network. The mainline train station at Taunton is a fifteen-minute drive with access to regular train services to Bristol, the Midlands and London. The fast train to London Paddington takes less than two hours. The regional airports at Bristol and Exeter are less than an hour away. There are an excellent range of state and independent schools in the area including Taunton School, Kings College and Queens College in Taunton plus Wellington School (some 12 miles away) and Millfield (20 miles). The Property The site comprises a range of farm buildings for replacement with five no. dwellings. Permission has been granted for the following: – Plot 1 comprising a four-bedroom two storey dwelling of 154sqm plus a garage. – Plot 2 comprising a three-bedroom single storey dwelling of 150sqm. – Plot 3 comprising a four-bedroom two storey dwelling of 211sqm. – Plot 4 comprising a three-bedroom single storey dwelling of 150sqm plus a car port. – Plot 5 comprising a three-bedroom single storey dwelling of 159sqm plus a car port. Because the site has permission in lieu of consent originally obtained using Class Q Permitted Development rights, the Community Infrastructure Levy (CIL) has been calculated as zero, and there is no Phosphate or Biodiversity Net Gain (BNG) mitigation requirement. The Vendor plans to remove several of the farm buildings on the site, comprising the largest/northernmost loose housing shed and lean-to off, the covered yard between the former parlour and the cubicle house, and the loose housing/machinery store west of the Dutch barn. Method of Sale The property is offered for sale by private treaty with a guide price of £850,000. Planning Planning permission was granted in October 2025 under application reference 37/25/00049 by Somerset Council (Sedgemoor District) for the erection of five no. dwellings (in lieu of Class Q approvals 37/23/00016 and 37/23/00017) with garaging, means of access, landscaping and associated works. Services The Vendor has had a borehole installed to service the site, ready for the purchaser to install a pump, etc. A right will be reserved to water from this supply for the Vendor’s retained property. There is an existing mains electricity supply to the site. Wayleaves, Easements, & Rights of Way The property will be sold with a right of access over the existing farm drive running down from the road. Health & Safety Potential purchasers are required to take particular care when inspecting the property, recommended to wear supportive footwear for viewings and are advised to be conscious of potentially uneven and slippery ground surfaces. Local Authority Somerset Council (Sedgemoor) Viewings Viewings are by appointment with Carter Jonas on 01823 428590. What Three Words /// diamonds.unite.racing
Location
Key property details
- Accessibility
- Ask agent
- Parking
- Ask agent
- Garden
- No
- Carter Jonas reference
- TAU260017