- Sold
Balls Barn Lane, Hewish, BS24
Description
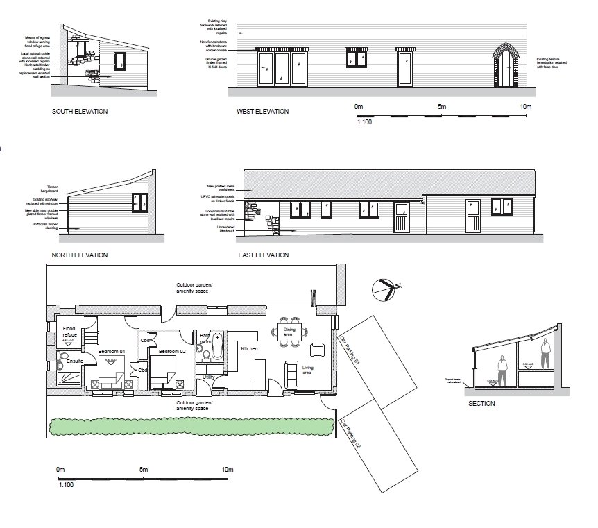
Barns at Rolstone, Manor Farm, Balls Barn Lane, Hewish, Weston-super-mare, Somerset, BS24 6UR Two barns with permission for conversion to two no. dwellings with about one acre. The Barns at Rolstone Manor Farm comprise two traditional barns with planning permission for conversion to two no. two bedroom dwellings together with a Dutch barn with lean-tos off and adjoining pasture paddocks. In all extending to 0.94 of an acre. For sale as a whole or in up to two separate lots. Location The Barns at Rolstone Manor Farm are located between Weston-super-mare and Congresbury with easy access to the A370 and in turn the M5 motorway at Junction 21. The Barns Lot 1: The proposed Lot 1 comprises the westernmost barn of block, brick, and stone elevations under a tiled roof with a lean-to garage off to the north and enclosed garden to the west. The western boundary comprises the close board fence. The semi-detached garage to the north is included and the northern boundary comprises the garage wall and close board fence. The proposed eastern boundary is the mid-point between barns 1 and 2 and the proposed southern boundary is 12’ to the south of the barn. Lot 2: The proposed Lot 2 comprises the eastern barn of block, brick, and stone elevations under a tiled roof. In addition to the barn itself, there is a Dutch barn with lean-tos off included with Lot 2, together with two pasture paddocks to the east of the buildings. The proposed western boundary comprises the mid-point between barns 1 and 2 and the proposed northern boundary comprises the close board fencing. Method of sale The property is offered for sale by private treaty as a whole or in two separate lots. The guide price for the whole is £300,000. The guide price for Lot 1 is £125,000 and the guide price for Lot 2 is £175,000. Tenure & Possession The freehold of the property is offered for sale with vacant possession available upon completion. Planning Planning permission was granted by North Somerset Council in December 2023 under application reference 23/P/0815/FUL for the conversion and change of use of two no. barns to create two no. residential dwellings with associated gardens and change of use of agricultural access track to mixed residential and agricultural use. Services Two separate mains water supplies have been connected to the south of the barns. Mains electricity appears to be available on the adjoining land. The purchaser(s) will need to install sewage treatment plant(s) to service the dwelling(s). Potential purchasers should make their own enquiries of the relevant service providers of the availability and capacity of mains services for the site. Wayleaves Easements & Rights of Way The site will be sold with a right of access over the track as hatched on the plan. Health & Safety Potential purchasers should take particular care when inspecting the property being mindful of uneven and potentially slippery surfaces as well as livestock and machinery which may be present/operating at the time of inspection. Local Authority North Somerset Council Viewings Potential purchasers may view the barns during reasonable daylight hours after informing the selling agents, Carter Jonas, on 01823 428590. Directions From Junction 21 of the M5 motorway follow the A371 to Bristol and Congresbury. Take the next right signed Rolstone onto West Rolstone Road. Follow the road for about ¼ of a mile, passing the entrance for Rolstone Manor. Turn left onto Balls Barn Lane. Follow this lane for a short distance and the new entrance drive to the barns will be found on the left. What Three Words ///educated.oldest.yelled
Location
Key property details
- Accessibility
- Ask agent
- Parking
- Ask agent
- Garden
- No
- Carter Jonas reference
- TAU240039
Description
Barns at Rolstone, Manor Farm, Balls Barn Lane, Hewish, Weston-super-mare, Somerset, BS24 6UR Two barns with permission for conversion to two no. dwellings with about one acre. The Barns at Rolstone Manor Farm comprise two traditional barns with planning permission for conversion to two no. two bedroom dwellings together with a Dutch barn with lean-tos off and adjoining pasture paddocks. In all extending to 0.94 of an acre. For sale as a whole or in up to two separate lots. Location The Barns at Rolstone Manor Farm are located between Weston-super-mare and Congresbury with easy access to the A370 and in turn the M5 motorway at Junction 21. The Barns Lot 1: The proposed Lot 1 comprises the westernmost barn of block, brick, and stone elevations under a tiled roof with a lean-to garage off to the north and enclosed garden to the west. The western boundary comprises the close board fence. The semi-detached garage to the north is included and the northern boundary comprises the garage wall and close board fence. The proposed eastern boundary is the mid-point between barns 1 and 2 and the proposed southern boundary is 12’ to the south of the barn. Lot 2: The proposed Lot 2 comprises the eastern barn of block, brick, and stone elevations under a tiled roof. In addition to the barn itself, there is a Dutch barn with lean-tos off included with Lot 2, together with two pasture paddocks to the east of the buildings. The proposed western boundary comprises the mid-point between barns 1 and 2 and the proposed northern boundary comprises the close board fencing. Method of sale The property is offered for sale by private treaty as a whole or in two separate lots. The guide price for the whole is £300,000. The guide price for Lot 1 is £125,000 and the guide price for Lot 2 is £175,000. Tenure & Possession The freehold of the property is offered for sale with vacant possession available upon completion. Planning Planning permission was granted by North Somerset Council in December 2023 under application reference 23/P/0815/FUL for the conversion and change of use of two no. barns to create two no. residential dwellings with associated gardens and change of use of agricultural access track to mixed residential and agricultural use. Services Two separate mains water supplies have been connected to the south of the barns. Mains electricity appears to be available on the adjoining land. The purchaser(s) will need to install sewage treatment plant(s) to service the dwelling(s). Potential purchasers should make their own enquiries of the relevant service providers of the availability and capacity of mains services for the site. Wayleaves Easements & Rights of Way The site will be sold with a right of access over the track as hatched on the plan. Health & Safety Potential purchasers should take particular care when inspecting the property being mindful of uneven and potentially slippery surfaces as well as livestock and machinery which may be present/operating at the time of inspection. Local Authority North Somerset Council Viewings Potential purchasers may view the barns during reasonable daylight hours after informing the selling agents, Carter Jonas, on 01823 428590. Directions From Junction 21 of the M5 motorway follow the A371 to Bristol and Congresbury. Take the next right signed Rolstone onto West Rolstone Road. Follow the road for about ¼ of a mile, passing the entrance for Rolstone Manor. Turn left onto Balls Barn Lane. Follow this lane for a short distance and the new entrance drive to the barns will be found on the left. What Three Words ///educated.oldest.yelled
Location
Key property details
- Accessibility
- Ask agent
- Parking
- Ask agent
- Garden
- No
- Carter Jonas reference
- TAU240039