Sturmer Road, Steeple Bumpstead, CB9
Description
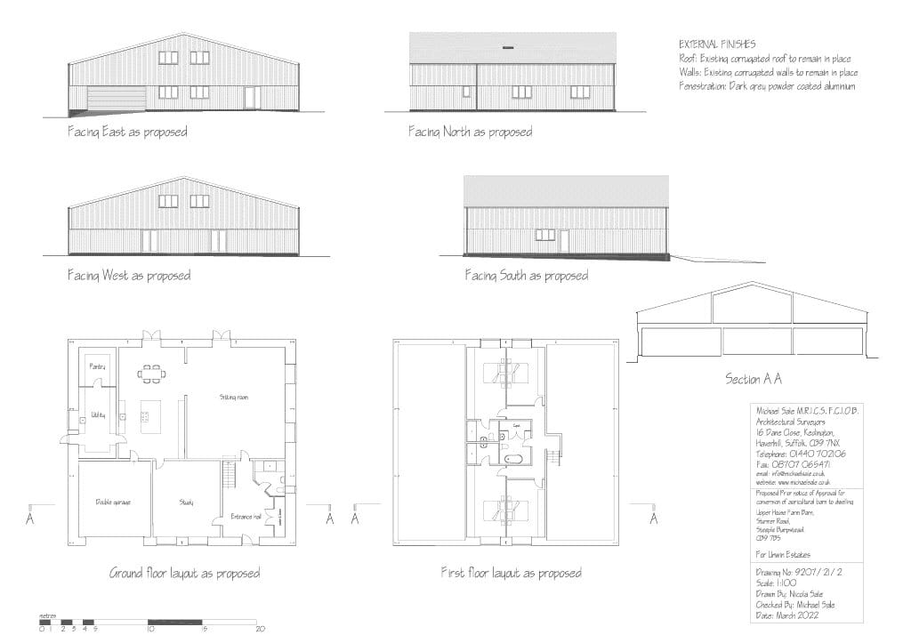
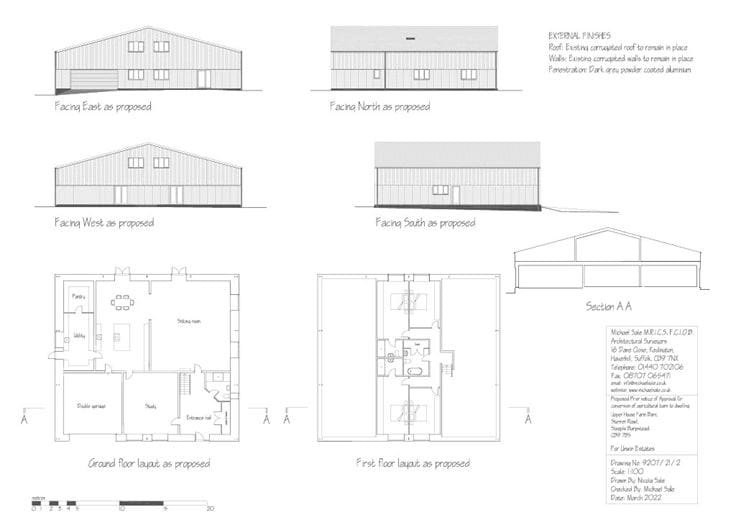
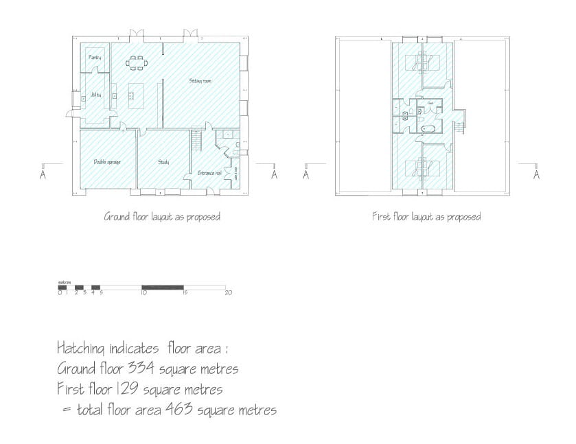
A unique opportunity to acquire this impressive barn, located on a quiet country lane and boasting open-field views, with approved planning permission for a detached 4 bedroom conversion comprising just under 5000sqft of accomodation and generous gardens. Location Upper House Farm Barn is positioned on a quiet country lane, between the quintessential villages Steeple Bumpstead and Sturmer which enjoy idyllic country views and picturesque houses. A short distance from town, and within easy reach of main roads such as A1307 and M11, there are all the amenities you would expect from a charming English village, including a pre-school, primary school, two village pubs, a library, doctors' surgery, antiques shop, post office and general store. With a choice of excellent local secondary schools, countless opportunities for leisurely country walks, and wonderful surrounding villages. METHOD OF SALE The Property is for sale by private treaty. TENNURE AND POSSESSION The Property is for sale freehold with vacant possession upon completion. PLANNING Permission for the conversion was granted by Braintree District Council in May 2022 under application reference 22/01520/COUPA. SERVICES Mains water and electricity are connected to the site. HEALTH AND SAFETY Potential purchasers must take particular care when inspecting the property and must pay attention to uneven surfaces. VIEWINGS Viewings are strictly by appointment with the agent Carter Jonas, on 01223 403330.
Features at a glance
- Impressive barn conversion opportunity
- Just under 5000qft of living accomodation
- Open-field views
- Set on a quiet country lane
- Generous gardens and space for parking
Location
Key property details
- Accessibility
- Ask agent
- Parking
- Ask agent
- Garden
- No
- Carter Jonas reference
- CNH220040
Description
A unique opportunity to acquire this impressive barn, located on a quiet country lane and boasting open-field views, with approved planning permission for a detached 4 bedroom conversion comprising just under 5000sqft of accomodation and generous gardens. Location Upper House Farm Barn is positioned on a quiet country lane, between the quintessential villages Steeple Bumpstead and Sturmer which enjoy idyllic country views and picturesque houses. A short distance from town, and within easy reach of main roads such as A1307 and M11, there are all the amenities you would expect from a charming English village, including a pre-school, primary school, two village pubs, a library, doctors' surgery, antiques shop, post office and general store. With a choice of excellent local secondary schools, countless opportunities for leisurely country walks, and wonderful surrounding villages. METHOD OF SALE The Property is for sale by private treaty. TENNURE AND POSSESSION The Property is for sale freehold with vacant possession upon completion. PLANNING Permission for the conversion was granted by Braintree District Council in May 2022 under application reference 22/01520/COUPA. SERVICES Mains water and electricity are connected to the site. HEALTH AND SAFETY Potential purchasers must take particular care when inspecting the property and must pay attention to uneven surfaces. VIEWINGS Viewings are strictly by appointment with the agent Carter Jonas, on 01223 403330.
Features at a glance
- Impressive barn conversion opportunity
- Just under 5000qft of living accomodation
- Open-field views
- Set on a quiet country lane
- Generous gardens and space for parking
Location
Key property details
- Accessibility
- Ask agent
- Parking
- Ask agent
- Garden
- No
- Carter Jonas reference
- CNH220040