- Sold
Main Street, Fringford, OX27
Description
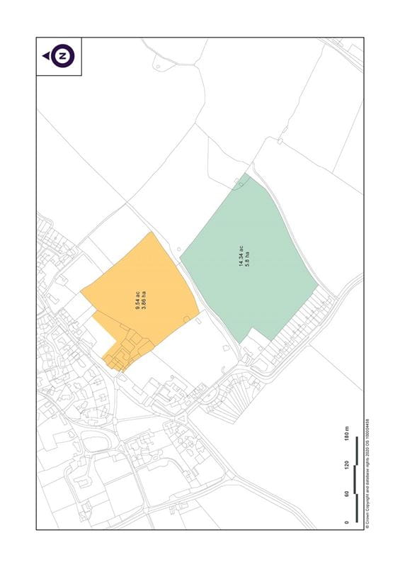
Hall Farm comprises a 6-bedroom Cotswold farmhouse with adjacent traditional buildings, modern farm buildings and pasture. The property provides excellent scope for sympathetic modernisation and enhancement throughout to form an exceptional family dwelling and ancillary space In all extending to about 9.54 acres (3.86 ha). For sale by Private Treaty as a whole. PROPERTY Lot 1 comprises a 6-bedroom Cotswold farmhouse with adjacent traditional buildings, modern farm buildings and 9.54 acres (3.86 ha) of pasture. FARMHOUSE Hall Farmhouse is a three-storey grade II listed period dwelling, sited adjacent to the farmyard and courtyard with a garden to the front and side. The property extends to in excess of 2,708 sq ft over three floors. Cotswold Stone built with rendering, it provides light and spacious living space together with a cellar. The handsome property retains a great deal of charm and character providing two reception rooms, kitchen, office, dining room, washroom and stores on the ground floor with 4 bedrooms and a bathroom to the first floor and 2 further loft rooms that could be utilised as an additional two bedrooms. The property is in need of modernisation or redevelopment to bring it up to current standards. FARM BUILDINGS Located south of the farmhouse, the farm buildings provide good mixture of traditional and modern accommodation extending to approximately 4,498 sq ft. Accessed through an archway, the courtyard of traditional buildings provides major scope for improvement and the possibility of additional uses. The buildings consist of a Grade II listed barn and adjoining barns, car port, storage shed and larger general purpose shed. The buildings are of Cotswold stone construction with concrete floors and a mixture of clay tile, corrugated sheeting, fibre cement and slate roofs. There is also a dovecote open to the rafters located above the office in the farmhouse. The modern buildings consist of a concrete frame general purpose agricultural building with breeze block walls, a concrete floor, Yorkshire boarding and fibre cement roof. The other being a steel portal frame grainstore with a concrete floor, corrugated tin sheeting under a fibre cement roof. Both would also lend themselves to equestrian purposes subject to necessary permissions. There is also a pole barn situated within the yard area. The yard itself is a mix of concrete and scalping’s, providing excellent hard aprons for storage, material handling, access and parking. LAND Providing pasture for amenity and equestrian purposes, the land is surrounded by mature hedges and can be accessed via the farmyard. Classified as being a mix of Grade III on the Agricultural Land Classification maps, the land is further characterised as being freely draining lime-rich loamy soils and well suited to its current use. FENCING On completion the Buyer of Lot 1 will be required to erect and thereafter maintain a boundary fence to the Vendors retained land to the north of the farmstead. For the avoidance of doubt the fence is to be livestock proof and of a specification not less than posts at 3m centres with galvanised sheep netting and two rails over. BASIC PAYMENT SCHEME Basic Payment Scheme entitlements for the claimable area are included in the sale. ENVIRONMENTAL SCHEMES The land is not included in any Environmental Stewardship Schemes. LISTING STATUS The property includes a Grade II Listed farmhouse and barn abutting to the east of the farmhouse. OVERAGE Lot 2 is to be sold with a 50% overage clause for 25 years. SERVICES Farmhouse: Mains water, electricity and drainage. Oil central heating. Broadband. Farm buildings: Mains water and electricity. VIEWINGS Interested parties may view the property upon appointment and accompanied by the selling agent with details to hand.
Location
Key property details
- Additional property type(s)
- Equestrian
- Special Features
- Outbuildings
- Accessibility
- Ask agent
- Parking
- Ask agent
- Garden
- Yes
- Carter Jonas reference
- NWR200012
Description
Hall Farm comprises a 6-bedroom Cotswold farmhouse with adjacent traditional buildings, modern farm buildings and pasture. The property provides excellent scope for sympathetic modernisation and enhancement throughout to form an exceptional family dwelling and ancillary space In all extending to about 9.54 acres (3.86 ha). For sale by Private Treaty as a whole. PROPERTY Lot 1 comprises a 6-bedroom Cotswold farmhouse with adjacent traditional buildings, modern farm buildings and 9.54 acres (3.86 ha) of pasture. FARMHOUSE Hall Farmhouse is a three-storey grade II listed period dwelling, sited adjacent to the farmyard and courtyard with a garden to the front and side. The property extends to in excess of 2,708 sq ft over three floors. Cotswold Stone built with rendering, it provides light and spacious living space together with a cellar. The handsome property retains a great deal of charm and character providing two reception rooms, kitchen, office, dining room, washroom and stores on the ground floor with 4 bedrooms and a bathroom to the first floor and 2 further loft rooms that could be utilised as an additional two bedrooms. The property is in need of modernisation or redevelopment to bring it up to current standards. FARM BUILDINGS Located south of the farmhouse, the farm buildings provide good mixture of traditional and modern accommodation extending to approximately 4,498 sq ft. Accessed through an archway, the courtyard of traditional buildings provides major scope for improvement and the possibility of additional uses. The buildings consist of a Grade II listed barn and adjoining barns, car port, storage shed and larger general purpose shed. The buildings are of Cotswold stone construction with concrete floors and a mixture of clay tile, corrugated sheeting, fibre cement and slate roofs. There is also a dovecote open to the rafters located above the office in the farmhouse. The modern buildings consist of a concrete frame general purpose agricultural building with breeze block walls, a concrete floor, Yorkshire boarding and fibre cement roof. The other being a steel portal frame grainstore with a concrete floor, corrugated tin sheeting under a fibre cement roof. Both would also lend themselves to equestrian purposes subject to necessary permissions. There is also a pole barn situated within the yard area. The yard itself is a mix of concrete and scalping’s, providing excellent hard aprons for storage, material handling, access and parking. LAND Providing pasture for amenity and equestrian purposes, the land is surrounded by mature hedges and can be accessed via the farmyard. Classified as being a mix of Grade III on the Agricultural Land Classification maps, the land is further characterised as being freely draining lime-rich loamy soils and well suited to its current use. FENCING On completion the Buyer of Lot 1 will be required to erect and thereafter maintain a boundary fence to the Vendors retained land to the north of the farmstead. For the avoidance of doubt the fence is to be livestock proof and of a specification not less than posts at 3m centres with galvanised sheep netting and two rails over. BASIC PAYMENT SCHEME Basic Payment Scheme entitlements for the claimable area are included in the sale. ENVIRONMENTAL SCHEMES The land is not included in any Environmental Stewardship Schemes. LISTING STATUS The property includes a Grade II Listed farmhouse and barn abutting to the east of the farmhouse. OVERAGE Lot 2 is to be sold with a 50% overage clause for 25 years. SERVICES Farmhouse: Mains water, electricity and drainage. Oil central heating. Broadband. Farm buildings: Mains water and electricity. VIEWINGS Interested parties may view the property upon appointment and accompanied by the selling agent with details to hand.
Location
Key property details
- Additional property type(s)
- Equestrian
- Special Features
- Outbuildings
- Accessibility
- Ask agent
- Parking
- Ask agent
- Garden
- Yes
- Carter Jonas reference
- NWR200012