Tudweiliog, Pwllheli LL53

Tudweiliog, Pwllheli LL53

3 Bedroom | 1 Bath | Outbuildings | Secondary Accomodation | 6 acres (2.4 hectares)

Guide price £550,000

A delightful coastal smallholding located on the Llyn Peninsula extending to approximately 6 acres.

A rare opportunity to acquire a delightful smallholding situated in a spectacular coastal location enjoying views over the Llyn Peninsula.

Tyddyn Belyn comprises of a detached three bedroom farmhouse, a chalet annexe building, a range of traditional and modern farm buildings along with approximately 6 acres of pasture land.

The property is offered for sale by private treaty as a whole.

Location
Tyddyn Belyn occupies a roadside location on the edge of the village of Tudweiliog on the Llyn Peninsula. The property has a pleasant rural location whilst also having easy access to the popular coastal villages of Morfa Nefyn and Aberdaron.

The holding is located 13 miles from the market town of Pwllheli and 36 miles from the University City of Bangor.

Amenities
Tudweliog has a shop, post office and public house as well as a primary school. The market town of Pwllheli provides a wider range of services including local and national shops and a variety of independent public houses and restaurants.

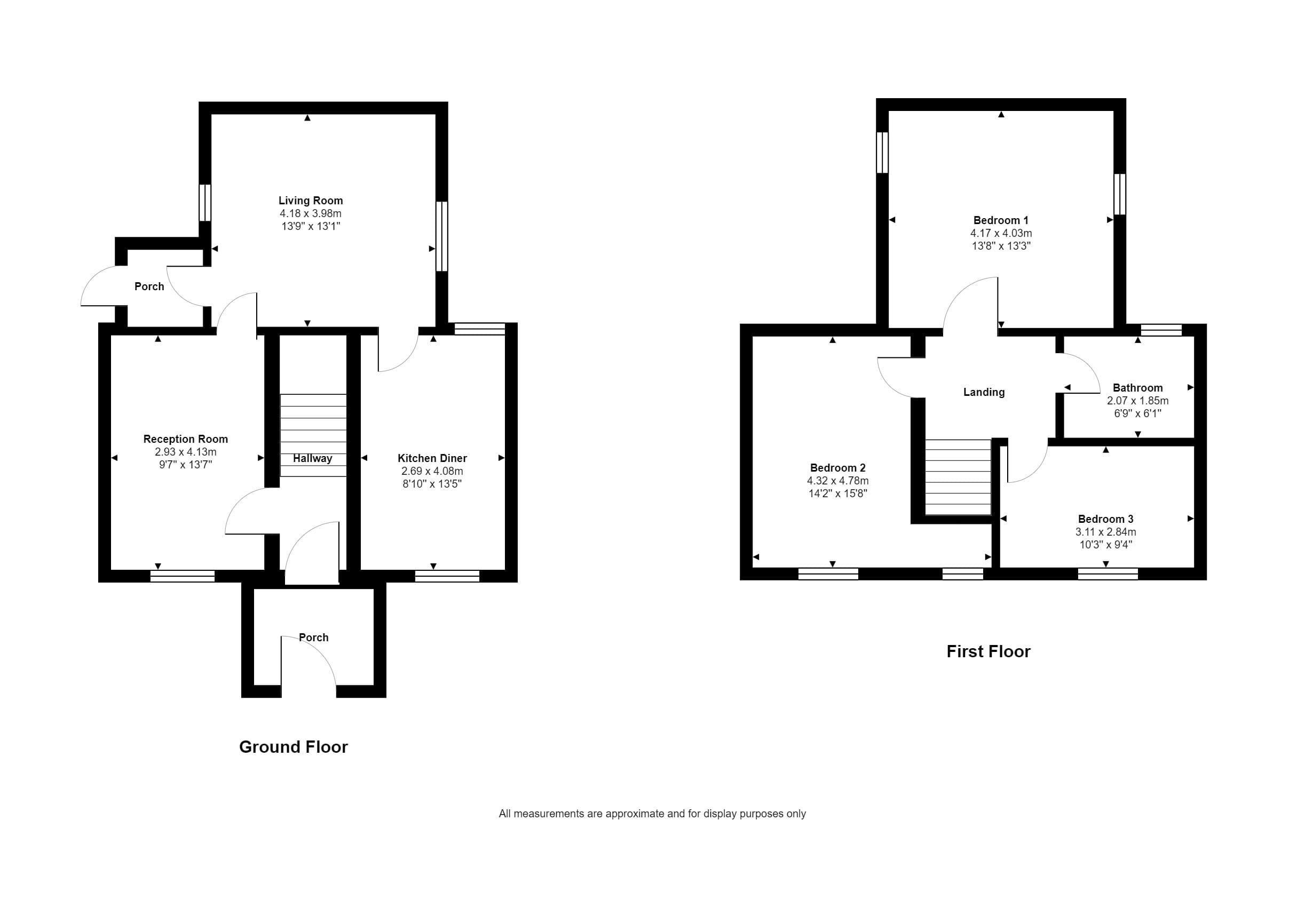
Farmhouse
Tyddyn Belyn is a traditional three bedroom stone built farmhouse with pebble dash render finish, set off a minor road leading to Porth Ychain on the outskirts of Tudweiliog.

The ground floor accommodation property extends to a fitted kitchen, reception room and living room. Upstairs the property benefits from three bedrooms and a bathroom.

The accommodation has the potential to provide a very attractive family home as well as being ideal for those seeking a relocation property or to retire by the coast.

Further Dwellings
The property benefits from a chalet annexe building consisting of living space, a kitchen, three bedrooms and a bathroom. The chalet has formerly been run successfully as holiday accommodation and offers an excellent opportunity for diversified income in a popular tourist destination.

Farm Buildings
The holding has an extensive range of traditional and modern farm buildings that have been maintained to a high standard. The buildings provide useful accommodation that can be used for a variety of agricultural and amenity uses.

The modern farm buildings may be accessed from the main yard and the side of the yard, utilised as general storage.

There are also a range of traditional stone outbuildings adjacent to the farmhouse which offer renovation opportunities subject to securing the requisite planning permissions.

Land
The holding extends to approximately 6.1 acres of prime pasture which is well suited for mowing and livestock grazing. The fields are stockproof and benefit from a mains water supply.

The fields have a delightful aspect and would also be ideal for those with an equestrian interest or for a general amenity use.

Method of Sale
The property is offered for sale by private treaty as a whole.

Tenure & Possession
The freehold of the property is offered for sale with vacant possession.

Basic Payment Scheme
The holding is registered by Rural Payment Wales. No Basic Payment Scheme Entitlements are included with the sale however may be available to purchase by separate negotiation.

More detailed information is available from the agents, however, it is advised that all purchasers take independent advice.

Wayleaves, Easements & Rights of Way
The property will be sold subject to and with the benefit of all wayleaves, easements and rights of way, whether mentioned in these particulars or not.

Health & Safety
Given the potential hazards of a livestock farm, we would ask you to be as vigilant as possible when making your inspection, for your own personal safety.

VAT
Any guide prices quoted or discussed are exclusive of VAT. In the event that a sale of a property or entitlements become a chargeable supply for the purposes of VAT, such tax will be payable, or become payable, by the purchaser in addition to the purchase price.

Local Authorities
Cyngor Gwynedd Council
www.gwynedd.llyw.cymru

Viewings
Strictly by confirmed appointment with the Vendor’s Agent Carter Jonas on 01248 360414.

Directions
From Tudweiliog follow the B4417 south towards Llangwnadl. After 1 mile turn right on to a single lane road. After ½ a mile bear left passing Tyddyn Mawr and follow the road. Continue along this road for 1 mile passing Pen Y Bryn Caravan Park on your right you will then after ½ a mile a turning right near the post box for Traeth Penrallt and Porth Ychain, Tyddyn Belyn will be immediately on your left.

What3Words
///fond.soaks.remains

The next steps...

Before making an offer on a property you will want to consider your financial situation, your income and outgoings.

Will you finance the purchase of your next property from the sale of an existing property which can put you in a chain, arrange a mortgage through your bank or buy the property outright.

To help you finance your next property purchase, we have a long established relationship with an independent mortgage broker who can discuss your situation with you.

Remember that having a 'mortgage decision in principle' can make you a more attractive buyer when you make an offer on a property. Contact our mortgage advisers for free, no obligation and impartial advice.

Some advantages of a broker are:

  • They do all the legwork for you, working on your behalf with the lender
  • They compare wholesale mortgage rates from a large number of banks and lenders all at once
  • Their wholesale interest rates can be lower than retail (bank branch) interest rates
  • They offer more loan options because they work with numerous banks and lenders
  • They can finance tricky deals because of their knowledge and various lending partners
  • They are typically easier to get in contact with, and are less bureaucratic.

However advantages of working with your bank are:

  • You may be able to build off an existing relationship (and gain discounts if you have a checking or savings account)
  • You may already know the banker who will handle your mortgage
  • Banks may be more accountable than a smaller shop
  • They may offer lower interest rates in some cases
  • Their ability to add mortgage to existing banking profile and make automatic payments from linked account.

When you see a property you are interested in on our website, call us 24/7 to arrange a viewing. Or if you prefer, get in touch via our website and we will call you back to find a time to view the property that suits you.

Once you’ve found a property you want to buy, it’s time to make an offer. A bit of negotiation is to be expected, however don't offer so little that you end up in a lengthy negotiation process, as you might lose the property altogether if someone else makes a higher bid.

If other offers have been made on a property we aren't legally able to tell you what they are, but we may indicate if they were close to the asking price.

If you have a property to sell, why not see how we can help you.

Or if you’re considering letting your property, we can take the stress out of managing your rental, and our award winning lettings team offer a service that can be tailored to your needs.

Combined with nearly 170 years of experience and one of the highest customer satisfaction scores in the industry, Carter Jonas is the perfect property partner.

Why not book a free, no obligation valuation of your property and find out how Carter Jonas can help you make your next move.

Key property details
Additional attributes
Outbuildings Secondary Accomodation Land/Paddock
Locality
Rural
Property type
House Farm
Total land
6 acres (2.4 hectares)
Carter Jonas reference
BAN230004

Suggested properties

Here are a few properties you might like, but within 2 extra miles of your current search

Guide price £2,240,000 180 acres (72.8 hectares)
Agricultural
Guide price £4,000,000 265 acres (107.2 hectares)
Agricultural
Asking price £10,900,000 901 acres (364.6 hectares)
Agricultural
Guide price £575,000 47.7 acres (19.3 hectares)
Agricultural
Asking price £750,000 329 acres (133.1 hectares)
Agricultural
Asking price £595,000 24.6 acres (10 hectares)
Agricultural
Guide price £895,000 26.7 acres (10.8 hectares)
Agricultural
Thinking of selling?

Find out what your property is worth