- Sold
Holme Road, Spaldington, DN14
Description
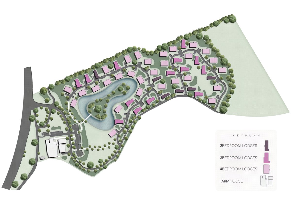
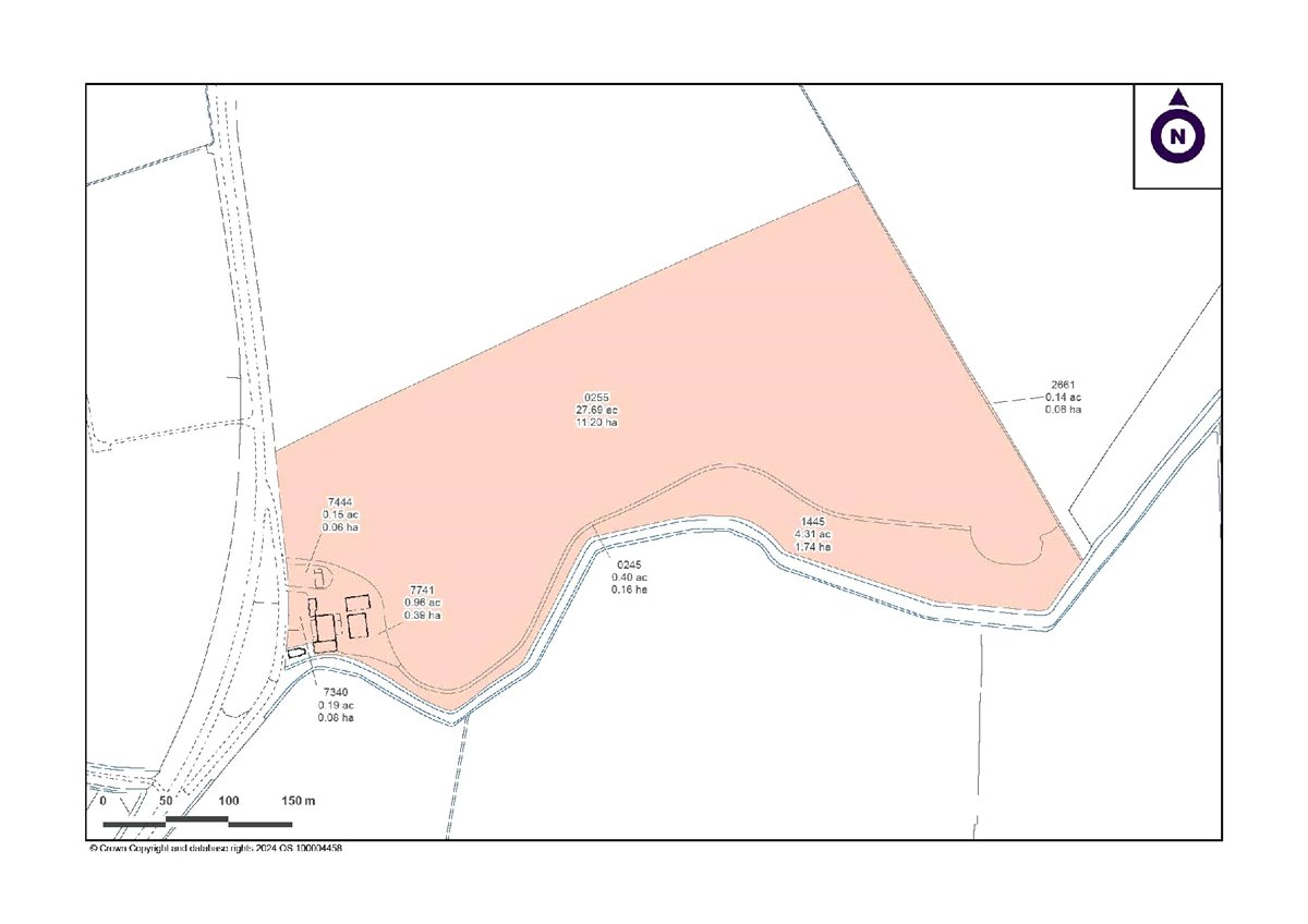
Location Spaldington Eco Resort is located in a rural setting between the market town of Howden and the village of Holme on Spalding Moor in the East Riding of Yorkshire. The Property benefits from excellent access provisions being situated on the A614 which in turn connects with the M62 which is situated approximately 4.5 miles to the south-west. Hull is the commercial centre for the area and is situated approximately 30 miles to the east of Yoke Gate Farm. The port city was awarded the much-coveted UK City of Culture in 2017 and provides a wide range of professional services and amenities including theatre, cinema, shopping centres as well as one of the UK’s largest aquariums – The Deep. Local tourist attractions in the area include Howden Minster, Yorkshire Air Museum, Jorvik Theatre and Arts Centre and York Maze. The coastal resort of Bridlington is situated approximately 35 miles to the north-east which offers a historic harbour, elegant promenades and sandy beaches. The historic City of York is within a 30 minute drive making it ideal for day trips. With its Roman roots and a Viking past, where ancient walls surround independent shops and vibrant eateries, York is the Original City Adventure. Property The Property benefits from planning consent (Ref: 22/03930/STVAR) for change of use of existing buildings and land to provide a holiday park for 49 park lodges split over a two phase scheme. A detached four bedroom farmhouse offers owners/managers accommodation whilst a range of traditional and modern buildings benefit from planning to provide a range of uses including artisan workshops with associated retail including artisan bakery, delicatessen, boulangerie, offices, craft pods, workshop, café/tearooms and farm shop. The planning consent includes the creation of a fishing lake to the rear of the farmstead and associated alterations to the farmstead. The Property extends in all to approximately 33 acres. Buildings The farm buildings comprise a mixture of traditional brick outbuildings arranged around a timber frame covered yard which are included within the planning consent to provide a Farm Shop, Craft Pods, Artisan Businesses, tea garden and amenities. A range of general-purpose portal frame buildings benefit from planning consent for use as an exhibition/display barn and workshop/storage barn. Accessible parking is to be provided adjacent to the main entrance with further visitor parking to the east together with access for delivery and emergency vehicles. Land The fishing lake and lodge development is proposed to be sited on land lying to the north-east of the farmstead and extends in all to approximately 35 acres. The lodge development is proposed to be a two-phase scheme. Phase 1 permits the construction of 24 log cabins whilst Phase 2, for the construction of a further 25 log cabins, shall only commence when the fishing lakes have been constructed and the farmstead buildings converted in accordance with the approved plans. The fishing lake is to be situated between the farmstead and the log cabins and will incorporate a wildlife and ecological habitat island to be planted with native species appropriate to the geographic area. Method of Sale The Property is offered for sale freehold with vacant possession available upon completion. Planning Planning Ref: 19/04161/STPLF was granted on 28th October 2020 for the following scheme: “Change of use of existing buildings and land to provide a holiday park, artisan workshops with associated retail, artisan bakery, delicatessen, boulangerie, offices, craft pods, workshop, café/ tearooms, farm shop, tackle shop display, exhibition and fishing lake including associated alterations to farm house and buildings, operational development, landscaping, vehicular access and drainage.” Planning Ref: 22/03930/STVAR was granted on 8th June 2023 which varied Condition 2 (approved plans) to allow for an amended site layout providing a more spacious arrangement of the lodges including siting some lodges around the perimeter of the lake. The variation also incorporated amendments to the design of the lodges allowing for park lodges rather than log cabins. The scale of the lodges was varied to provide for 29 no. four bedroom lodges, 14 no. three bedroom lodges and 6 no. two bedroom lodges. Planning Ref: 23/30218/CONDET was granted on 20th October and formally records the discharge of pre-commencement conditions. Additional Information An additional information pack is available from the joint selling agents. Alternatively, a copy of the planning consent and approved documents (Ref: 22/03930/STVAR) is available at https://newplanningaccess.eastriding.gov.uk/newplanningaccess/ Services The property benefits from connections to mains electricity, water and gas with private drainage to a septic tank. Wayleaves Easements & Rights of Way The land is sold subject to and with the benefits of all rights of way, water drainage, water courses and other easements quasi or reputed easements and rights of adjoining owners (if any) affecting the same and all existing and proposed wayleaves and other matters registered by any competent authority subject to statute. Health & Safety Given the potential hazards we ask you to be as vigilant as possible when making your inspection for your own personal safety, particularly around the farm buildings and machinery. VAT Any guide prices quoted are exclusive of VAT. In the event that the sale of the property or any part of it or any right attached to it becomes chargeable supply for the purposes of VAT, such tax will be payable in addition to the purchase price. Sporting Timber & Mineral Rights The sporting and mineral rights are included insofar as they are owned. Local Authority East Riding of Yorkshire www.eastriding.gov.uk Viewings Viewings are strictly by prior appointment through the selling agents – Carter Jonas. Photos/CGI Photographs taken Summer 2021. Computer Generated Images (CGI) used as visualisations of the completed development. Directions Leave the M62 at junction 37 and travel east along the A614 signposted Holme on Spalding Moor. After leaving the village of Howden, Yoke Gate Farm is situated on the right hand side after approximately 3 miles. What3Words ///noodle.dining.villager
Location
Key property details
- Special Features
- Holiday complex
- Accessibility
- Ask agent
- Parking
- Ask agent
- Garden
- No
- Carter Jonas reference
- HGT240018
Description
Location Spaldington Eco Resort is located in a rural setting between the market town of Howden and the village of Holme on Spalding Moor in the East Riding of Yorkshire. The Property benefits from excellent access provisions being situated on the A614 which in turn connects with the M62 which is situated approximately 4.5 miles to the south-west. Hull is the commercial centre for the area and is situated approximately 30 miles to the east of Yoke Gate Farm. The port city was awarded the much-coveted UK City of Culture in 2017 and provides a wide range of professional services and amenities including theatre, cinema, shopping centres as well as one of the UK’s largest aquariums – The Deep. Local tourist attractions in the area include Howden Minster, Yorkshire Air Museum, Jorvik Theatre and Arts Centre and York Maze. The coastal resort of Bridlington is situated approximately 35 miles to the north-east which offers a historic harbour, elegant promenades and sandy beaches. The historic City of York is within a 30 minute drive making it ideal for day trips. With its Roman roots and a Viking past, where ancient walls surround independent shops and vibrant eateries, York is the Original City Adventure. Property The Property benefits from planning consent (Ref: 22/03930/STVAR) for change of use of existing buildings and land to provide a holiday park for 49 park lodges split over a two phase scheme. A detached four bedroom farmhouse offers owners/managers accommodation whilst a range of traditional and modern buildings benefit from planning to provide a range of uses including artisan workshops with associated retail including artisan bakery, delicatessen, boulangerie, offices, craft pods, workshop, café/tearooms and farm shop. The planning consent includes the creation of a fishing lake to the rear of the farmstead and associated alterations to the farmstead. The Property extends in all to approximately 33 acres. Buildings The farm buildings comprise a mixture of traditional brick outbuildings arranged around a timber frame covered yard which are included within the planning consent to provide a Farm Shop, Craft Pods, Artisan Businesses, tea garden and amenities. A range of general-purpose portal frame buildings benefit from planning consent for use as an exhibition/display barn and workshop/storage barn. Accessible parking is to be provided adjacent to the main entrance with further visitor parking to the east together with access for delivery and emergency vehicles. Land The fishing lake and lodge development is proposed to be sited on land lying to the north-east of the farmstead and extends in all to approximately 35 acres. The lodge development is proposed to be a two-phase scheme. Phase 1 permits the construction of 24 log cabins whilst Phase 2, for the construction of a further 25 log cabins, shall only commence when the fishing lakes have been constructed and the farmstead buildings converted in accordance with the approved plans. The fishing lake is to be situated between the farmstead and the log cabins and will incorporate a wildlife and ecological habitat island to be planted with native species appropriate to the geographic area. Method of Sale The Property is offered for sale freehold with vacant possession available upon completion. Planning Planning Ref: 19/04161/STPLF was granted on 28th October 2020 for the following scheme: “Change of use of existing buildings and land to provide a holiday park, artisan workshops with associated retail, artisan bakery, delicatessen, boulangerie, offices, craft pods, workshop, café/ tearooms, farm shop, tackle shop display, exhibition and fishing lake including associated alterations to farm house and buildings, operational development, landscaping, vehicular access and drainage.” Planning Ref: 22/03930/STVAR was granted on 8th June 2023 which varied Condition 2 (approved plans) to allow for an amended site layout providing a more spacious arrangement of the lodges including siting some lodges around the perimeter of the lake. The variation also incorporated amendments to the design of the lodges allowing for park lodges rather than log cabins. The scale of the lodges was varied to provide for 29 no. four bedroom lodges, 14 no. three bedroom lodges and 6 no. two bedroom lodges. Planning Ref: 23/30218/CONDET was granted on 20th October and formally records the discharge of pre-commencement conditions. Additional Information An additional information pack is available from the joint selling agents. Alternatively, a copy of the planning consent and approved documents (Ref: 22/03930/STVAR) is available at https://newplanningaccess.eastriding.gov.uk/newplanningaccess/ Services The property benefits from connections to mains electricity, water and gas with private drainage to a septic tank. Wayleaves Easements & Rights of Way The land is sold subject to and with the benefits of all rights of way, water drainage, water courses and other easements quasi or reputed easements and rights of adjoining owners (if any) affecting the same and all existing and proposed wayleaves and other matters registered by any competent authority subject to statute. Health & Safety Given the potential hazards we ask you to be as vigilant as possible when making your inspection for your own personal safety, particularly around the farm buildings and machinery. VAT Any guide prices quoted are exclusive of VAT. In the event that the sale of the property or any part of it or any right attached to it becomes chargeable supply for the purposes of VAT, such tax will be payable in addition to the purchase price. Sporting Timber & Mineral Rights The sporting and mineral rights are included insofar as they are owned. Local Authority East Riding of Yorkshire www.eastriding.gov.uk Viewings Viewings are strictly by prior appointment through the selling agents – Carter Jonas. Photos/CGI Photographs taken Summer 2021. Computer Generated Images (CGI) used as visualisations of the completed development. Directions Leave the M62 at junction 37 and travel east along the A614 signposted Holme on Spalding Moor. After leaving the village of Howden, Yoke Gate Farm is situated on the right hand side after approximately 3 miles. What3Words ///noodle.dining.villager
Location
Key property details
- Special Features
- Holiday complex
- Accessibility
- Ask agent
- Parking
- Ask agent
- Garden
- No
- Carter Jonas reference
- HGT240018
