Rudduck Way, Cambridge CB3

Rudduck Way, Cambridge CB3

2 Bedroom | Leasehold | 2 Baths

Guide price £450,000
Cambridge 2.8 miles
Cambridge North 3 miles
Girton Road 0.4 miles

Recently refurbished, stylish and modern two-bedroom apartment in a sought-after Eddington development with the benefit of a private balcony and allocated parking.

Recently refurbished, stylish and modern two-bedroom apartment in a sought-after Eddington development with the benefit of a private balcony and allocated parking.

- Ofsted rated outstanding Primary School –Approx. 0.2 miles
- Cambridge City Centre – approx. 2 miles
- Cambridge Train Station – approx. 2.1 miles
- The River Cam / The Backs – approx. 2.5 miles

• Light & spacious open-plan living/dining area
• Contemporary kitchen with fully integrated appliances
• Private balcony accessed from living area
• Principal bedroom with fitted wardrobes & en-suite shower room
• Second double bedroom
• No onward chain
• EPC rating B

Description:

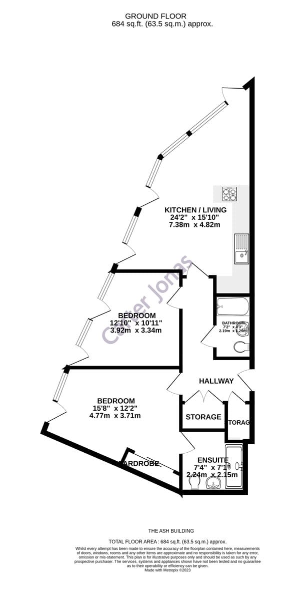
This stylish apartment offers a welcoming entrance hall with a useful storage cupboard housing the washer/dryer, leading through to a spacious open-plan living and dining area. The contemporary kitchen is fully integrated with quartz work surfaces and includes a dishwasher, fridge-freezer, oven, and hob, providing a sleek and practical cooking space. The living area opens directly onto a private balcony, perfect for outdoor seating.

The principal bedroom benefits from fitted wardrobes and stylish en-suite shower room, while a second double bedroom is served by a stylish family bathroom with a shower over the bath.

Finished to a high standard, the apartment features Amtico flooring and underfloor heating throughout. Additional benefits include a secure allocated parking space, well-maintained communal areas, and convenient access to local amenities and transport links.

This property presents an ideal opportunity for first-time buyers, professionals, or those looking for a modern home in a highly desirable location.

Location:

Eddington is ideally situated for those seeking easy access into Cambridge city centre, just approximately 2 miles away, making it an easy 10–15 minute drive or a short cycle ride. Also within the catchment area and 1 minute walk of the University of Cambridge Primary School. The development benefits from excellent transport connections, with the A14 and M11 motorway junctions only a few minutes’ drive, and frequent bus services into the city centre within walking distance. Local amenities are close at hand, including a Sainsbury’s superstore, a selection of cafés and restaurants.

Additional Information:

Tenure: Leasehold with approximately 242 years remaining. There is no ground rent payable.

Service Charge: Approx. £3,500 per annum. This is a total amount payable to two management companies.

Services: There is underfloor heating throughout, with hot water provided centrally to all Eddington buildings. Mains water, drainage and electricity. Note, none of these have been tested by the agent.

Local Authority: Cambridge City Council

Council Tax: Band D

Viewings: Strictly by telephone appointment with the Selling Agents, Carter Jonas 01223 403330

The next steps...

Before making an offer on a property you will want to consider your financial situation, your income and outgoings.

Will you finance the purchase of your next property from the sale of an existing property which can put you in a chain, arrange a mortgage through your bank or buy the property outright.

To help you finance your next property purchase, we have a long established relationship with an independent mortgage broker who can discuss your situation with you.

Remember that having a 'mortgage decision in principle' can make you a more attractive buyer when you make an offer on a property. Contact our mortgage advisers for free, no obligation and impartial advice.

Some advantages of a broker are:

  • They do all the legwork for you, working on your behalf with the lender
  • They compare wholesale mortgage rates from a large number of banks and lenders all at once
  • Their wholesale interest rates can be lower than retail (bank branch) interest rates
  • They offer more loan options because they work with numerous banks and lenders
  • They can finance tricky deals because of their knowledge and various lending partners
  • They are typically easier to get in contact with, and are less bureaucratic.

However advantages of working with your bank are:

  • You may be able to build off an existing relationship (and gain discounts if you have a checking or savings account)
  • You may already know the banker who will handle your mortgage
  • Banks may be more accountable than a smaller shop
  • They may offer lower interest rates in some cases
  • Their ability to add mortgage to existing banking profile and make automatic payments from linked account.

When you see a property you are interested in on our website, call us 24/7 to arrange a viewing. Or if you prefer, get in touch via our website and we will call you back to find a time to view the property that suits you.

Once you’ve found a property you want to buy, it’s time to make an offer. A bit of negotiation is to be expected, however don't offer so little that you end up in a lengthy negotiation process, as you might lose the property altogether if someone else makes a higher bid.

If other offers have been made on a property we aren't legally able to tell you what they are, but we may indicate if they were close to the asking price.

If you have a property to sell, why not see how we can help you.

Or if you’re considering letting your property, we can take the stress out of managing your rental, and our award winning lettings team offer a service that can be tailored to your needs.

Combined with nearly 170 years of experience and one of the highest customer satisfaction scores in the industry, Carter Jonas is the perfect property partner.

Why not book a free, no obligation valuation of your property and find out how Carter Jonas can help you make your next move.

Key property details
Era
Modern
Parking available
Off Street Parking
Locality
Town/City
Tenure
Leasehold
Energy efficiency rating
B
Lease expires
02 2268
Total sq ft
684 (63.5 Sq M) approx.
Carter Jonas reference
CAH260046

Suggested properties

Here are a few properties you might like, but within 2 extra miles of your current search

Guide price £441,000
2 bedroom maisonette
Guide price £450,000
2 bedroom flat
Guide price £495,000
2 bedroom house
Guide price £410,000
2 bedroom flat
Guide price £425,000
2 bedroom flat
Guide price £425,000
2 bedroom flat
Guide price £495,000
2 bedroom flat
Guide price £450,000
2 bedroom house
Thinking of selling?

Find out what your property is worth