Cromford Road, London SW18

Cromford Road, London SW18

1 Bedroom | Share of Freehold | 1 Bath

Asking price £525,000
Armoury Way (Stop D) 0.2 miles
East Putney 0.4 miles
Wandsworth Town 0.6 miles

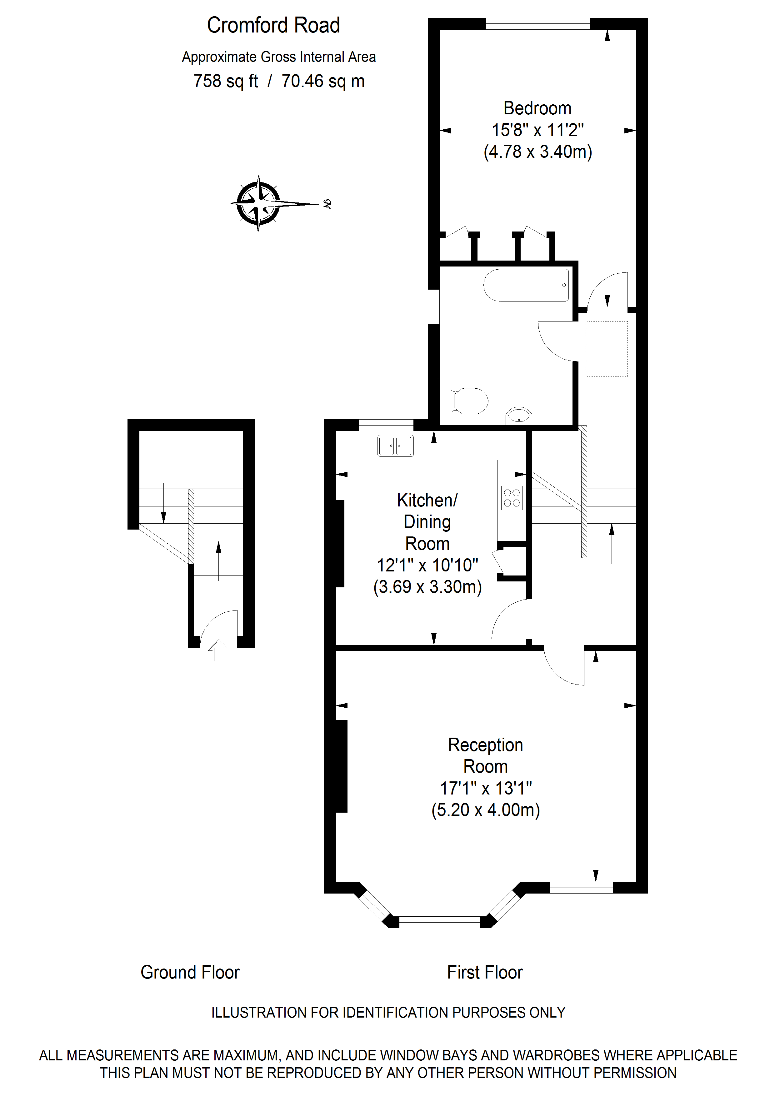
A well presented and spacious first floor flat, with the potential to extend (stpp), in a Victorian terraced house close to East Putney (District Line) station and Wandsworth Town station direct to Waterloo with the benefit of no onward chain.

This charming first-floor flat, set within a characterful Victorian terraced house, offers the perfect blend of period elegance and modern convenience. Situated just moments from East Putney Station (District Line - 0.5 miles) and Wandsworth Town Station (0.9 miles), providing direct connections to Waterloo.

Nestled on Cromford Road, a quiet residential street off Upper Richmond Road, the flat benefits from its proximity to the vibrant amenities of both Putney and Wandsworth. Enjoy a wide range of shops, cafes, and green spaces right on your doorstep.

Sole Agent. Chain free

EPC Rating: E
Council tax band: D (refer to Council's website for current cost).

Information on internet and mobile availability and speeds can be found on Ofcom’s website.

The next steps...

Before making an offer on a property you will want to consider your financial situation, your income and outgoings.

Will you finance the purchase of your next property from the sale of an existing property which can put you in a chain, arrange a mortgage through your bank or buy the property outright.

To help you finance your next property purchase, we have a long established relationship with an independent mortgage broker who can discuss your situation with you.

Remember that having a 'mortgage decision in principle' can make you a more attractive buyer when you make an offer on a property. Contact our mortgage advisers for free, no obligation and impartial advice.

Some advantages of a broker are:

  • They do all the legwork for you, working on your behalf with the lender
  • They compare wholesale mortgage rates from a large number of banks and lenders all at once
  • Their wholesale interest rates can be lower than retail (bank branch) interest rates
  • They offer more loan options because they work with numerous banks and lenders
  • They can finance tricky deals because of their knowledge and various lending partners
  • They are typically easier to get in contact with, and are less bureaucratic.

However advantages of working with your bank are:

  • You may be able to build off an existing relationship (and gain discounts if you have a checking or savings account)
  • You may already know the banker who will handle your mortgage
  • Banks may be more accountable than a smaller shop
  • They may offer lower interest rates in some cases
  • Their ability to add mortgage to existing banking profile and make automatic payments from linked account.

When you see a property you are interested in on our website, call us 24/7 to arrange a viewing. Or if you prefer, get in touch via our website and we will call you back to find a time to view the property that suits you.

Once you’ve found a property you want to buy, it’s time to make an offer. A bit of negotiation is to be expected, however don't offer so little that you end up in a lengthy negotiation process, as you might lose the property altogether if someone else makes a higher bid.

If other offers have been made on a property we aren't legally able to tell you what they are, but we may indicate if they were close to the asking price.

If you have a property to sell, why not see how we can help you.

Or if you’re considering letting your property, we can take the stress out of managing your rental, and our award winning lettings team offer a service that can be tailored to your needs.

Combined with nearly 170 years of experience and one of the highest customer satisfaction scores in the industry, Carter Jonas is the perfect property partner.

Why not book a free, no obligation valuation of your property and find out how Carter Jonas can help you make your next move.

Key property details
Property attributes
Terraced First Floor
Era
Period
Parking available
Residents Parking
Tenure
Share of Freehold
Energy efficiency rating
E
Lease expires
06 2150
Total sq ft
758 (70.4 Sq M) approx.
Carter Jonas reference
SFS250112

Suggested properties

Here are a few properties you might like, but within 2 extra miles of your current search

Asking price £560,000
1 bedroom flat
Asking price £495,000
1 bedroom flat
Guide price £550,000
2 bedroom flat
Guide price £575,000
2 bedroom flat
Asking price £550,000
2 bedroom flat
Offers over £500,000
2 bedroom flat
Thinking of selling?

Find out what your property is worth