- Sold
Foxmore Street, London, SW11
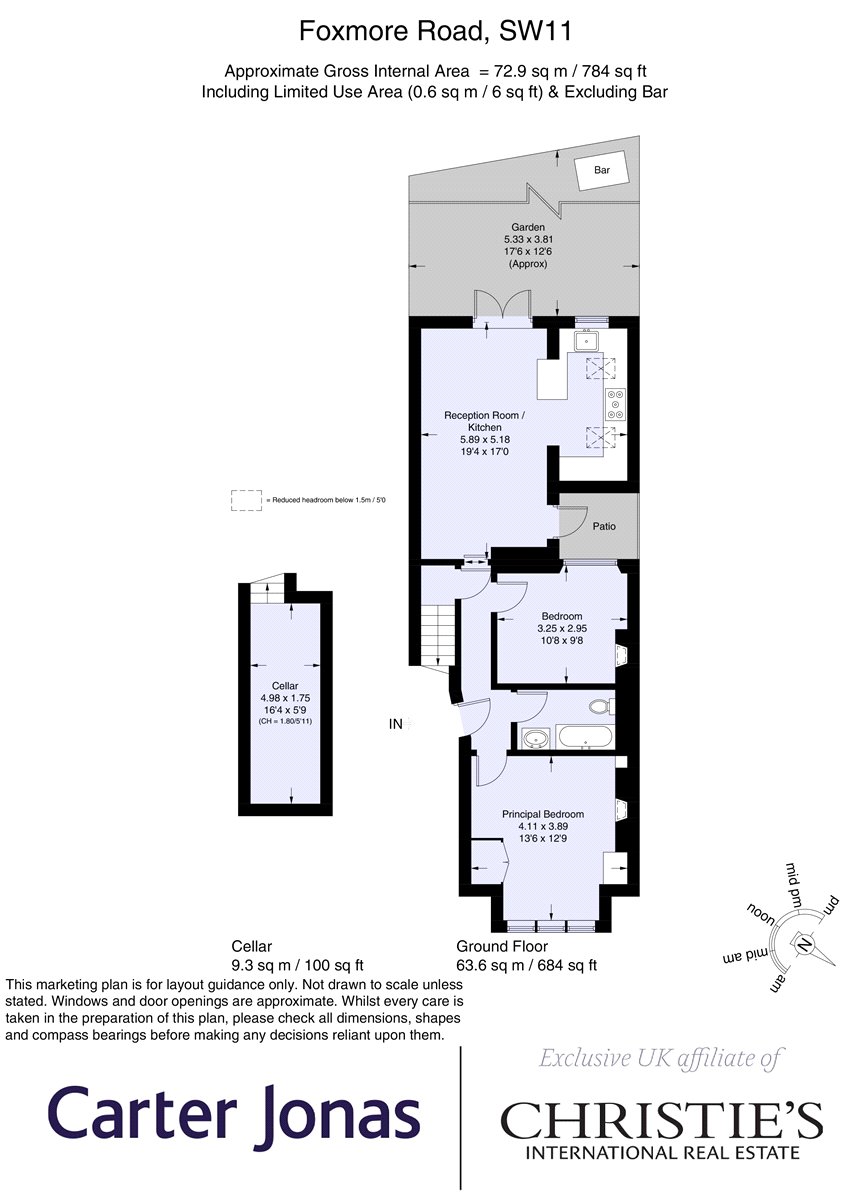
Description
This beautiful Victorian conversion benefits from a fantastic location, great space and high specification. The fantastic open plan living room, kitchen and dining space at the rear, overlooking the garden, is ideal for laidback living and entertaining. The anthracite cabinetry compliments the pale quartz worktops, with SMEG Range cooker and appliances neatly integrated. Light wooden floorboards run underfoot. Crittall-style aluminium doors connect the inside to the paved southwest-facing garden. The space is ideal for relaxing and entertaining, and the shed/beach bar makes a fun addition. Back inside, the primary bedroom to the front of the property is calm and neutral, with fantastic volumes and ceiling height and a great quality of light. An original Victorian fireplace is flanked by bookshelves and storage cupboards, with a lovely window seat, combining comfort with bespoke storage beneath. Wooden Boston blinds dress the windows, with large built-in wardrobes completing the space. The second double bedroom, currently used as an office, overlooks the courtyard area. A well-appointed bathroom is located between the bedrooms. The flat also benefits from a 100sqft cellar, which provides helpful further storage space. The property is offered with Share of Freehold. Foxmore Street is a quiet residential street, located just 272 feet (0.1 mile) from Battersea Park, with over 200 acres of leisure and sporting facilities. It offers easy access to Chelsea (0.8 mile), just across Albert Bridge, and Battersea Power Station which provides a range of retail, leisure and dining amenities. The property is ideally situated for rail networks, with Battersea Park (0.8 mile), one stop away from Victoria Station and Queenstown Road (0.9 mile), two stops away from Waterloo. Also nearby is Clapham Junction (0.9 mile), as well as Battersea Power Station Underground (1.1 miles) on the Northern Line.
Features at a glance
- Two double bedrooms
- Open plan living/dining/kitchen
- Share of Freehold
- Southwest facing patio garden
- Period Property
- Immaculately presented
- Close to Battersea Park
- Close to transport Links
- Close to Chelsea
Leasehold
Location
Key property details
- Property Style
- Terraced, Ground floor
- Accessibility
- Ask agent
- Parking
- Ask agent
- Garden
- Yes
- Lease expiry
- Ask agent
- Carter Jonas reference
- WNS240115
Description
This beautiful Victorian conversion benefits from a fantastic location, great space and high specification. The fantastic open plan living room, kitchen and dining space at the rear, overlooking the garden, is ideal for laidback living and entertaining. The anthracite cabinetry compliments the pale quartz worktops, with SMEG Range cooker and appliances neatly integrated. Light wooden floorboards run underfoot. Crittall-style aluminium doors connect the inside to the paved southwest-facing garden. The space is ideal for relaxing and entertaining, and the shed/beach bar makes a fun addition. Back inside, the primary bedroom to the front of the property is calm and neutral, with fantastic volumes and ceiling height and a great quality of light. An original Victorian fireplace is flanked by bookshelves and storage cupboards, with a lovely window seat, combining comfort with bespoke storage beneath. Wooden Boston blinds dress the windows, with large built-in wardrobes completing the space. The second double bedroom, currently used as an office, overlooks the courtyard area. A well-appointed bathroom is located between the bedrooms. The flat also benefits from a 100sqft cellar, which provides helpful further storage space. The property is offered with Share of Freehold. Foxmore Street is a quiet residential street, located just 272 feet (0.1 mile) from Battersea Park, with over 200 acres of leisure and sporting facilities. It offers easy access to Chelsea (0.8 mile), just across Albert Bridge, and Battersea Power Station which provides a range of retail, leisure and dining amenities. The property is ideally situated for rail networks, with Battersea Park (0.8 mile), one stop away from Victoria Station and Queenstown Road (0.9 mile), two stops away from Waterloo. Also nearby is Clapham Junction (0.9 mile), as well as Battersea Power Station Underground (1.1 miles) on the Northern Line.
Features at a glance
- Two double bedrooms
- Open plan living/dining/kitchen
- Share of Freehold
- Southwest facing patio garden
- Period Property
- Immaculately presented
- Close to Battersea Park
- Close to transport Links
- Close to Chelsea
Leasehold
Location
Key property details
- Property Style
- Terraced, Ground floor
- Accessibility
- Ask agent
- Parking
- Ask agent
- Garden
- Yes
- Lease expiry
- Ask agent
- Carter Jonas reference
- WNS240115
