Main Street, Ledston, WF10
Description
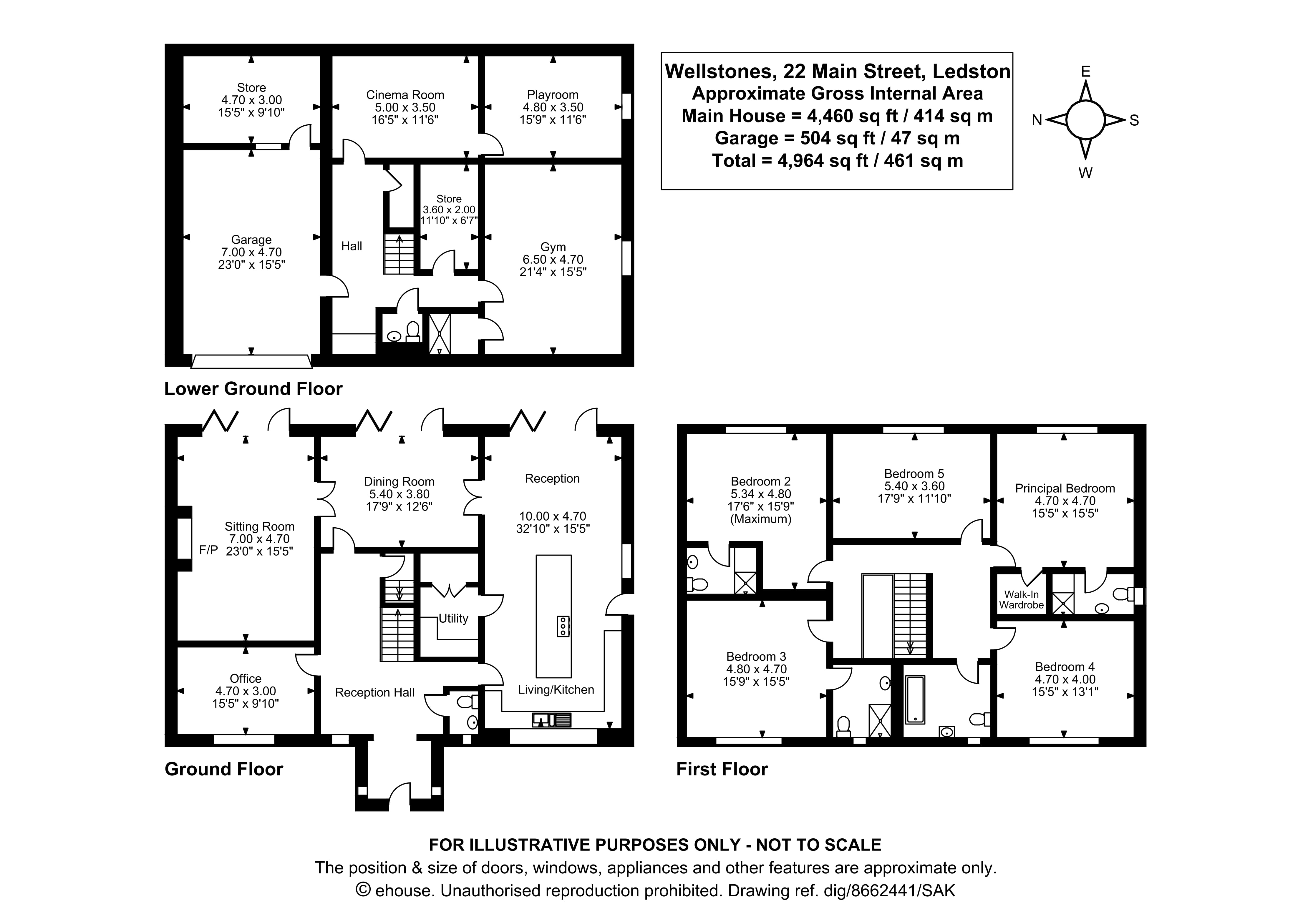
An exceptional and luxuriously appointed 5/6 bedroom architect designed detached executive residence offering some 4,500 sqft of living accommodation, set in established gardens of approximately 0.4 acres and enjoying delightful greenbelt countryside views. An internal inspection is essential to fully appreciate this stunning individual property offering a rare opportunity to acquire a prominent family home in this sought after conservation village, built to a very high specification during 2012/13. The very well proportioned accommodation is arranged over three floors, offering a great deal of flexibility including the opportunity to create a self contained element within the property for a dependent relative or home office suite if preferred. The specification includes Villeroy and Bosh fittings in the kitchen and bathrooms, solid oak windows and bi fold doors opening into the rear garden. There is an integral double garage with EV charger together with ample parking for several vehicles in the gated front courtyard. Ledston village offers facilities including a highly regarded Primary School, Public House/Restaurant, Wine Bar and Equestrian Centre. It also features the recently renovated Grade I listed Ledston Hall now converted into luxury apartments. Peaceful and surrounded by attractive countryside, Ledston has the advantage of being situated a little over a mile from the A1 M) and is therefore particularly well placed for access to the cities and towns of Yorkshire as well as the national motorway network. York, Doncaster and Leeds railway stations are all within easy reach making London’s Kings Cross commutable in around 2 hours. The accommodation at ground floor level is approached from an entrance vestibule and an impressive reception hallway with guest cloakroom and WC. There are three separate reception rooms comprising a well proportioned sitting room and dining room together with a study/home office. The hub of the house is the full width luxury and comprehensively equipped family living/breakfast kitchen with large central island, folding doors opening out into the rear garden and access to the adjoining utility room. The lower ground floor has a central hallway and provides additional spacious accommodation with flexibility for use including a gymnasium with shower room (potential sixth bedroom suite if preferred) cinema room and playroom. There is also a second cloakroom with WC, store room and internal access to the integral garage with additional store. The first floor is accessed from a lovely galleried landing with most rooms featuring exposed beams and roof trusses and includes the principal bedroom with en suite shower room and walk in wardrobe, two further double bedrooms with en suite shower rooms, two more double bedrooms and a house bathroom with an impressive copper bath. Outside, the property is approached through double entrance gates into a secure enclosed courtyard providing parking for several vehicles and which in turn gives access to the double garage and lower ground floor. The front gardens feature two well tended shaped lawned areas with established borders, significant stone retaining walls and wide stone flagged steps leading up to the house and two sets of double gates leading through to the rear. There is also a stone terrace with seating at the front, giving impressive views over the village due to the property’s elevated position. The large rear garden is principally lawned and completely enclosed providing a very safe environment for young children and pets. In addition there is a full width stone terrace for outside entertaining and a further stone patio overlooking the adjoining open fields.
Features at a glance
- Exceptional family residence
- Some 4,500 square feet of accommodation over three floors
- High specification with luxury kitchen and bathrooms
- Character features including exposed trusses
- Lanscaped gardens of approximately 0.4 acre
- Secure courtyard parking for several vehicles
- Integral double garage.
- Lovely peaceful village location
- Easy access to principal Yorkshire centres
Location
Key property details
- Property Style
- Detached
- Accessibility
- Ask agent
- Parking
- Yes
- Garden
- Yes
- Carter Jonas reference
- HAR180443
Description
An exceptional and luxuriously appointed 5/6 bedroom architect designed detached executive residence offering some 4,500 sqft of living accommodation, set in established gardens of approximately 0.4 acres and enjoying delightful greenbelt countryside views. An internal inspection is essential to fully appreciate this stunning individual property offering a rare opportunity to acquire a prominent family home in this sought after conservation village, built to a very high specification during 2012/13. The very well proportioned accommodation is arranged over three floors, offering a great deal of flexibility including the opportunity to create a self contained element within the property for a dependent relative or home office suite if preferred. The specification includes Villeroy and Bosh fittings in the kitchen and bathrooms, solid oak windows and bi fold doors opening into the rear garden. There is an integral double garage with EV charger together with ample parking for several vehicles in the gated front courtyard. Ledston village offers facilities including a highly regarded Primary School, Public House/Restaurant, Wine Bar and Equestrian Centre. It also features the recently renovated Grade I listed Ledston Hall now converted into luxury apartments. Peaceful and surrounded by attractive countryside, Ledston has the advantage of being situated a little over a mile from the A1 M) and is therefore particularly well placed for access to the cities and towns of Yorkshire as well as the national motorway network. York, Doncaster and Leeds railway stations are all within easy reach making London’s Kings Cross commutable in around 2 hours. The accommodation at ground floor level is approached from an entrance vestibule and an impressive reception hallway with guest cloakroom and WC. There are three separate reception rooms comprising a well proportioned sitting room and dining room together with a study/home office. The hub of the house is the full width luxury and comprehensively equipped family living/breakfast kitchen with large central island, folding doors opening out into the rear garden and access to the adjoining utility room. The lower ground floor has a central hallway and provides additional spacious accommodation with flexibility for use including a gymnasium with shower room (potential sixth bedroom suite if preferred) cinema room and playroom. There is also a second cloakroom with WC, store room and internal access to the integral garage with additional store. The first floor is accessed from a lovely galleried landing with most rooms featuring exposed beams and roof trusses and includes the principal bedroom with en suite shower room and walk in wardrobe, two further double bedrooms with en suite shower rooms, two more double bedrooms and a house bathroom with an impressive copper bath. Outside, the property is approached through double entrance gates into a secure enclosed courtyard providing parking for several vehicles and which in turn gives access to the double garage and lower ground floor. The front gardens feature two well tended shaped lawned areas with established borders, significant stone retaining walls and wide stone flagged steps leading up to the house and two sets of double gates leading through to the rear. There is also a stone terrace with seating at the front, giving impressive views over the village due to the property’s elevated position. The large rear garden is principally lawned and completely enclosed providing a very safe environment for young children and pets. In addition there is a full width stone terrace for outside entertaining and a further stone patio overlooking the adjoining open fields.
Features at a glance
- Exceptional family residence
- Some 4,500 square feet of accommodation over three floors
- High specification with luxury kitchen and bathrooms
- Character features including exposed trusses
- Lanscaped gardens of approximately 0.4 acre
- Secure courtyard parking for several vehicles
- Integral double garage.
- Lovely peaceful village location
- Easy access to principal Yorkshire centres
Location
Key property details
- Property Style
- Detached
- Accessibility
- Ask agent
- Parking
- Yes
- Garden
- Yes
- Carter Jonas reference
- HAR180443