- Sold
Tibbets Close, London, SW19
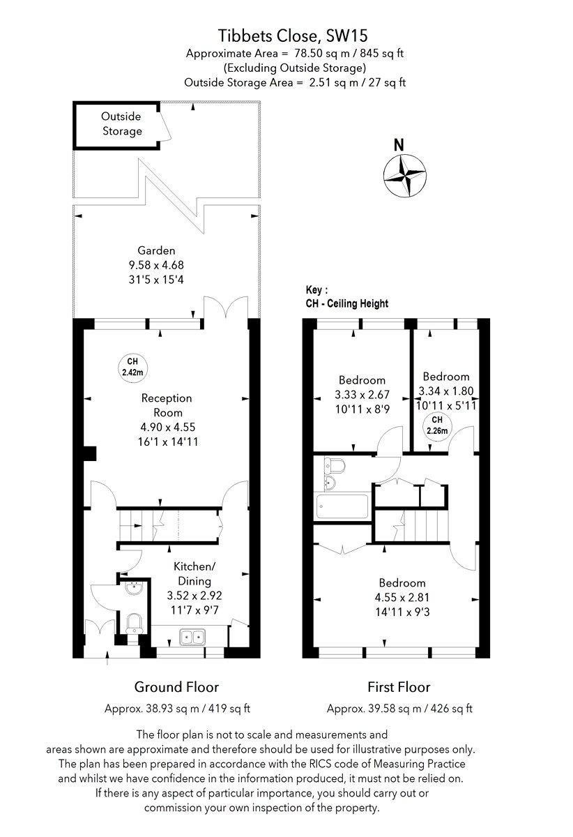
Description
An opportunity to acquire a three-bedroom house situated in a tranquil cul-de-sac, within close proximity to Wimbledon Common. The property requires comprehensive modernisation, presenting an ideal prospect for purchasers seeking to refurbish and tailor a family home to their individual specifications. The accommodation benefits from a private garden and offers potential for extension, subject to the necessary planning permissions (STPP). Tibbets Close is conveniently located approximately 0.6 miles from Southfields Underground Station, providing excellent transport links to Central London whilst being close to reputable local schools. Sole Agent. The vendor has accepted an offer and is no longer accepting viewings on the property.
Features at a glance
- Three bedrooms
- Private garden
- In need of modernisation
- Close to Wimbledon Common
Leasehold
Location
Key property details
- Property Style
- Terraced
- Accessibility
- Ask agent
- Parking
- Yes
- Garden
- Yes
- Lease expiry
- 04 November 2058
- Carter Jonas reference
- BNS250084
Description
An opportunity to acquire a three-bedroom house situated in a tranquil cul-de-sac, within close proximity to Wimbledon Common. The property requires comprehensive modernisation, presenting an ideal prospect for purchasers seeking to refurbish and tailor a family home to their individual specifications. The accommodation benefits from a private garden and offers potential for extension, subject to the necessary planning permissions (STPP). Tibbets Close is conveniently located approximately 0.6 miles from Southfields Underground Station, providing excellent transport links to Central London whilst being close to reputable local schools. Sole Agent. The vendor has accepted an offer and is no longer accepting viewings on the property.
Features at a glance
- Three bedrooms
- Private garden
- In need of modernisation
- Close to Wimbledon Common
Leasehold
Location
Key property details
- Property Style
- Terraced
- Accessibility
- Ask agent
- Parking
- Yes
- Garden
- Yes
- Lease expiry
- 04 November 2058
- Carter Jonas reference
- BNS250084
