- Sold
Ellerton Road, London, SW18
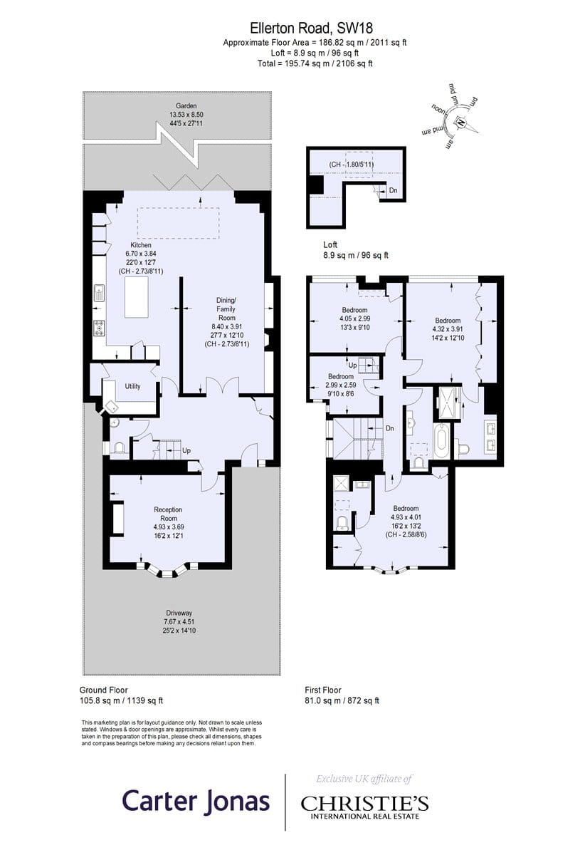
Description
With approximately 2,011 square feet of well-balanced and beautifully presented living and entertaining space, this four-bedroom Arts & Crafts style house, with Southwest facing garden, close to Wandsworth Common, ticks all the boxes. The house has been extended and updated to embrace modern living and entertaining. A large, bright, and welcoming central hallway leads to all the principle rooms. The fabulous kitchen/diner/family room packs a punch with an immaculately finished kitchen and island, large dining and living space, with bi-fold doors to the southwest facing terrace and garden. A utility room leading from the kitchen neatly houses the washing machine and drier. At the front of the property, the well-proportioned sitting room has a large bay window, and a contemporary feature fireplace, and under the stairs, a guest cloakroom W.C. completes the rear of the ground floor. Light Luxury Vinyl Tile flooring and underfloor heating runs throughout the majority of the downstairs space. The first floor comprises four double bedrooms, served by two ensuite shower rooms and a family bathroom. One of the bedrooms, currently arranged as a study, benefits from a mezzanine level, accessed by a ladder which could be used as a library area or play den. There is additional loft storage. Ellerton Road runs off Magdalen Road between Trinity Road and Burntwood Lane, making it extremely convenient for Wandsworth Common, and the shops, boutiques, pubs and bars of Bellevue Road and Garratt Lane. Transport links are well catered for with Wandsworth Common (approximately 0.7 miles) and Earlsfield (approximately 0.9 miles) Overground stations both nearby. The Underground Northern Line at Tooting Bec is also 1 mile away. There are plenty of local sporting facilities nearby such as the Magdalen Tennis Club, the Spencer Club and Battersea Ironsides Rugby Club. The area is renowned for its many good schools, both state and independent.
Features at a glance
- Four double bedrooms
- Three bath/shower rooms
- Magdalen Conservation Area
- Wider than average
- Large light-filled hallway
- Open-plan kitchen/dining living room
- Laundry room
- Southwest facing garden
- Large decking area
- Bifold doors
- Off-street parking
- Secure bike storage shed at front
- Close to the Amenities of Bellevue Road
- Wandsworth Common Train Station
- Northern Line at Tooting Bec
- Close to Earlsfield
Location
Key property details
- Property Style
- Terraced
- Accessibility
- Ask agent
- Parking
- Yes
- Garden
- Yes
- Carter Jonas reference
- WNS100246
Description
With approximately 2,011 square feet of well-balanced and beautifully presented living and entertaining space, this four-bedroom Arts & Crafts style house, with Southwest facing garden, close to Wandsworth Common, ticks all the boxes. The house has been extended and updated to embrace modern living and entertaining. A large, bright, and welcoming central hallway leads to all the principle rooms. The fabulous kitchen/diner/family room packs a punch with an immaculately finished kitchen and island, large dining and living space, with bi-fold doors to the southwest facing terrace and garden. A utility room leading from the kitchen neatly houses the washing machine and drier. At the front of the property, the well-proportioned sitting room has a large bay window, and a contemporary feature fireplace, and under the stairs, a guest cloakroom W.C. completes the rear of the ground floor. Light Luxury Vinyl Tile flooring and underfloor heating runs throughout the majority of the downstairs space. The first floor comprises four double bedrooms, served by two ensuite shower rooms and a family bathroom. One of the bedrooms, currently arranged as a study, benefits from a mezzanine level, accessed by a ladder which could be used as a library area or play den. There is additional loft storage. Ellerton Road runs off Magdalen Road between Trinity Road and Burntwood Lane, making it extremely convenient for Wandsworth Common, and the shops, boutiques, pubs and bars of Bellevue Road and Garratt Lane. Transport links are well catered for with Wandsworth Common (approximately 0.7 miles) and Earlsfield (approximately 0.9 miles) Overground stations both nearby. The Underground Northern Line at Tooting Bec is also 1 mile away. There are plenty of local sporting facilities nearby such as the Magdalen Tennis Club, the Spencer Club and Battersea Ironsides Rugby Club. The area is renowned for its many good schools, both state and independent.
Features at a glance
- Four double bedrooms
- Three bath/shower rooms
- Magdalen Conservation Area
- Wider than average
- Large light-filled hallway
- Open-plan kitchen/dining living room
- Laundry room
- Southwest facing garden
- Large decking area
- Bifold doors
- Off-street parking
- Secure bike storage shed at front
- Close to the Amenities of Bellevue Road
- Wandsworth Common Train Station
- Northern Line at Tooting Bec
- Close to Earlsfield
Location
Key property details
- Property Style
- Terraced
- Accessibility
- Ask agent
- Parking
- Yes
- Garden
- Yes
- Carter Jonas reference
- WNS100246
