- Sold
Elderfield Place, Heritage Park/Tooting Bec, SW17
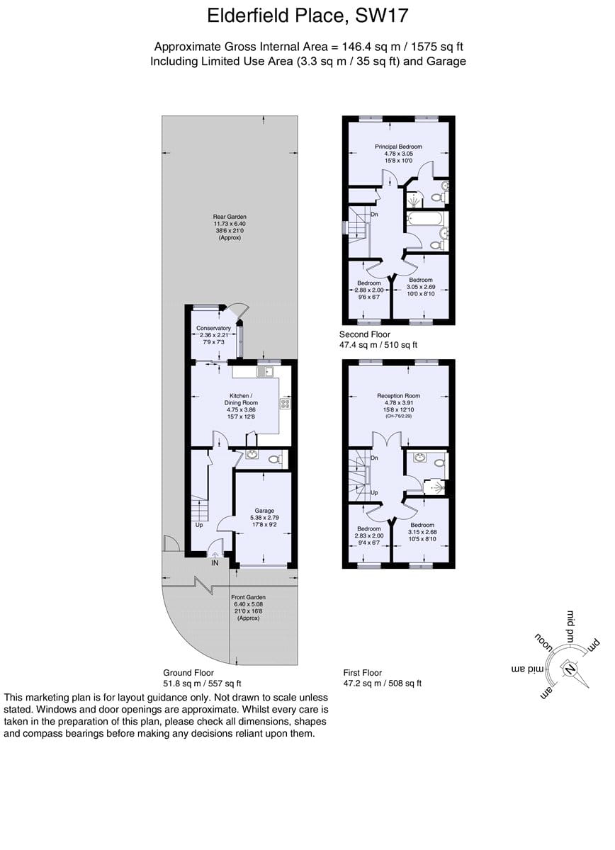
Description
A bright, five-bedroom, end of terrace townhouse, c. 1,575 sq. ft, with excellent eco-credentials, situated in a private development, with off street parking, close to Tooting Bec Common. The house is set over three storeys and offers practical accommodation with a spacious kitchen/diner and an adjoining garden room/conservatory, leading out to the c. 38 ft garden, which enjoys a sunny southerly aspect and secure side access. The kitchen/diner could be extended, subject to the necessary permissions. Back inside, a guest W.C. is located just off the hallway, as is the garage which is currently used as a spacious utility room and storage area, and with its original garage door at the front of the house, can be used for storing bikes/a cargo bike. This room could also be remodelled to become either a cinema room or study. To the front of the house, a private driveway provides off-street parking. On the first floor, a bright and spacious living room, overlooks the garden and benefits from engineered oak flooring, which extends throughout the property. There is also a shower room and two bright bedrooms which could be combined to create a larger bedroom. On the second floor, the principal suite has an ensuite shower room and views over the garden. Two further bedrooms to the front of the house and a bathroom complete the accommodation. The house has excellent eco-credentials, with energy consumption almost half of standard consumption for a house of this size. Eco features include: solar panel (owned outright); a Tesla house battery which can be charged from the solar panels or grid during off-peak periods; smart water tank (mixergy co uk) programmable via an app to heat water from the solar panels, grid, combi boiler or a heat pump. The existing gas combi boiler could easily be substituted for a heat pump thanks to the end of the terrace aspect of the house. The landscaped gardens, parking and communal areas of Heritage Park are well-maintained and benefit from two onsite caretakers and a night-time security guard. The Heritage Park development is located moments from Tooting Bec Common with its leisure amenities including Tooting Bec Lido, the largest open air swimming pool in the UK, Tooting Bec Athletics Track and tennis courts. Nearby Tooting Bec Station on the Norther line (Zone 3), just 0.7 miles away, provides a short and direct commute into the City of London and the West End while plentiful bus routes offer frequent and additional travel options.
Features at a glance
- Five bedrooms
- Open plan kitchen/diner
- Conservatory/garden room
- Large living room
- South west facing garden
- Garage/utility room
- Eco-friendly home
- 2 shower rooms
- 1 bathroom
- W.C.
- Off street parking
- Quiet residential development
- Close to Tooting Bec Common
- Northern Line at Tooting Bec close by
Location
Key property details
- Property Style
- End of terrace
- Accessibility
- Ask agent
- Parking
- Yes
- Garden
- Yes
- Carter Jonas reference
- WNS240066
Description
A bright, five-bedroom, end of terrace townhouse, c. 1,575 sq. ft, with excellent eco-credentials, situated in a private development, with off street parking, close to Tooting Bec Common. The house is set over three storeys and offers practical accommodation with a spacious kitchen/diner and an adjoining garden room/conservatory, leading out to the c. 38 ft garden, which enjoys a sunny southerly aspect and secure side access. The kitchen/diner could be extended, subject to the necessary permissions. Back inside, a guest W.C. is located just off the hallway, as is the garage which is currently used as a spacious utility room and storage area, and with its original garage door at the front of the house, can be used for storing bikes/a cargo bike. This room could also be remodelled to become either a cinema room or study. To the front of the house, a private driveway provides off-street parking. On the first floor, a bright and spacious living room, overlooks the garden and benefits from engineered oak flooring, which extends throughout the property. There is also a shower room and two bright bedrooms which could be combined to create a larger bedroom. On the second floor, the principal suite has an ensuite shower room and views over the garden. Two further bedrooms to the front of the house and a bathroom complete the accommodation. The house has excellent eco-credentials, with energy consumption almost half of standard consumption for a house of this size. Eco features include: solar panel (owned outright); a Tesla house battery which can be charged from the solar panels or grid during off-peak periods; smart water tank (mixergy co uk) programmable via an app to heat water from the solar panels, grid, combi boiler or a heat pump. The existing gas combi boiler could easily be substituted for a heat pump thanks to the end of the terrace aspect of the house. The landscaped gardens, parking and communal areas of Heritage Park are well-maintained and benefit from two onsite caretakers and a night-time security guard. The Heritage Park development is located moments from Tooting Bec Common with its leisure amenities including Tooting Bec Lido, the largest open air swimming pool in the UK, Tooting Bec Athletics Track and tennis courts. Nearby Tooting Bec Station on the Norther line (Zone 3), just 0.7 miles away, provides a short and direct commute into the City of London and the West End while plentiful bus routes offer frequent and additional travel options.
Features at a glance
- Five bedrooms
- Open plan kitchen/diner
- Conservatory/garden room
- Large living room
- South west facing garden
- Garage/utility room
- Eco-friendly home
- 2 shower rooms
- 1 bathroom
- W.C.
- Off street parking
- Quiet residential development
- Close to Tooting Bec Common
- Northern Line at Tooting Bec close by
Location
Key property details
- Property Style
- End of terrace
- Accessibility
- Ask agent
- Parking
- Yes
- Garden
- Yes
- Carter Jonas reference
- WNS240066
