- Sold
Lot 1: Leaze Farm, Lympsham, BS24
Description
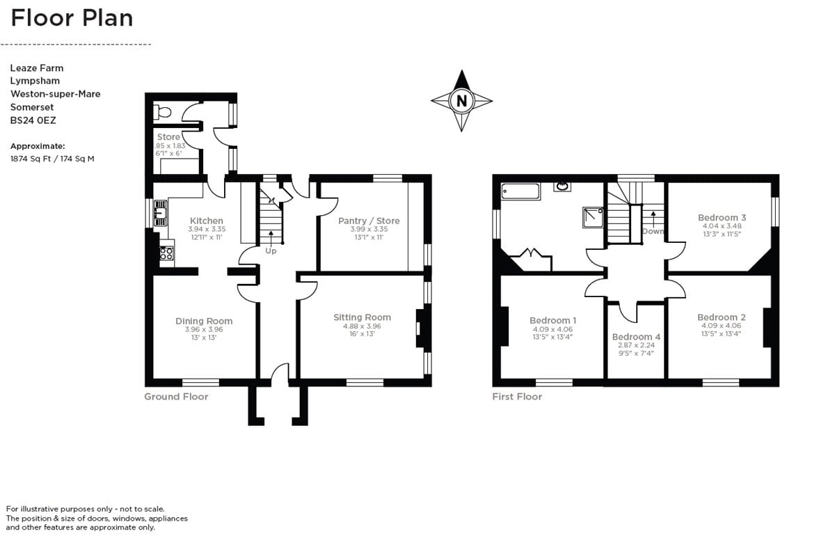
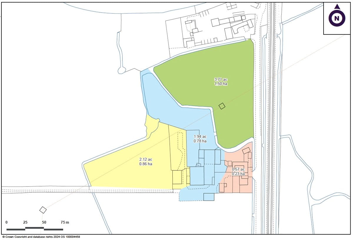
Lot 1: Leaze Farm, Lympsham, Weston-super-Mare, Somerset, BS24 0EZ A detached farmhouse for renovation together with two modern farm buildings with permission for conversion and a pasture paddock. Lot 1 comprises Leaze Farmhouse and outbuildings set within 0.57 of an acre. Lot 2 comprises a modern steel framed building with permission for conversion to a four-bedroom dwelling together with an adjoining paddock and further modern buildings. In all 1.94 acres. Lot 3 comprises a modern livestock building with permission for conversion to a four bedroom dwelling together with an adjoining paddock. In all 2.12 acres. Lot 4 comprises a pasture paddock extending to 3.71 acres. For sale by online auction in up to four separate lots. Location Leaze Farm is located a short distance from the sought after village of Lympsham, close to Weston-super-Mare and Burnham-on-Sea. Lympsham offers a church, primary school, village hall, and Post Office, as well as tennis courts and a cricket pitch with the Lympsham Pavilion now a popular village social venue. A wider range of services are available in Weston-super-Mare and Burnham-on-Sea. There is easy access to the M5 motorway at Junction 22, with railway links at Weston-super-Mare, and Highbridge. Lot 1: Leaze Farmhouse Constructed of brick and rendered elevations under a tiled roof and requiring modernisation/renovation, Leaze Farmhouse offers accommodation comprising: Ground Floor – Rear entrance hall with WC off. – Kitchen – Dining Room – Sitting Room – Pantry/Office – Front porch to entrance hall and stairs to first floor First Floor – Landing – Four Bedrooms – Family Bathroom Outside, at the front of the property, is a lawned garden. To the rear is a single storey u-shaped brick and tile former dairy and store forming a courtyard area. To the side of this building is a further rendered and fibre cement storage building. To the rear of the former dairy are two further part steel-clad storage buildings. There are two further steel storage buildings to the west of the farmhouse. In all, the farmhouse and associated outbuildings are offered within land totalling 0.57 of an acre. Method of sale The property is offered for sale by online auction with guide prices* for the individual lots as listed below. The property will be sold subject to a reserve price**. For further information, to register to bid, and review the auction packs, visit carterjonas.co.uk/property-auctions. *The guide price is the minimum price at which the seller is prepared to sell at the date of publication. **The reserve price is the minimum price at which the auctioneer is authorised by the seller to sell the lot at auction. The lot may be sold to the highest bidder at or above the reserve price but the auctioneer is not authorised to sell at a figure below the reserve price. Both the guide price and the reserve price are subject to change. Potential purchasers should ensure that they register their interest in the property and regularly check for updated information regarding the property, including changes to the guide price. The guide price for Lot 1 is £350,000. The guide price for Lot 2 is £125,000. The guide price for Lot 3 is £125,000. The guide price for Lot 4 is £50,000. Lot 1 will be offered for sale first with an auction finish time of midday on Wednesday 25th September 2024. The successful purchaser of Lot 1 will be offered the option to purchase Lots 2 and 3 at their combined guide price. If the purchaser of Lot 1 does not accept the option to purchase Lots 2 and 3, Lot 2 will then be offered for sale with an auction finish time of midday on Wednesday 9th October 2024. The successful purchaser of Lot 2 will be offered the option to purchase Lot 3 at the guide price. If the purchaser of Lot 2 does not accept the option to purchase Lot 3, Lot 3 will then be offered for sale separately with an auction finish time of midday on Wednesday 23rd October 2024. Lot 4 will be offered for sale with an auction finish time of midday on Wednesday 23rd October 2024. Completion of the sale of all four lots is due on 20th November 2024. Tenure & Possession The freehold of the property is offered for sale with vacant possession available upon completion. Planning Permission was granted by Somerset Council (Sedgemoor District) for the conversion of the buildings within Lots 2 and 3 in August 2024 under application numbers 31/24/00009 and 31/24/00008 respectively. Services Leaze Farmhouse (Lot 1) is connected to mains water and electricity with private drainage. Potential purchasers should assume that a new sewage treatment plant will need to be installed to service the farmhouse. Lots 2, 3, and 4 are sold without any services connected. Potential purchasers should make their own enquiries in relation to service connections to service these lots. EPC Ratings Leaze Farmhouse has an EPC rating of G. Wayleaves Easements & Rights of Way A right of way will be reserved through Lot 1 for the benefit of Lots 2 and 3, and in turn through Lot 2, for the benefit of Lot 3, if sold separately. A right to lay services will be granted over the land to the south of Lot 1, and over Lot 2 for the benefit of Lot 3, if sold separately. Local Authorities Somerset Council Viewings Viewings are by appointment through the selling agents, Carter Jonas, on 01823 428590. Directions From Lympsham head towards Batch Country House. At the right turning for Batch Country House, continue on towards Weston-super-Mare and over the railway line. The entrance to Leaze Farm will be found shortly after on the left-hand side. What Three Words /// types.cage.labels
Features at a glance
- Lot 1 Leaze Farm
Location
Key property details
- Accessibility
- Ask agent
- Parking
- Ask agent
- Garden
- No
- Carter Jonas reference
- TAU240093
Description
Lot 1: Leaze Farm, Lympsham, Weston-super-Mare, Somerset, BS24 0EZ A detached farmhouse for renovation together with two modern farm buildings with permission for conversion and a pasture paddock. Lot 1 comprises Leaze Farmhouse and outbuildings set within 0.57 of an acre. Lot 2 comprises a modern steel framed building with permission for conversion to a four-bedroom dwelling together with an adjoining paddock and further modern buildings. In all 1.94 acres. Lot 3 comprises a modern livestock building with permission for conversion to a four bedroom dwelling together with an adjoining paddock. In all 2.12 acres. Lot 4 comprises a pasture paddock extending to 3.71 acres. For sale by online auction in up to four separate lots. Location Leaze Farm is located a short distance from the sought after village of Lympsham, close to Weston-super-Mare and Burnham-on-Sea. Lympsham offers a church, primary school, village hall, and Post Office, as well as tennis courts and a cricket pitch with the Lympsham Pavilion now a popular village social venue. A wider range of services are available in Weston-super-Mare and Burnham-on-Sea. There is easy access to the M5 motorway at Junction 22, with railway links at Weston-super-Mare, and Highbridge. Lot 1: Leaze Farmhouse Constructed of brick and rendered elevations under a tiled roof and requiring modernisation/renovation, Leaze Farmhouse offers accommodation comprising: Ground Floor – Rear entrance hall with WC off. – Kitchen – Dining Room – Sitting Room – Pantry/Office – Front porch to entrance hall and stairs to first floor First Floor – Landing – Four Bedrooms – Family Bathroom Outside, at the front of the property, is a lawned garden. To the rear is a single storey u-shaped brick and tile former dairy and store forming a courtyard area. To the side of this building is a further rendered and fibre cement storage building. To the rear of the former dairy are two further part steel-clad storage buildings. There are two further steel storage buildings to the west of the farmhouse. In all, the farmhouse and associated outbuildings are offered within land totalling 0.57 of an acre. Method of sale The property is offered for sale by online auction with guide prices* for the individual lots as listed below. The property will be sold subject to a reserve price**. For further information, to register to bid, and review the auction packs, visit carterjonas.co.uk/property-auctions. *The guide price is the minimum price at which the seller is prepared to sell at the date of publication. **The reserve price is the minimum price at which the auctioneer is authorised by the seller to sell the lot at auction. The lot may be sold to the highest bidder at or above the reserve price but the auctioneer is not authorised to sell at a figure below the reserve price. Both the guide price and the reserve price are subject to change. Potential purchasers should ensure that they register their interest in the property and regularly check for updated information regarding the property, including changes to the guide price. The guide price for Lot 1 is £350,000. The guide price for Lot 2 is £125,000. The guide price for Lot 3 is £125,000. The guide price for Lot 4 is £50,000. Lot 1 will be offered for sale first with an auction finish time of midday on Wednesday 25th September 2024. The successful purchaser of Lot 1 will be offered the option to purchase Lots 2 and 3 at their combined guide price. If the purchaser of Lot 1 does not accept the option to purchase Lots 2 and 3, Lot 2 will then be offered for sale with an auction finish time of midday on Wednesday 9th October 2024. The successful purchaser of Lot 2 will be offered the option to purchase Lot 3 at the guide price. If the purchaser of Lot 2 does not accept the option to purchase Lot 3, Lot 3 will then be offered for sale separately with an auction finish time of midday on Wednesday 23rd October 2024. Lot 4 will be offered for sale with an auction finish time of midday on Wednesday 23rd October 2024. Completion of the sale of all four lots is due on 20th November 2024. Tenure & Possession The freehold of the property is offered for sale with vacant possession available upon completion. Planning Permission was granted by Somerset Council (Sedgemoor District) for the conversion of the buildings within Lots 2 and 3 in August 2024 under application numbers 31/24/00009 and 31/24/00008 respectively. Services Leaze Farmhouse (Lot 1) is connected to mains water and electricity with private drainage. Potential purchasers should assume that a new sewage treatment plant will need to be installed to service the farmhouse. Lots 2, 3, and 4 are sold without any services connected. Potential purchasers should make their own enquiries in relation to service connections to service these lots. EPC Ratings Leaze Farmhouse has an EPC rating of G. Wayleaves Easements & Rights of Way A right of way will be reserved through Lot 1 for the benefit of Lots 2 and 3, and in turn through Lot 2, for the benefit of Lot 3, if sold separately. A right to lay services will be granted over the land to the south of Lot 1, and over Lot 2 for the benefit of Lot 3, if sold separately. Local Authorities Somerset Council Viewings Viewings are by appointment through the selling agents, Carter Jonas, on 01823 428590. Directions From Lympsham head towards Batch Country House. At the right turning for Batch Country House, continue on towards Weston-super-Mare and over the railway line. The entrance to Leaze Farm will be found shortly after on the left-hand side. What Three Words /// types.cage.labels
Features at a glance
- Lot 1 Leaze Farm
Location
Key property details
- Accessibility
- Ask agent
- Parking
- Ask agent
- Garden
- No
- Carter Jonas reference
- TAU240093