Lender Lane, Mullion TR12

Lender Lane, Mullion TR12

5 Bedroom | Freehold | Holiday Complex

Offers in excess of £1,500,000
Gweek Quay 4.9 miles

Established holiday cottage complex set within the village of Mullion, within walking distance of the facilities and only 1½ miles from the sea. 5-bedroom farmhouse, 5 holiday letting cottages and two let commercial premises. Ideally situated to explore the Lizard Peninsula

Holiday cottage complex set within the village of Mullion, within walking distance of the amenities and facilities and only 1½ miles from the sea.

An established and profitable business with a 5-bedroom farmhouse, 5 holiday letting cottages and two let commercial premises.

All ideally situated to explore the Lizard Peninsula and the South Cornwall coastline.

In all, extending to 0.4 acres.

Offered for sale by private treaty as a whole.


Location
Colroger House & Cottages is located in the centre of Mullion, a picturesque Cornish village on the Lizard Peninsula in South Cornwall. Just 1½ miles away lies Mullion Cove, home to a National Trust harbour that’s popular for boat trips, paddleboarding, and kayaking due to its rich wildlife, including seals and seabirds. Nearby, are several popular beaches such as the National Trust Poldhu Cove with beach café, Polurrian, Kynance Cove with National Trust car park, Gunwalloe Church Cove beach and Loe Bar.

Other popular destinations on the Lizard include Lizard Point, the most southerly point on the south coast of England, the fishing village of Cadgwith, Kennack Sands and Coverack.

The village of Mullion offers a range of amenities and facilities within walking distance of the property, including pubs, restaurants, takeaways, churches, local shops, a Co-op supermarket, a chemist and a health centre. Families are well-served with both Mullion Community Primary School and Mullion School, a nearby secondary school. Among the local pubs, The Old Inn and Mounts Bay Pub are known for good food within the area. Mullion Golf Course, set on the headland overlooking the sea is just 1¾ miles away.

Additional amenities can be found in the town of Helston, just 7 miles away, including a selection of supermarkets, shops, pubs, a theatre, cinema, and a sports complex with an indoor swimming pool. For further amenities and facilities, the county town of Truro lies 24 miles to the north.

The surrounding area offers a range of tourist attractions, including the picturesque harbour town of Porthleven, just 9 miles away, known for its harbour and restaurants. Other popular nearby destinations also include the Cornish Seal Sanctuary in Gweek, the Trebah Gardens, and the Helford River. Further afield, Falmouth is home to Pendennis Castle (English Heritage) and the National Maritime Museum Cornwall. Guests often visit the fishing village of Mousehole, the Minack Theatre, St Ives, and Carbis Bay (22½ miles away), as well as the dramatic coastline at Land’s End, located 30 miles away.


The Business
Colroger Holiday Cottages is an established and profitable business located in the centre of the village of Mullion, making it extremely popular with guests as they can walk out to the amenities within the village. The Vendor’s have been in ownership of the property since 1969 and have built up high levels of repeat and recommendation business over the last 56 years and the sale is due to retirement.

The business is currently promoted through its own website: www.colrogersholidays.co.uk. It operates independently without the use of booking agents. Two of the cottages have recently been listed on Airbnb and social media is used on a limited basis including Facebook and Instagram.

The gross turnover for the business year ending 2023 was £62,479 with a net profit of £45,512. The gross turnover year ending 2022 was £66,979 with a net profit of £38,351.

In addition to the holiday letting business, there are two commercial properties that are currently let out including a café with a passing rent of £6,480 per annum and a dog grooming parlour with a passing rent of £5,760 per annum.

There is potential for further development of the business, particularly by extending the holiday letting season beyond the current limited operating months of March to October. Additionally, to increase the turnover of the business, the appointment of a holiday letting agent could enhance bookings.

Adjoining Colroger House is an externally accessed store, which offers potential for conversion in conjunction with the sun room in the main house, into an annexe or an additional holiday let, subject to gaining the necessary planning consents. Trading information can be provided to bona fide purchasers


Colroger House
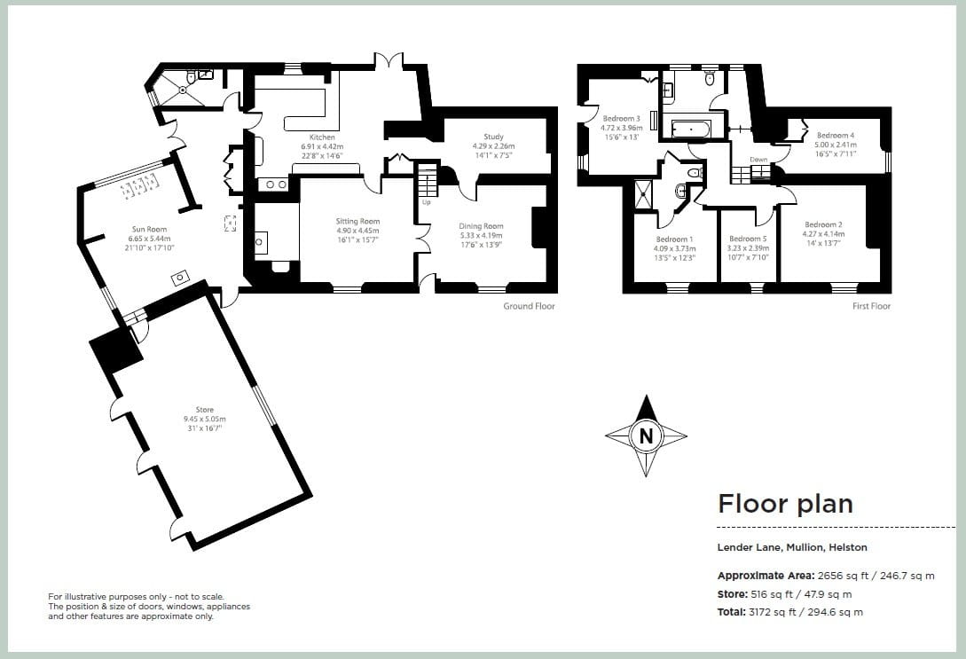
A period 5-bedroom farmhouse that has been refurbished to a high standard with a high degree of privacy from the holiday cottage complex, with a private garden to front and gated access out to the village.

The accommodation on the ground floor comprises a sitting room with Inglenook stone fireplace with parquet flooring, heavy beam over ceiling and windows overlooking the gardens. Doors leading through into the dining room with stone fireplace, slate hearth housing a wood burning stove, window overlooking the front garden and door into the gardens leading out onto a patio area. Stairs to first floor accommodation.

Oak style kitchen with granite work surfaces and central island. Ceramic tiled floor, spotlights, stable door into the rear hall and French doors leading out onto the courtyard. The study is accessed from the kitchen and has a door leading into the dining room.

There is a rear hall which has a door leading out onto the courtyard. From the rear hall, there is a door that leads out onto the gardens. The rear hall gives access into the kitchen and into a wet room. Steps lead up into a sun room which has a picture window overlooking the courtyard, a wood burning stove and skylights.

Further steps and door lead into a store which is currently used as a workshop. Potential to convert the sun room and the store into an annexe for the main house for a dependent relative or into an additional letting holiday cottage, subject to gaining the relevant planning consents.

At first floor, the landing provides access to the rooms. Bedroom 1 with window to front overlooking the gardens and an en-suite shower room which can also be accessed via bedroom 3.

Bedroom 2 with window to front overlooking the gardens.

Bedroom 3 with window to side overlooking the courtyard and door into an en-suite shower room shared with Bedroom 1. Door that leads out onto a balcony overlooking the courtyard and spiral metal staircase
leading down onto the courtyard.

Bedroom 4 with window to side.

Bedroom 5 with window to front overlooking the gardens.

In addition, a family bathroom.

Outside to the front of the property is an enclosed garden laid mainly to lawn with a patio area next to the house which has a high degree of privacy from the cottages and gated access out onto the road and the village. The garden is laid mainly to lawn with flower and shrub borders.


The Cottages
The five holiday cottages, each named after local beaches, are well-equipped with fitted kitchens that include an oven and hob, fridge/freezer, microwave, and washing machine. Poldhu and Polurrian also have a tumble dryer and share a communal hallway that connects the two, making them ideal for larger family groups when rented together.

Each cottage is furnished with a TV, DVD player, and Wi-Fi access. They are electrically heated and feature electric woodburning style effect fires. Each cottage has an allocated parking space for one vehicle, with additional free parking available in the village car park, just a short walk away.


Polpeor
Single storey cottage with open plan sitting/dining room and kitchen area. Bedroom and bathroom. (Sleeps 2).

Poldhu
Single storey cottage comprising a sitting room, dining room and kitchen area. Two bedrooms and an enclosed patio area to the rear. (Sleeps 4)

Polurrian
Single storey cottage comprising a sitting room, dining room and kitchen area. Two bedrooms and an enclosed patio area to the rear. (Sleeps 4)

Kennack
Two storey cottage providing on the ground floor, an open plan sitting/dining room and kitchen area and a bathroom. At first floor, a landing and two bedrooms. (Sleeps 4)

Kynance
Two storey cottage providing on the ground floor, an open plan sitting/dining room and kitchen area and a bathroom. At first floor, a landing and two bedrooms. (Sleeps 4)


The Commercial Properties
At the entrance to the property is a café which is let out on a business tenancy dated October 2024 for a term of 6-years, with a 3-year rent review and a passing rent of £6,480 per annum. Also located at the entrance of the property is a dog grooming parlour which is let on a business tenancy for a term of 2-years dated April 2025 with a passing rent of £5,760 per annum.


Outside
The courtyard, formerly a farmyard, is laid to concrete and adorned with potted plants, hanging baskets, and seasonal flowers. The owners take great pride in gardening this space, particularly during the summer months, for the guests to enjoy.

The courtyard has five allocated spaces for the holiday cottages and additional space for the main farmhouse to park 2/3 vehicles. On the opposite side of the courtyard is an open fronted car park which has space for three further vehicles and is used as a garden store for the property. Adjoining Colroger House is an externally accessed store which has the potential to be converted in conjunction with the sun room in the main house into annexe or an additional holiday letting cottage, subject to gaining the relevant planning consents.


Method of Sale
The property is offered by sale by private treaty inclusive of trade inventory to include furnishings, equipment, fixtures and fittings in relation to the business, excluding any personal items.

Tenure & Possession
The freehold interest is offered for sale with vacant possession available on completion, subject to the current leases relating to the Café and dog grooming parlour.

EPC Ratings
Colroger House E
Polurrian E
Poldhu E
Polpeor E
Kennack E
Kynance E

Council Tax
Band E

Services
The property is serviced by mains water, electricity and drainage. Colroger House has oil-fired central heating.

Rateable Value
According to the Valuation Office website, the premises has a rateable value of £9,450. Interested parties are advised to make their own enquiries.

Local Authority
Cornwall Council
www.cornwall.gov.uk

Viewings
Strictly by appointment with agents Carter Jonas, 01823 428590.

What3Words
/// awyer.billiard.cheeses

The next steps...

Before making an offer on a property you will want to consider your financial situation, your income and outgoings.

Will you finance the purchase of your next property from the sale of an existing property which can put you in a chain, arrange a mortgage through your bank or buy the property outright.

To help you finance your next property purchase, we have a long established relationship with an independent mortgage broker who can discuss your situation with you.

Remember that having a 'mortgage decision in principle' can make you a more attractive buyer when you make an offer on a property. Contact our mortgage advisers for free, no obligation and impartial advice.

Some advantages of a broker are:

  • They do all the legwork for you, working on your behalf with the lender
  • They compare wholesale mortgage rates from a large number of banks and lenders all at once
  • Their wholesale interest rates can be lower than retail (bank branch) interest rates
  • They offer more loan options because they work with numerous banks and lenders
  • They can finance tricky deals because of their knowledge and various lending partners
  • They are typically easier to get in contact with, and are less bureaucratic.

However advantages of working with your bank are:

  • You may be able to build off an existing relationship (and gain discounts if you have a checking or savings account)
  • You may already know the banker who will handle your mortgage
  • Banks may be more accountable than a smaller shop
  • They may offer lower interest rates in some cases
  • Their ability to add mortgage to existing banking profile and make automatic payments from linked account.

When you see a property you are interested in on our website, call us 24/7 to arrange a viewing. Or if you prefer, get in touch via our website and we will call you back to find a time to view the property that suits you.

Once you’ve found a property you want to buy, it’s time to make an offer. A bit of negotiation is to be expected, however don't offer so little that you end up in a lengthy negotiation process, as you might lose the property altogether if someone else makes a higher bid.

If other offers have been made on a property we aren't legally able to tell you what they are, but we may indicate if they were close to the asking price.

If you have a property to sell, why not see how we can help you.

Or if you’re considering letting your property, we can take the stress out of managing your rental, and our award winning lettings team offer a service that can be tailored to your needs.

Combined with nearly 170 years of experience and one of the highest customer satisfaction scores in the industry, Carter Jonas is the perfect property partner.

Why not book a free, no obligation valuation of your property and find out how Carter Jonas can help you make your next move.

Key property details
Additional attributes
Holiday Complex
Tenure
Freehold
Carter Jonas reference
TAU250013
Thinking of selling?

Find out what your property is worth