Leckhampstead, Newbury, RG20
Description
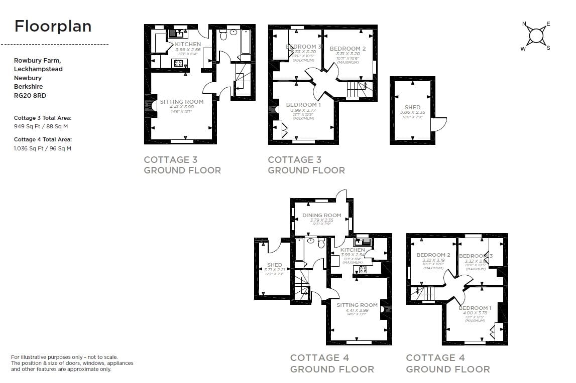
Lot 4: 4 Rowbury Cottages, a 3 bed semi-detached cottage with large garden | 0.14 acres (0.06 ha). Location Rowbury Farm lies south of the village of Leckhampsted in West Berkshire, the location is primarily rural but with good connection via the nearby B4494. Communications in the area are excellent, with a direct train service from Newbury into London Paddington and easy access to the M4 and A34 linking with London, Heathrow Airport and the West Country. Amenities Leckhampstead is a very sought-after village in a rural elevated spot on the Berkshire Downs. There is a thriving local community, and a village hall and church in the village and there are pubs in nearby Chaddleworth and Peasemore. The smaller market towns of Newbury, Wantage and Hungerford provide an excellent range of local facilities, as well as shops, cafés and restaurants. There is a wide choice of highly regarded state and independent schools in the area as well as a host of leisure pursuits including fishing, golf and horseracing. Cottages 4 Rowbury Farm Cottages is one of a pair of attractive brick under tile semi-detached cottages located on the southern boundary of Rowbury Farm. Extending to 1,036 sq.ft it has wooden doors, kitchen, sitting room and ground floor bathrooms they provide 3 bedroom accommodation to the first floor and an ample garden. 4 Rowbury has a lean-to wooden framed extension and an external store. An historic well is located in the garden of 4 Rowbury and if sold separately there will need to be rights enabled for the drainage of 3 Rowbury which is currently shared. Method of Sale For sale by private treaty as a whole or in up to 4 lots. Tenure & possession Freehold and with vacant possession on completion barring: – 4 Rowbury Cottage which is subject to an Assured Shorthold Tenancy albeit vacant possession can be gained at the end of September 2025. Further details on request. Company Ownership For clarity the property is wholly owned by a Ltd Company and as such the transaction can be either direct assets or via a share sale. Further detail on request. Designations The property is wholly located in the North Wessex Downs National Landscape. Services Cottages: Mains electricity is connected. Drainage is to private systems. Water is via a private borehole supply from the core farm. Broadband is available. Heating is via oil fired systems. Wayleaves Easements & Rights of Way The property is sold subject to the benefit of all rights including rights of way, whether public or private, light, support, drainage, water and electricity supplies and other rights and obligations, easements and proposed wayleaves from masts, pylons, stays, cables, drains, water, gas and other pipes, whether specifically referred to or not. Sporting Timber & Mineral Rights The mineral, sporting and timber rights are included in the sale of the freehold in so far as that are owned. Health & Safety All viewings are carried out at the sole risk of the viewer and neither the selling agents nor the vendor takes responsibility. EPC Ratings 4 Rowbury: E Local Authority West Berkshire Council www.westberks.gov.uk Viewings Viewings are by appointment only by contacting the sole selling agents Carter Jonas. Material Information For mobile and broadband coverage see https://checker.ofcom.org.uk/ What3Words Lot 4: ///charging.towels.perfectly
Location
Key property details
- Special Features
- Outbuildings
- Accessibility
- Ask agent
- Parking
- Ask agent
- Garden
- No
- Carter Jonas reference
- NWR250007
Description
Lot 4: 4 Rowbury Cottages, a 3 bed semi-detached cottage with large garden | 0.14 acres (0.06 ha). Location Rowbury Farm lies south of the village of Leckhampsted in West Berkshire, the location is primarily rural but with good connection via the nearby B4494. Communications in the area are excellent, with a direct train service from Newbury into London Paddington and easy access to the M4 and A34 linking with London, Heathrow Airport and the West Country. Amenities Leckhampstead is a very sought-after village in a rural elevated spot on the Berkshire Downs. There is a thriving local community, and a village hall and church in the village and there are pubs in nearby Chaddleworth and Peasemore. The smaller market towns of Newbury, Wantage and Hungerford provide an excellent range of local facilities, as well as shops, cafés and restaurants. There is a wide choice of highly regarded state and independent schools in the area as well as a host of leisure pursuits including fishing, golf and horseracing. Cottages 4 Rowbury Farm Cottages is one of a pair of attractive brick under tile semi-detached cottages located on the southern boundary of Rowbury Farm. Extending to 1,036 sq.ft it has wooden doors, kitchen, sitting room and ground floor bathrooms they provide 3 bedroom accommodation to the first floor and an ample garden. 4 Rowbury has a lean-to wooden framed extension and an external store. An historic well is located in the garden of 4 Rowbury and if sold separately there will need to be rights enabled for the drainage of 3 Rowbury which is currently shared. Method of Sale For sale by private treaty as a whole or in up to 4 lots. Tenure & possession Freehold and with vacant possession on completion barring: – 4 Rowbury Cottage which is subject to an Assured Shorthold Tenancy albeit vacant possession can be gained at the end of September 2025. Further details on request. Company Ownership For clarity the property is wholly owned by a Ltd Company and as such the transaction can be either direct assets or via a share sale. Further detail on request. Designations The property is wholly located in the North Wessex Downs National Landscape. Services Cottages: Mains electricity is connected. Drainage is to private systems. Water is via a private borehole supply from the core farm. Broadband is available. Heating is via oil fired systems. Wayleaves Easements & Rights of Way The property is sold subject to the benefit of all rights including rights of way, whether public or private, light, support, drainage, water and electricity supplies and other rights and obligations, easements and proposed wayleaves from masts, pylons, stays, cables, drains, water, gas and other pipes, whether specifically referred to or not. Sporting Timber & Mineral Rights The mineral, sporting and timber rights are included in the sale of the freehold in so far as that are owned. Health & Safety All viewings are carried out at the sole risk of the viewer and neither the selling agents nor the vendor takes responsibility. EPC Ratings 4 Rowbury: E Local Authority West Berkshire Council www.westberks.gov.uk Viewings Viewings are by appointment only by contacting the sole selling agents Carter Jonas. Material Information For mobile and broadband coverage see https://checker.ofcom.org.uk/ What3Words Lot 4: ///charging.towels.perfectly
Location
Key property details
- Special Features
- Outbuildings
- Accessibility
- Ask agent
- Parking
- Ask agent
- Garden
- No
- Carter Jonas reference
- NWR250007
