Littleworth, Pewsey, SN9
Description
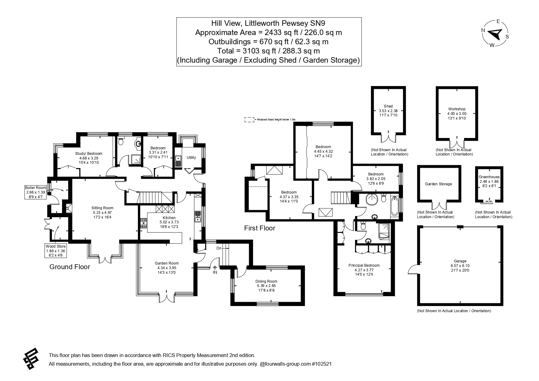
Description Hill View is an impressive and substantial family house occupying a large plot (c0.67 acres) and enjoying far reaching views over the surrounding countryside. Originally built in the 1960s, the property has undergone significant extension over the years and at 2433 square feet there is an abundance of light and well planned accommodation. The striking timber clad two storey extension to the western facade enhances the overall design. The standout room on the ground floor is the open-plan kitchen/dining/living area. A fabulous room in which to entertain and from where you can enjoy views out over the garden and fields beyond. The kitchen itself if fitted with a great range of units and built in appliances, with a handy utility room located off the main hall. The expansive sitting room is centred around the wood-burning stove and has been extended by the current owners, creating a large bay window with double doors leading to the garden. The separate dining room and study provide two extra reception rooms suitable for flexible use, with the option of the latter doubling up as a sixth bedroom. A ground floor bedroom with an adjoining and well-appointed bathroom provide further versatility. Upstairs, there are four well proportioned bedrooms, including an impressive vaulted principal suite with floor to ceiling windows and panoramic views over the surrounding countryside. A family bathroom serves the remaining bedrooms. Outside A double garage and generous driveway parking provide ample room for vehicles, while a range of outbuildings including a garden shed, workshop, woodstore and a greenhouse, offer extensive practical and hobby space. Set within approximately 0.67 acres, the property enjoys a delightful garden, backing onto open fields. There is a large westerly terrace, accessed off the kitchen/dining room, perfect for afternoon and evening sun - an ideal setting for outdoor dining and entertaining. The gardens are filled with a great range of shrubs and also feature a pond and delightful orchard, adding to the rural appeal. Environmentally conscious buyers will appreciate the EV charging point and solar panels, which help to reduce running costs. Situation Hill View is situated in the small rural hamlet of Littleworth, just north of the better know village of Milton Lilbourne. The area is well known for its unspoilt small villages and hamlets amongst the beautiful, gently rolling countryside of the Vale of Pewsey. There is immediate access to wonderful walking, riding and cycling as well as the Kennet and Avon canal nearby. Milton Lilbourne is within a five minute walk and offers a parish church and village hall. The larger village of Pewsey is just over two miles away and enjoys a broad ranges of amenities including supermarket, doctors and dental surgeries, chemist, cafes, shops and range of sports clubs. There is also a leisure centre with gym and swimming pool. Pewsey railway station has trains directly into London Paddington in about a hour. Easy access by car into Marlborough c.15 minutes. For schooling, the Easton Royal Academy (primary) under 2 miles away is affiliated with St Johns Academy, Marlborough (secondary). Both excellent options. For those interested in independant education, again excellent options with St Francis prep, Pewsey and Dauntseys and Marlborough College, all within easy reach. What3Words - ///huddling.enormous.overt Services and Material Information - Freehold - Mains water, mains drainage, oil fired central heating. - Council tax band: F - Energy efficiency rating: B - Broadband and mobile coverage. Please refer to Ofcom website for more details
Features at a glance
- Detached house
- 5 bedrooms
- 4 reception rooms
- Stunning views
- c0.67 acres in all
- Ample driveway parking
- Double garage
- 13 Solar panels
- West facing garden
- Glorious rural location
Location
Key property details
- Property Style
- Detached
- Accessibility
- Ask agent
- Parking
- Yes
- Garden
- Yes
- Carter Jonas reference
- MAR250436
Description
Description Hill View is an impressive and substantial family house occupying a large plot (c0.67 acres) and enjoying far reaching views over the surrounding countryside. Originally built in the 1960s, the property has undergone significant extension over the years and at 2433 square feet there is an abundance of light and well planned accommodation. The striking timber clad two storey extension to the western facade enhances the overall design. The standout room on the ground floor is the open-plan kitchen/dining/living area. A fabulous room in which to entertain and from where you can enjoy views out over the garden and fields beyond. The kitchen itself if fitted with a great range of units and built in appliances, with a handy utility room located off the main hall. The expansive sitting room is centred around the wood-burning stove and has been extended by the current owners, creating a large bay window with double doors leading to the garden. The separate dining room and study provide two extra reception rooms suitable for flexible use, with the option of the latter doubling up as a sixth bedroom. A ground floor bedroom with an adjoining and well-appointed bathroom provide further versatility. Upstairs, there are four well proportioned bedrooms, including an impressive vaulted principal suite with floor to ceiling windows and panoramic views over the surrounding countryside. A family bathroom serves the remaining bedrooms. Outside A double garage and generous driveway parking provide ample room for vehicles, while a range of outbuildings including a garden shed, workshop, woodstore and a greenhouse, offer extensive practical and hobby space. Set within approximately 0.67 acres, the property enjoys a delightful garden, backing onto open fields. There is a large westerly terrace, accessed off the kitchen/dining room, perfect for afternoon and evening sun - an ideal setting for outdoor dining and entertaining. The gardens are filled with a great range of shrubs and also feature a pond and delightful orchard, adding to the rural appeal. Environmentally conscious buyers will appreciate the EV charging point and solar panels, which help to reduce running costs. Situation Hill View is situated in the small rural hamlet of Littleworth, just north of the better know village of Milton Lilbourne. The area is well known for its unspoilt small villages and hamlets amongst the beautiful, gently rolling countryside of the Vale of Pewsey. There is immediate access to wonderful walking, riding and cycling as well as the Kennet and Avon canal nearby. Milton Lilbourne is within a five minute walk and offers a parish church and village hall. The larger village of Pewsey is just over two miles away and enjoys a broad ranges of amenities including supermarket, doctors and dental surgeries, chemist, cafes, shops and range of sports clubs. There is also a leisure centre with gym and swimming pool. Pewsey railway station has trains directly into London Paddington in about a hour. Easy access by car into Marlborough c.15 minutes. For schooling, the Easton Royal Academy (primary) under 2 miles away is affiliated with St Johns Academy, Marlborough (secondary). Both excellent options. For those interested in independant education, again excellent options with St Francis prep, Pewsey and Dauntseys and Marlborough College, all within easy reach. What3Words - ///huddling.enormous.overt Services and Material Information - Freehold - Mains water, mains drainage, oil fired central heating. - Council tax band: F - Energy efficiency rating: B - Broadband and mobile coverage. Please refer to Ofcom website for more details
Features at a glance
- Detached house
- 5 bedrooms
- 4 reception rooms
- Stunning views
- c0.67 acres in all
- Ample driveway parking
- Double garage
- 13 Solar panels
- West facing garden
- Glorious rural location
Location
Key property details
- Property Style
- Detached
- Accessibility
- Ask agent
- Parking
- Yes
- Garden
- Yes
- Carter Jonas reference
- MAR250436
