Breighton, Selby, YO8
Description
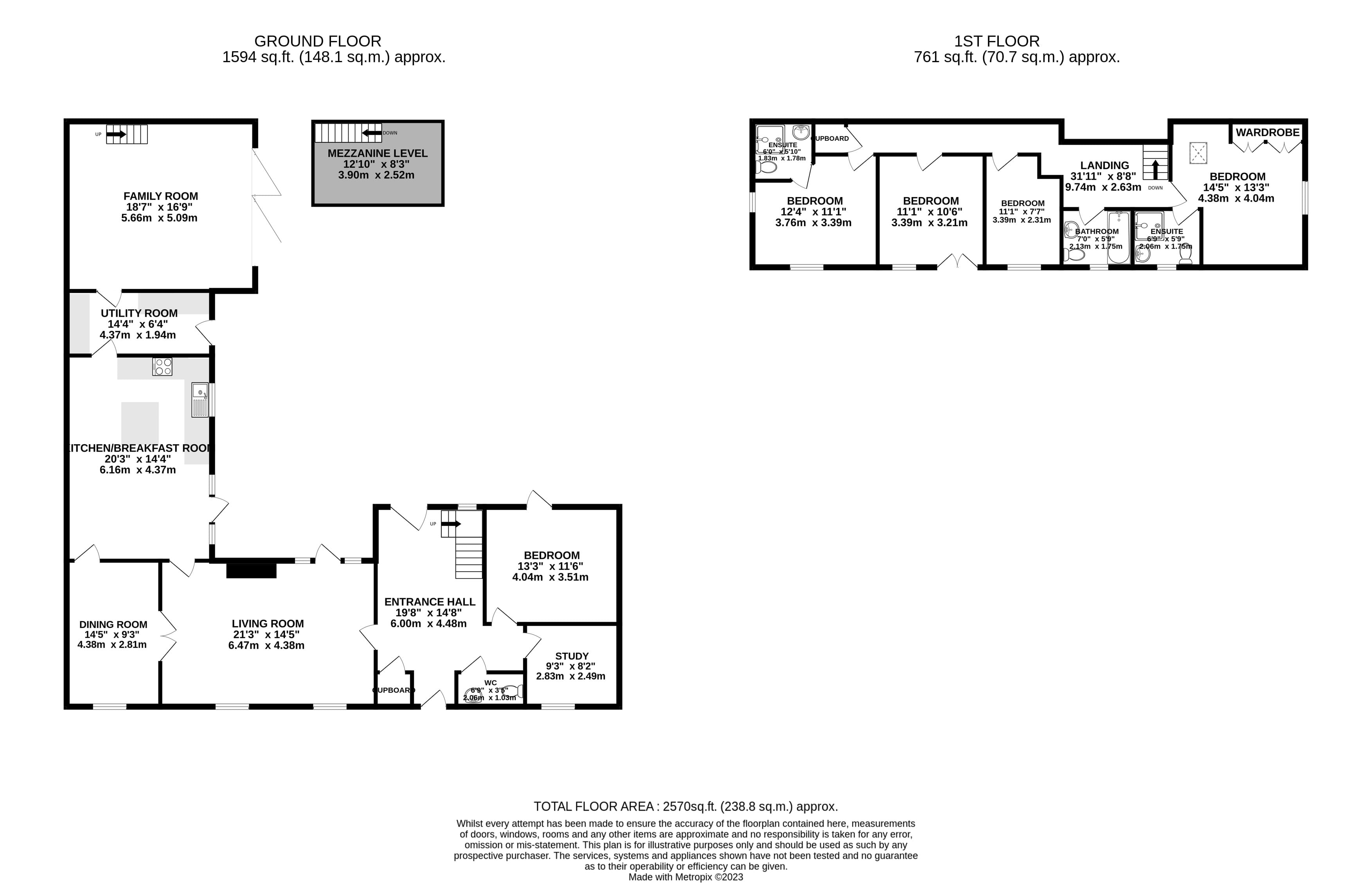
The Granary is a Victorian barn which has been converted into a dwelling in approximately 2003 and in recent years the property has undergone a significant programme of refurbishment including a complete redecoration and all house windows have been replaced and upgraded to A-rated flush-sash double-glazed units in anthracite grey. The property perfectly blends period and contemporary features creating an impressive family home which offers a selection of well-balanced reception rooms perfect for modern family life. The kitchen is particularly impressive by German brand Schuller and was installed approximately 12 months ago by York luxury kitchen designers Studio 35, comprising shaker-style wood-effect cabinet doors coated with a UV resistant lacquer, in-built NEFF appliances (dishwasher, oven and combination oven/microwave), BORA downdraft induction hob, Dekton (R) counter-tops and breakfast island, along with quality soft close doors, pull-out pantry and pan storage. The first floor offers 4 bedrooms in total with 2 benefitting from ensuites which are in addition to the family bathroom. On the ground floor there is an additional bedroom and study perfect for those who work from home. The garden has been recently landscaped by a very reputable long-standing business. This was done to a design by a qualified Garden Designer, including a Planting Plan with the addition of over 200 plants. The property benefits from a large patio, consisting of outdoor wood-effect porcelain tiles, with multiple seating areas ideal for outdoor entertainment. Off road parking is provided for 3 cars. Breighton is a peaceful rural village, conveniently situated approximately fifteen miles from York with excellent access to the M62, M18 and M1 motorway network. York mainline railway station has regular services to London Kings Cross, Leeds, York and Hull. The village of Bubwith is closest with a convenience store, post office, primary school and sports and leisure centre, as well as the renowned delicatessen, the Jug & Bottle. There are two golf clubs nearby, in particular; The Oaks Golf Club and luxury spa is about two and a half miles away. This property is connected to a mains electricity supply. - The water and drainage are supplied by Yorkshire Water. - Broadband Speed - please go to checker.ofcom.org.uk /en-gb/broadband-coverage - Mobile coverage - please go to checker.ofcom.org.uk
Location
Key property details
- Additional property type(s)
- Barn conversion
- Property Style
- Detached
- Special Features
- Character property
- Accessibility
- Ask agent
- Parking
- Yes
- Garden
- Yes
- Carter Jonas reference
- YOR220302
Description
The Granary is a Victorian barn which has been converted into a dwelling in approximately 2003 and in recent years the property has undergone a significant programme of refurbishment including a complete redecoration and all house windows have been replaced and upgraded to A-rated flush-sash double-glazed units in anthracite grey. The property perfectly blends period and contemporary features creating an impressive family home which offers a selection of well-balanced reception rooms perfect for modern family life. The kitchen is particularly impressive by German brand Schuller and was installed approximately 12 months ago by York luxury kitchen designers Studio 35, comprising shaker-style wood-effect cabinet doors coated with a UV resistant lacquer, in-built NEFF appliances (dishwasher, oven and combination oven/microwave), BORA downdraft induction hob, Dekton (R) counter-tops and breakfast island, along with quality soft close doors, pull-out pantry and pan storage. The first floor offers 4 bedrooms in total with 2 benefitting from ensuites which are in addition to the family bathroom. On the ground floor there is an additional bedroom and study perfect for those who work from home. The garden has been recently landscaped by a very reputable long-standing business. This was done to a design by a qualified Garden Designer, including a Planting Plan with the addition of over 200 plants. The property benefits from a large patio, consisting of outdoor wood-effect porcelain tiles, with multiple seating areas ideal for outdoor entertainment. Off road parking is provided for 3 cars. Breighton is a peaceful rural village, conveniently situated approximately fifteen miles from York with excellent access to the M62, M18 and M1 motorway network. York mainline railway station has regular services to London Kings Cross, Leeds, York and Hull. The village of Bubwith is closest with a convenience store, post office, primary school and sports and leisure centre, as well as the renowned delicatessen, the Jug & Bottle. There are two golf clubs nearby, in particular; The Oaks Golf Club and luxury spa is about two and a half miles away. This property is connected to a mains electricity supply. - The water and drainage are supplied by Yorkshire Water. - Broadband Speed - please go to checker.ofcom.org.uk /en-gb/broadband-coverage - Mobile coverage - please go to checker.ofcom.org.uk
Location
Key property details
- Additional property type(s)
- Barn conversion
- Property Style
- Detached
- Special Features
- Character property
- Accessibility
- Ask agent
- Parking
- Yes
- Garden
- Yes
- Carter Jonas reference
- YOR220302
