- Sold
Burntwood Lane, Wandsworth, SW17
Description
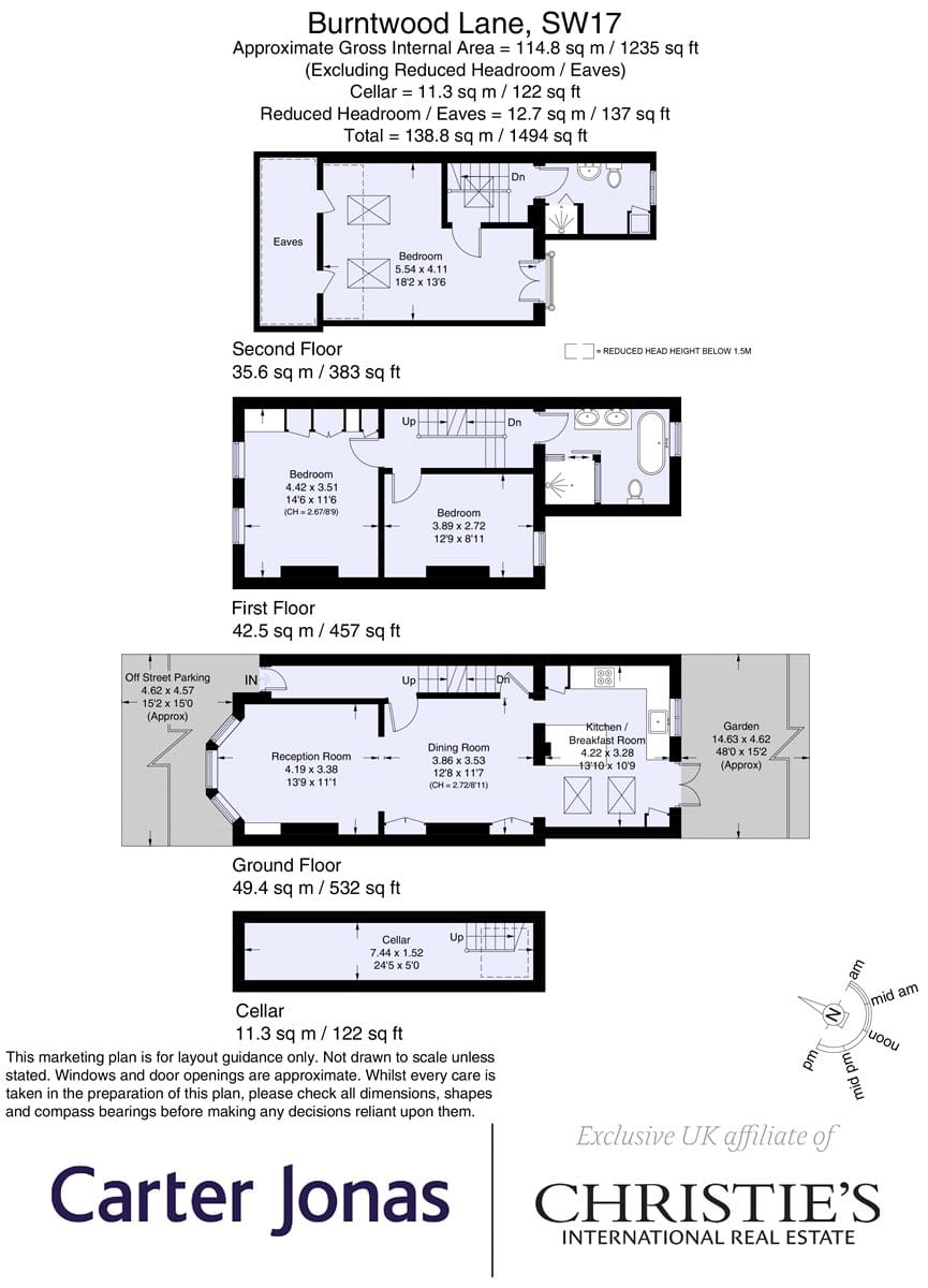
This joyful three-bedroom Victorian home, in Earlsfield, has been brilliantly overhauled by its owners to give c. 1,494 sq ft of stylish open plan living space with a 48ft southerly aspect garden. Off-street parking and great shops, schools and transport links nearby. The elegant sitting room, with bay window and wooden shutters, herringbone oak flooring, and fireplace, is painted a rich green. The space flows through to the dining area, with its chic, scalloped banquette for convivial dining. Bookshelves and built-in storage complete the dining area, which flows through to the beautifully bright kitchen, which has been extended with a pitched ceiling to maximise space and light. A large window and glazed doors frame the view of the terrace and south facing garden. Cool grey/green cabinets, pale tiles and white quartz worktops, provide plenty of counter space, and are paired with integrated appliances. An island provides an informal eating spot overlooking the garden. The laundry can be found in the cellar which also provides additional storage space. The south-east facing garden has a spacious decked terrace, with outdoor kitchen/barbeque area, ideal for summer entertaining, and low maintenance artificial grass. The property benefits from off-street parking. On the first floor, an elegant double bedroom benefits from generous proportions and an attractive Victorian fireplace and built-in wardrobes. The second double bedroom overlooks the garden. A stylish and spacious bathroom, with freestanding tub, double vanity unit and a separate shower can be found on the half landing. On the top floor, an elegant double bedroom in blush tones, benefits from views of the garden and a Juliet balcony, and an adjacent shower room. The house is located on Burntwood Lane, which runs between Garratt Lane in Earlsfield and Wandsworth Common’s Trinity Road, close to the popular Earlsfield schools. Admissions to Earlsfield Primary School, Beatrix Potter Primary Schools and Burntwood Academy, subject to catchment and admissions criteria. The house is conveniently placed for the transport facilities of Earlsfield Mainline Station and the shops, wine bars and restaurants of Garratt Lane. Wandsworth Common and Bellevue Road are also within walking distance, as are the green spaces of Garratt Park, Garratt Green, and the recently completed Springfield Park. Northern Line at Tooting Broadway.
Features at a glance
- Three bedrooms
- Two bathrooms
- Open plan kitchen/dining
- Reception room
- Southerly aspect garden
- Cellar
- Off-street parking
- Freehold
- Earlsfield location
Location
Key property details
- Property Style
- Terraced
- Accessibility
- Ask agent
- Parking
- Yes
- Garden
- Yes
- Carter Jonas reference
- WNS240120
Description
This joyful three-bedroom Victorian home, in Earlsfield, has been brilliantly overhauled by its owners to give c. 1,494 sq ft of stylish open plan living space with a 48ft southerly aspect garden. Off-street parking and great shops, schools and transport links nearby. The elegant sitting room, with bay window and wooden shutters, herringbone oak flooring, and fireplace, is painted a rich green. The space flows through to the dining area, with its chic, scalloped banquette for convivial dining. Bookshelves and built-in storage complete the dining area, which flows through to the beautifully bright kitchen, which has been extended with a pitched ceiling to maximise space and light. A large window and glazed doors frame the view of the terrace and south facing garden. Cool grey/green cabinets, pale tiles and white quartz worktops, provide plenty of counter space, and are paired with integrated appliances. An island provides an informal eating spot overlooking the garden. The laundry can be found in the cellar which also provides additional storage space. The south-east facing garden has a spacious decked terrace, with outdoor kitchen/barbeque area, ideal for summer entertaining, and low maintenance artificial grass. The property benefits from off-street parking. On the first floor, an elegant double bedroom benefits from generous proportions and an attractive Victorian fireplace and built-in wardrobes. The second double bedroom overlooks the garden. A stylish and spacious bathroom, with freestanding tub, double vanity unit and a separate shower can be found on the half landing. On the top floor, an elegant double bedroom in blush tones, benefits from views of the garden and a Juliet balcony, and an adjacent shower room. The house is located on Burntwood Lane, which runs between Garratt Lane in Earlsfield and Wandsworth Common’s Trinity Road, close to the popular Earlsfield schools. Admissions to Earlsfield Primary School, Beatrix Potter Primary Schools and Burntwood Academy, subject to catchment and admissions criteria. The house is conveniently placed for the transport facilities of Earlsfield Mainline Station and the shops, wine bars and restaurants of Garratt Lane. Wandsworth Common and Bellevue Road are also within walking distance, as are the green spaces of Garratt Park, Garratt Green, and the recently completed Springfield Park. Northern Line at Tooting Broadway.
Features at a glance
- Three bedrooms
- Two bathrooms
- Open plan kitchen/dining
- Reception room
- Southerly aspect garden
- Cellar
- Off-street parking
- Freehold
- Earlsfield location
Location
Key property details
- Property Style
- Terraced
- Accessibility
- Ask agent
- Parking
- Yes
- Garden
- Yes
- Carter Jonas reference
- WNS240120
