Fosbury, Wiltshire, SN8
Description
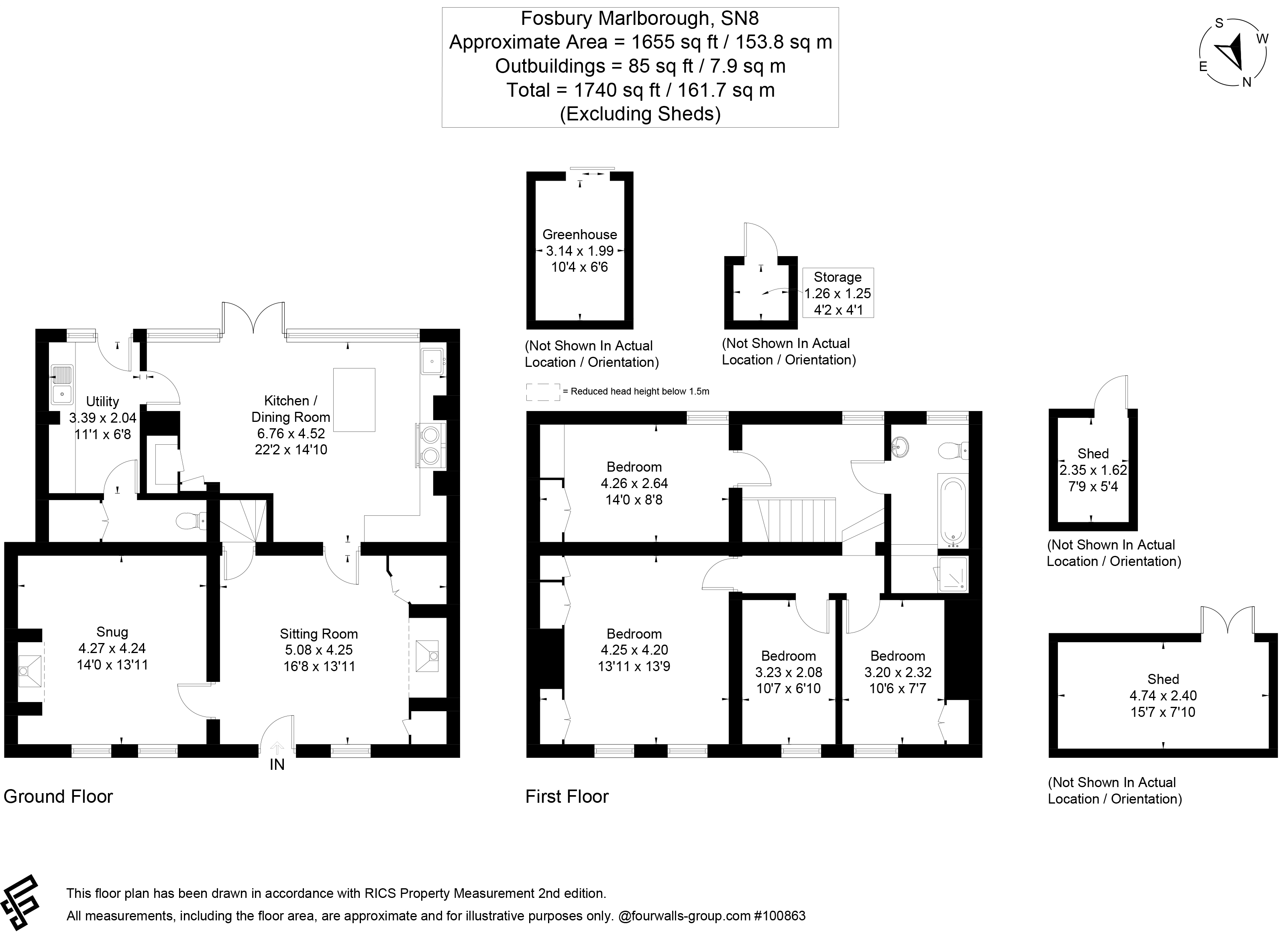
Description Located close to the popular Bourne Valley village of Vernham Dean, Clematis Cottage is a stunning four-bedroom cottage of brick and flint elevations under a tiled roof. On entering the property, you are welcomed into the large sitting room with an open Inglenook fireplace, hardwood flooring and exposed beams. Off the sitting room is a lovely snug/family room, centred around the wood-burning stove. Whilst offering great proportions, both of these charming rooms retain a cosy cottage feel. Steps take you down to the kitchen/dining room which has a central island together with a good range of fitted units and an electric AGA. Located at the rear and overlooking the private garden, this room is the heart of the house with a lovely, farmhouse feel to it, offering a great space in which to entertain. The ground floor accommodation is completed by the utility room and cloakroom. Upstairs there are four bedrooms, all of which enjoy rural views. The principal bedroom enjoys great proportions and boasts an abundance of built in wardrobes. The bedrooms are served by the well-appointed family bathroom, with bath and separate shower. Outside The cottage is located on the village lane with a picket fence to the front. A large, paved terrace is accessed off the kitchen and steps lead up to the rear garden, which is slightly raised and enjoys magnificent open views over neighbouring farmland. The garden, tiered on three levels and c0.25 acres in all, is laid predominantly to lawn, flanked on either side by mature hedging. There are number of mature trees and shrubs throughout the garden, with an abundance of spots from here you can sit and enjoy the peace and tranquillity of this stunning rural location. A gravelled area next to the greenhouse is interspersed with flower beds, providing the perfect place to grow plants and vegetables. There is off road driveway parking for numerous cars in the middle section of the garden, with a and a brick-built garden store, garden shed and covered wood store. Situation Clematis Cottage is situated in the small hamlet of Fosbury and close to the popular villages of Shalbourne and Vernham Dean. Surrounded by one of the most unspoilt parts of Wiltshire, Fosbury is set in an Area of Outstanding Natural Beauty. Although rural, the historic market towns of Hungerford and Marlborough are within easy reach and provide a wide range of shops, restaurants, and leisure facilities. There are primary schools in Great Bedwyn (5.8 miles) and Vernham Dean (1.5 miles) as well as many well-regarded state and independent schools including St John’s Marlborough, Farleigh, Marlborough College and Thorngrove. Fosbury has good transport links: trains to Paddington (about 50 mins from Hungerford, about 60 minutes from Great Bedwyn) or Waterloo (about 70 mins from Andover), with the M4 (Junction 14) and A303 nearby. Services and Material Information - Freehold - Mains electricity. Private water (supplied by the Fosbury Estate) and private drainage from a shared septic tank. Oil-fired heating and electric Aga. - Council tax band: D - Energy efficiency rating: B - Broadband and mobile coverage. Please refer to Ofcom website for more details
Features at a glance
- Freehold
- 1655 square feet
- Four bedrooms
- Two reception rooms
- Stunning Kitchen/Dining room with AGA
- Large garden
- Breath-taking Views
- Ample driveway parking
Location
Key property details
- Accessibility
- Ask agent
- Parking
- Yes
- Garden
- Yes
- Carter Jonas reference
- MAR240060
Description
Description Located close to the popular Bourne Valley village of Vernham Dean, Clematis Cottage is a stunning four-bedroom cottage of brick and flint elevations under a tiled roof. On entering the property, you are welcomed into the large sitting room with an open Inglenook fireplace, hardwood flooring and exposed beams. Off the sitting room is a lovely snug/family room, centred around the wood-burning stove. Whilst offering great proportions, both of these charming rooms retain a cosy cottage feel. Steps take you down to the kitchen/dining room which has a central island together with a good range of fitted units and an electric AGA. Located at the rear and overlooking the private garden, this room is the heart of the house with a lovely, farmhouse feel to it, offering a great space in which to entertain. The ground floor accommodation is completed by the utility room and cloakroom. Upstairs there are four bedrooms, all of which enjoy rural views. The principal bedroom enjoys great proportions and boasts an abundance of built in wardrobes. The bedrooms are served by the well-appointed family bathroom, with bath and separate shower. Outside The cottage is located on the village lane with a picket fence to the front. A large, paved terrace is accessed off the kitchen and steps lead up to the rear garden, which is slightly raised and enjoys magnificent open views over neighbouring farmland. The garden, tiered on three levels and c0.25 acres in all, is laid predominantly to lawn, flanked on either side by mature hedging. There are number of mature trees and shrubs throughout the garden, with an abundance of spots from here you can sit and enjoy the peace and tranquillity of this stunning rural location. A gravelled area next to the greenhouse is interspersed with flower beds, providing the perfect place to grow plants and vegetables. There is off road driveway parking for numerous cars in the middle section of the garden, with a and a brick-built garden store, garden shed and covered wood store. Situation Clematis Cottage is situated in the small hamlet of Fosbury and close to the popular villages of Shalbourne and Vernham Dean. Surrounded by one of the most unspoilt parts of Wiltshire, Fosbury is set in an Area of Outstanding Natural Beauty. Although rural, the historic market towns of Hungerford and Marlborough are within easy reach and provide a wide range of shops, restaurants, and leisure facilities. There are primary schools in Great Bedwyn (5.8 miles) and Vernham Dean (1.5 miles) as well as many well-regarded state and independent schools including St John’s Marlborough, Farleigh, Marlborough College and Thorngrove. Fosbury has good transport links: trains to Paddington (about 50 mins from Hungerford, about 60 minutes from Great Bedwyn) or Waterloo (about 70 mins from Andover), with the M4 (Junction 14) and A303 nearby. Services and Material Information - Freehold - Mains electricity. Private water (supplied by the Fosbury Estate) and private drainage from a shared septic tank. Oil-fired heating and electric Aga. - Council tax band: D - Energy efficiency rating: B - Broadband and mobile coverage. Please refer to Ofcom website for more details
Features at a glance
- Freehold
- 1655 square feet
- Four bedrooms
- Two reception rooms
- Stunning Kitchen/Dining room with AGA
- Large garden
- Breath-taking Views
- Ample driveway parking
Location
Key property details
- Accessibility
- Ask agent
- Parking
- Yes
- Garden
- Yes
- Carter Jonas reference
- MAR240060
