St. Cross Road, Winchester, SO23
Description
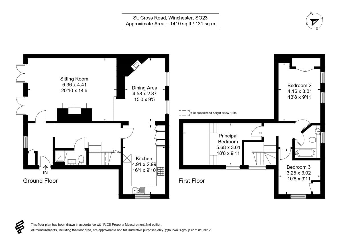
The ground floor accommodation comprises a welcoming entrance hall that leads into a generously proportioned sitting room, featuring an impressive vaulted ceiling and large patio doors opening onto the garden. The wellappointed kitchen offers an extensive range of eyelevel and base units, together with a builtin double oven, electric hob, dishwasher, fridge freezer, and washing machine. It flows seamlessly into the dining room, where a charming log burner provides additional warmth and character. A contemporary downstairs shower room completes the ground floor. Upstairs, the property offers three double bedrooms, two of which benefit from builtin wardrobes. The modern family bathroom is fitted with a sleek suite and includes a shower over the bath. Outside The property enjoys off street parking for two cars to the front. To the side, an enclosed walled courtyard garden provides a private retreat, featuring a generous terrace area. Location The property is perfectly placed in the popular St Cross area for Winchester’s many amenities, the railway station is approximately 0.8 miles away and the High Street even closer. Winchester station offers regular train services to London Waterloo in around an hour. Winchester provides a range of facilities including theatres, a Library, Discovery Centre, Cinema and the well-known Farmers’ Market, all of which are highly accessible from the house. There are also excellent road links to London via the M3, the south coast via the M27, and north to Newbury and Oxford via the A34. Southampton Airport is just 15 minutes away by road or rail. Renowned local private and state schools are Winchester College, Pilgrims, Princes Mead, St Swithuns, Kings’ and Peter Symonds College. Additional Information Tenure: Freehold Services: Mains electricity, water, gas heating and drainage. Local Authority: Winchester City Council Council Tax: Band E Broadband: Fibre to the Cabinet (FTTC). For internet and mobile services check Ofcom’s website. Viewings: Strictly by appointment through the agent, Carter Jonas, 01962 842742
Features at a glance
- Three bedrooms
- Sitting room
- Dining room
- Kitchen
- Off street parking
- Courtyard garden
- EPC rating D
Location
Key property details
- Property Style
- Detached
- Accessibility
- Ask agent
- Parking
- Yes
- Garden
- No
- Carter Jonas reference
- WIN260008
Description
The ground floor accommodation comprises a welcoming entrance hall that leads into a generously proportioned sitting room, featuring an impressive vaulted ceiling and large patio doors opening onto the garden. The wellappointed kitchen offers an extensive range of eyelevel and base units, together with a builtin double oven, electric hob, dishwasher, fridge freezer, and washing machine. It flows seamlessly into the dining room, where a charming log burner provides additional warmth and character. A contemporary downstairs shower room completes the ground floor. Upstairs, the property offers three double bedrooms, two of which benefit from builtin wardrobes. The modern family bathroom is fitted with a sleek suite and includes a shower over the bath. Outside The property enjoys off street parking for two cars to the front. To the side, an enclosed walled courtyard garden provides a private retreat, featuring a generous terrace area. Location The property is perfectly placed in the popular St Cross area for Winchester’s many amenities, the railway station is approximately 0.8 miles away and the High Street even closer. Winchester station offers regular train services to London Waterloo in around an hour. Winchester provides a range of facilities including theatres, a Library, Discovery Centre, Cinema and the well-known Farmers’ Market, all of which are highly accessible from the house. There are also excellent road links to London via the M3, the south coast via the M27, and north to Newbury and Oxford via the A34. Southampton Airport is just 15 minutes away by road or rail. Renowned local private and state schools are Winchester College, Pilgrims, Princes Mead, St Swithuns, Kings’ and Peter Symonds College. Additional Information Tenure: Freehold Services: Mains electricity, water, gas heating and drainage. Local Authority: Winchester City Council Council Tax: Band E Broadband: Fibre to the Cabinet (FTTC). For internet and mobile services check Ofcom’s website. Viewings: Strictly by appointment through the agent, Carter Jonas, 01962 842742
Features at a glance
- Three bedrooms
- Sitting room
- Dining room
- Kitchen
- Off street parking
- Courtyard garden
- EPC rating D
Location
Key property details
- Property Style
- Detached
- Accessibility
- Ask agent
- Parking
- Yes
- Garden
- No
- Carter Jonas reference
- WIN260008
