Low Gardham, Beverley HU17

Low Gardham, Beverley HU17

4 Bedroom | 2 Baths

£1,650 per month £381 per week
Cherry Burton Main Street 2.2 miles
Leconfield Main Street 3.8 miles
North Newbald Church 4.5 miles

Low Gardham Farmhouse is a former farmhouse recently refurbished to a high modern standard. The property is located on the edge of the hamlet of Low Gardham which is in close proximity to Beverley and Hull.

An attractive, recently refurbished detached property with rural views of open countryside located on the edge of the hamlet of Low Gardham in the heart of the Yorkshire Wolds, close to the popular villages of Etton and Cherry Burton. The property has good road links to both Beverley and Hull.

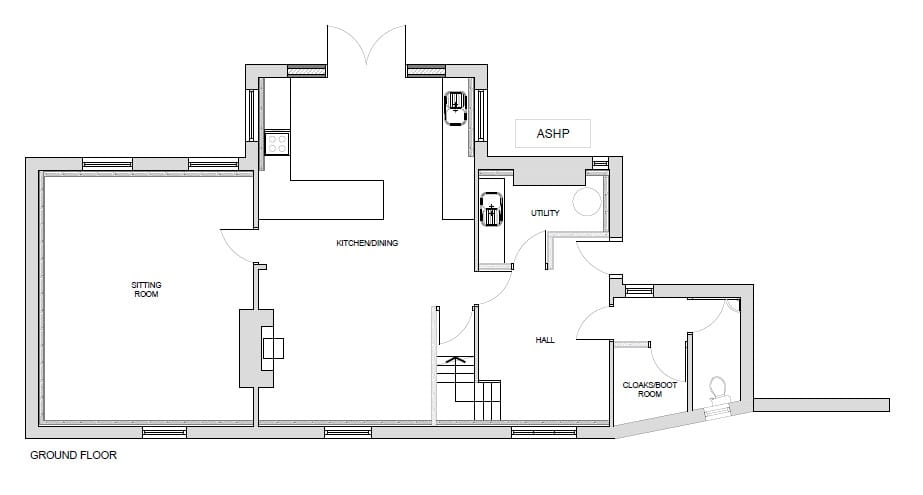
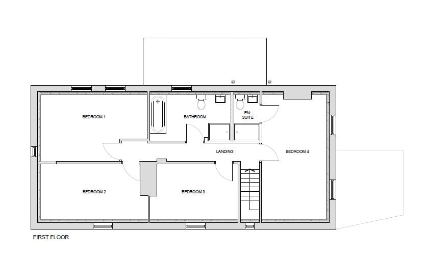
The ground floor of the property comprises a kitchen dining room, large living room, hallway / boot room, utility room and downstairs WC. The first floor of the property comprises four double bedrooms, a family bathroom and en-suite to the master bedroom.

Externally there is a large garden, off street parking and garage.

Air Source Heat Pump central heating
Unfurnished
Council tax band E
EPC rating C
Deposit - £2,062.50 (5 weeks rent)
Rent - £1,650 per calendar month

The next steps...

Before making an offer on a property you will want to consider your financial situation, your income and outgoings.

Will you finance the purchase of your next property from the sale of an existing property which can put you in a chain, arrange a mortgage through your bank or buy the property outright.

To help you finance your next property purchase, we have a long established relationship with an independent mortgage broker who can discuss your situation with you.

Remember that having a 'mortgage decision in principle' can make you a more attractive buyer when you make an offer on a property. Contact our mortgage advisers for free, no obligation and impartial advice.

Some advantages of a broker are:

  • They do all the legwork for you, working on your behalf with the lender
  • They compare wholesale mortgage rates from a large number of banks and lenders all at once
  • Their wholesale interest rates can be lower than retail (bank branch) interest rates
  • They offer more loan options because they work with numerous banks and lenders
  • They can finance tricky deals because of their knowledge and various lending partners
  • They are typically easier to get in contact with, and are less bureaucratic.

However advantages of working with your bank are:

  • You may be able to build off an existing relationship (and gain discounts if you have a checking or savings account)
  • You may already know the banker who will handle your mortgage
  • Banks may be more accountable than a smaller shop
  • They may offer lower interest rates in some cases
  • Their ability to add mortgage to existing banking profile and make automatic payments from linked account.

When you see a property you are interested in on our website, call us 24/7 to arrange a viewing. Or if you prefer, get in touch via our website and we will call you back to find a time to view the property that suits you.

Once you’ve found a property you want to buy, it’s time to make an offer. A bit of negotiation is to be expected, however don't offer so little that you end up in a lengthy negotiation process, as you might lose the property altogether if someone else makes a higher bid.

If other offers have been made on a property we aren't legally able to tell you what they are, but we may indicate if they were close to the asking price.

If you have a property to sell, why not see how we can help you.

Or if you’re considering letting your property, we can take the stress out of managing your rental, and our award winning lettings team offer a service that can be tailored to your needs.

Combined with nearly 170 years of experience and one of the highest customer satisfaction scores in the industry, Carter Jonas is the perfect property partner.

Why not book a free, no obligation valuation of your property and find out how Carter Jonas can help you make your next move.

Key property details
Property attributes
Detached
Parking available
Off Street Parking Garage
Additional attributes
Garden
Locality
Rural Village
Energy efficiency rating
C
Letting fees
Download Letting Fees
Carter Jonas reference
YKR240001
Thinking of selling?

Find out what your property is worth