- Sold
The Ridge, Cold Ash, RG18
Description
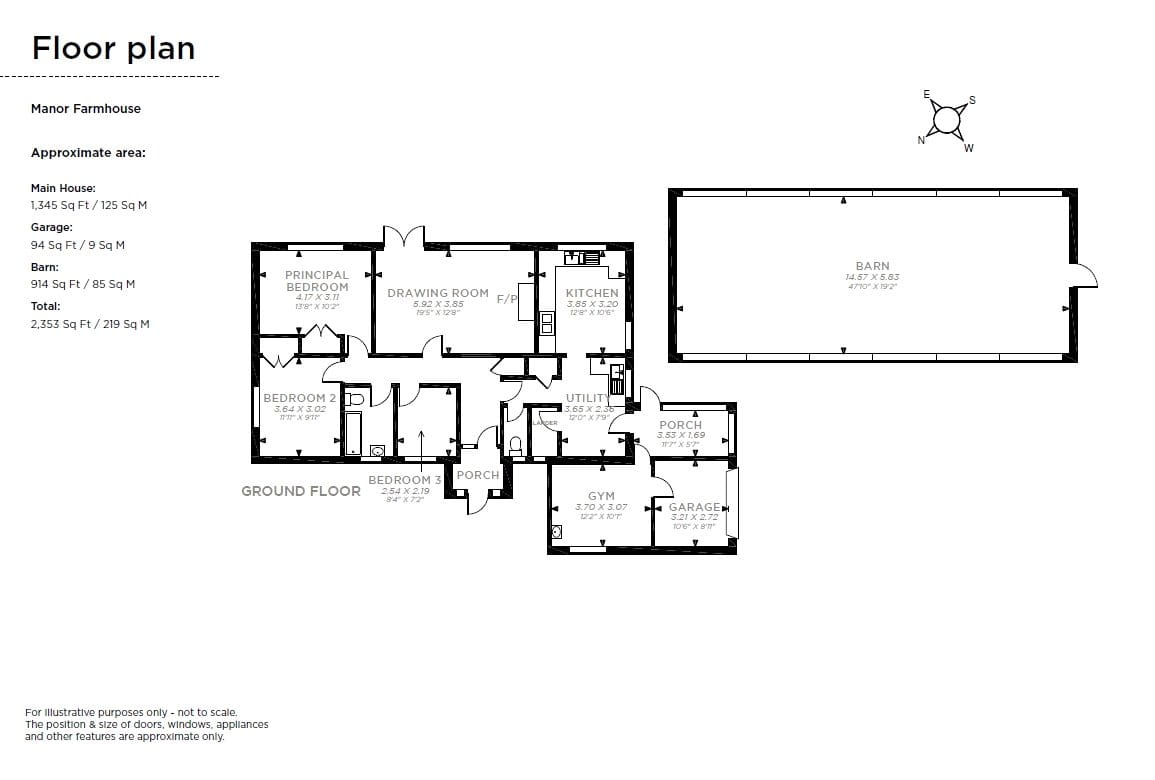
Ring fenced residential farm in an elevated position St Gabriels Farm is an exceptionally well-located, property in a very sought-after part of West Berkshire. Comprising a well-appointed bungalow in an elevated position it has an extensive farmyard and buildings adjacent, off lying brick built former dairy, woodland and pasture. In all extending to about 41.80 acres (16.91 ha) | For sale by private treaty as a whole Location St Gabriels Farm is located between Cold Ash Hill and The Ridge to the south of Cold Ash village itself. Located due north of Thatcham (1 mile) and north east of Newbury (3.5 miles) the property is also due west of Reading (15 miles) Rurally located the A4, A339, A34 and M4 are close by providing access and wider road network. Mainline Train services area available from Thatcham (London Paddington 42 min). Amenties Thatcham and Newbury both contain a range of amenities including but not limited to, mainline train stations, pubs, restaurants, schools and shops. The Bungalow Extending to just over 1,400 square sq.ft and comprising porch/ conservatory with garage (part store and part gym) there is a utility room, kitchen, wc, second hallway, living room with log burner, 3 bedrooms and a family bathroom. Externally there is an ample garden leading to the adjacent woodland with patio area and far reaching views. Buildings Sited to the north west of the holding is the farm yard comprising a collection of useful buildings which provide scope for redevelopment to a number of purposes subject to the necessary consents. The buildings are marked on the adjacent plan and include a wooden framed former cubicle building of about 10,000 sq.ft (A), atcost building with pole barn lean to of about 5,000 sq.ft (B) and a brick and block former dairy and parlour building with storage and workshops to northern boundary of some 5,000 sq.ft (C). South east of the bungalow adjacent to the woods is a former poultry building of some 750sq. ft (D). On the south westerly boundary of the property is an attractive brick built former dairy of about 2,000sq.ft. Land Boasting an enviable outlook the land is generally sited to the south and west of the core holding and provides for 29.31 acres (11.86 ha ) of pasture in a number of hedged or fenced enclosures. With access available from a hard track which is the main access the land slopes to the south west with a level area at the south. Classified as grade 3 the land comprises a mix of sandy and loamy soils with some base rich loamy and clayey soils all well suited to their current uses. At the top off the hill and adjacent to the bungalow is a parcel of mature, mixed woodland extending to 9.26 acres (3.75 ha). Primed for amenity enjoyment it hosts a variety of flora and fauna including spectacular bluebells. Method of Sale The freehold title is offered for sale as a whole by private treaty. Tenure & Possession The property will be sold with the benefit of vacant possession. Planning The property has previously had planning explored on the yard without success albeit in the agents opinion there remains latent potential for redevelopment of parts. Overage That part of the property hatched grey will be sold subject to a 30 year overage reserving 30% of any uplift in value for redevelopment of the property to more than one residential dwelling including the existing bungalow. Designations The property lies outside of the North Wessex Downs Area of Outstanding Natural Beauty and the Greenbelt. Services The property has mains water and electricity supplies. Heating is via an oil fired Rayburn and drainage is to a private system. For broadband and mobile connectivity please make your own enquiries and refer to https://checker.ofcom.org.uk/ Wayleaves, Easements & Rights of Way The property is sold subject to the benefit of all rights including rights of way, whether public or private, light, support, drainage, water and electricity supplies and other rights and obligations, easements and proposed wayleaves from masts, pylons, stays, cables, drains, water, gas and other pipes whether specifically referred to or not. Access to the farm from The Ridge is via a right of way. There are no public rights of way across the land. An easement will be reserved for a water supply pipe on the southerly boundary that serves other property. Health & Safety All viewings are carried out at the sole risk of the viewer and neither the selling agent nor the vendor takes responsibility. Sporting Timber & Mineral Rights The mineral, sporting and timber rights are included in the sale of the freehold in so far as that are owned. EPC ratings EPC rating is E Local Authority West Berkshire Council www.westberks.gov.uk Viewings Viewings are strictly by appointment only and to be accompanied by the selling agent. Directions From the Robin Hood Roundabout in Newbury head east on the A4 towards Thatcham for about 1.5 miles. At the junction with Turnpike Road head north on Tull Way around the top of Thatcham. Continue on to Bowling Green Road and Heath Lane for about 1 mile or so before turning left onto Cold Ash Hill. Continue for a further 0.5 miles where the main entrance to the property is on your right hand side with recessed double gates.
Location
Key property details
- Additional property type(s)
- Bungalow
- Special Features
- Outbuildings
- Accessibility
- Ask agent
- Parking
- Ask agent
- Garden
- Yes
- Carter Jonas reference
- NWR240010
Description
Ring fenced residential farm in an elevated position St Gabriels Farm is an exceptionally well-located, property in a very sought-after part of West Berkshire. Comprising a well-appointed bungalow in an elevated position it has an extensive farmyard and buildings adjacent, off lying brick built former dairy, woodland and pasture. In all extending to about 41.80 acres (16.91 ha) | For sale by private treaty as a whole Location St Gabriels Farm is located between Cold Ash Hill and The Ridge to the south of Cold Ash village itself. Located due north of Thatcham (1 mile) and north east of Newbury (3.5 miles) the property is also due west of Reading (15 miles) Rurally located the A4, A339, A34 and M4 are close by providing access and wider road network. Mainline Train services area available from Thatcham (London Paddington 42 min). Amenties Thatcham and Newbury both contain a range of amenities including but not limited to, mainline train stations, pubs, restaurants, schools and shops. The Bungalow Extending to just over 1,400 square sq.ft and comprising porch/ conservatory with garage (part store and part gym) there is a utility room, kitchen, wc, second hallway, living room with log burner, 3 bedrooms and a family bathroom. Externally there is an ample garden leading to the adjacent woodland with patio area and far reaching views. Buildings Sited to the north west of the holding is the farm yard comprising a collection of useful buildings which provide scope for redevelopment to a number of purposes subject to the necessary consents. The buildings are marked on the adjacent plan and include a wooden framed former cubicle building of about 10,000 sq.ft (A), atcost building with pole barn lean to of about 5,000 sq.ft (B) and a brick and block former dairy and parlour building with storage and workshops to northern boundary of some 5,000 sq.ft (C). South east of the bungalow adjacent to the woods is a former poultry building of some 750sq. ft (D). On the south westerly boundary of the property is an attractive brick built former dairy of about 2,000sq.ft. Land Boasting an enviable outlook the land is generally sited to the south and west of the core holding and provides for 29.31 acres (11.86 ha ) of pasture in a number of hedged or fenced enclosures. With access available from a hard track which is the main access the land slopes to the south west with a level area at the south. Classified as grade 3 the land comprises a mix of sandy and loamy soils with some base rich loamy and clayey soils all well suited to their current uses. At the top off the hill and adjacent to the bungalow is a parcel of mature, mixed woodland extending to 9.26 acres (3.75 ha). Primed for amenity enjoyment it hosts a variety of flora and fauna including spectacular bluebells. Method of Sale The freehold title is offered for sale as a whole by private treaty. Tenure & Possession The property will be sold with the benefit of vacant possession. Planning The property has previously had planning explored on the yard without success albeit in the agents opinion there remains latent potential for redevelopment of parts. Overage That part of the property hatched grey will be sold subject to a 30 year overage reserving 30% of any uplift in value for redevelopment of the property to more than one residential dwelling including the existing bungalow. Designations The property lies outside of the North Wessex Downs Area of Outstanding Natural Beauty and the Greenbelt. Services The property has mains water and electricity supplies. Heating is via an oil fired Rayburn and drainage is to a private system. For broadband and mobile connectivity please make your own enquiries and refer to https://checker.ofcom.org.uk/ Wayleaves, Easements & Rights of Way The property is sold subject to the benefit of all rights including rights of way, whether public or private, light, support, drainage, water and electricity supplies and other rights and obligations, easements and proposed wayleaves from masts, pylons, stays, cables, drains, water, gas and other pipes whether specifically referred to or not. Access to the farm from The Ridge is via a right of way. There are no public rights of way across the land. An easement will be reserved for a water supply pipe on the southerly boundary that serves other property. Health & Safety All viewings are carried out at the sole risk of the viewer and neither the selling agent nor the vendor takes responsibility. Sporting Timber & Mineral Rights The mineral, sporting and timber rights are included in the sale of the freehold in so far as that are owned. EPC ratings EPC rating is E Local Authority West Berkshire Council www.westberks.gov.uk Viewings Viewings are strictly by appointment only and to be accompanied by the selling agent. Directions From the Robin Hood Roundabout in Newbury head east on the A4 towards Thatcham for about 1.5 miles. At the junction with Turnpike Road head north on Tull Way around the top of Thatcham. Continue on to Bowling Green Road and Heath Lane for about 1 mile or so before turning left onto Cold Ash Hill. Continue for a further 0.5 miles where the main entrance to the property is on your right hand side with recessed double gates.
Location
Key property details
- Additional property type(s)
- Bungalow
- Special Features
- Outbuildings
- Accessibility
- Ask agent
- Parking
- Ask agent
- Garden
- Yes
- Carter Jonas reference
- NWR240010
