Lot 1 - Land At Beeford and Foston, Driffield YO25

Lot 1 - Land At Beeford and Foston, Driffield YO25

Freehold

Asking price £600,000
Nafferton 4 miles
Beeford Main Street 1 miles
Brigham Crossroads 1.9 miles

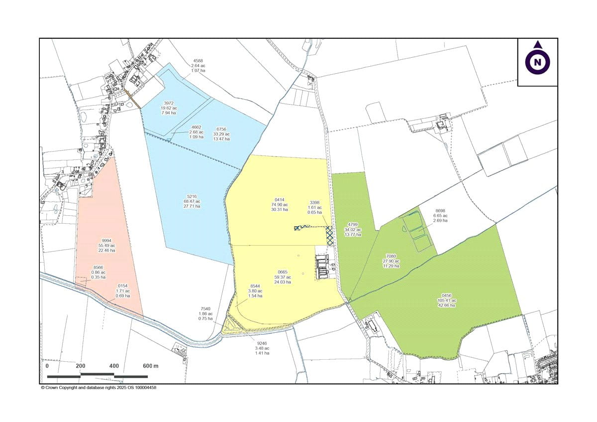
Productive block of Grade 2 agricultural land extending to approximately 55.16 acres (22.73 hectares).

EXPRESSIONS OF INTEREST AND INITIAL OFFERS BY 12 NOON ON FRIDAY 18TH JULY

EXPRESSIONS OF INTEREST AND INITIAL OFFERS BY 12 NOON ON FRIDAY 18TH JULY

Location
The land is situated to the north-west of the village of Beeford and to the east of the village of Foston-on-the-Wolds. The market town of Driffield is situated approximately 9 miles to the west with the popular coastal resort of Bridlington situated approximately 9.5 miles to the north-east. The A165 public highway which runs through Beeford connects Bridlington with the city of Hull.

Land
Productive block of Grade 2 agricultural land extending in all to approximately 55.16 acres.

The land is currently farmed within a combinable cropping rotation to include vining peas, however, the land has also historically grown root crops.

The land is classed as being Grade 2 under the former MAFF Land Classification Series.

The underlying soil type is classed as being part of the Holderness soil series which is described as a slowly permeable fine loamy soil being well suited to cereals.

Lots 1 is accessed directly from the public highway serving the village of Foston-on-the-Wolds.

The land benefits from a well-maintained drainage scheme which outfalls to Old Howe Drain. Drainage rates are payable to Beverley and North Holderness IDB.

From Old Howe Drain the land rises from approximately 5 metres above sea level to 15 metres above sea level on the northern boundary.

Method of Sale
The property is offered for sale by private treaty being one of 4 lots. The vendors reserve the right to conclude the sale by any other means at their discretion.

If you have downloaded these particulars, please register your interest with the selling agent.

Tenure & Possession
The freehold of the Property is offered for sale.

The vendor currently operates a contract farming agreement with a local farmer and vacant possession will be provided upon completion of the sale.

Basic Payment Scheme
The land has been registered on the Rural Land Register and all de-linked payments will be retained by the Vendor.

Environmental Schemes
There are no environmental schemes pertaining to the land.

Designations
The land is situated within a surface water Nitrate Vulnerable Zone (NVZ).

Holdover
The Vendor reserves the right of holdover for the purpose of harvesting crops and straw clearance until 30th September 2025.

Ingoing
In addition to the purchase price, the Purchaser will be required to pay for any growing crops, including cultivations, seeds, fertilisers, sprays, lime, new leys and acts of husbandry at cost or market value (whichever is higher) where applicable.

Drainage
The land is all drained with drainage rates payable to Beverley and North Holderness Internal Drainage Board (IDB).

Wayleaves, Easements & Rights of Way
The land is sold subject to and with the benefits of all rights of way, water drainage, water courses and other easements and rights of adjoining owners (if any) affecting the same and all existing and proposed wayleaves and other matters registered by any competent authority subject to statute.

Electrical apparatus transects the land and is subject to the requisite wayleave agreements.

Health & Safety
Parties are reminded to be as vigilant as possible when making an inspection and be aware of potential hazards including open ditches and drains. Parties viewing the property do so, entirely at their own risk.

VAT
Any prices quoted are exclusive of VAT. In the event that the sale of the property or any part of it or any right attached to it becomes a chargeable supply for the purposes of VAT, such tax will be payable in addition to the purchase price.

Sporting Timber & Mineral Rights
The sporting and timber rights are included in the sale in so far as they are owned.

Mineral Rights
The mineral rights are included in the sale in so far as they are owned.

Local Authority
East Riding of Yorkshire
www.eastriding.gov.uk

Viewings
Parties are permitted to view the land on foot and during reasonable daylight hours.

Directions
From Driffield, travel south-east on the B1249.
For Lots 1 and 2, turn left onto Cruckley Lane signposted Foston and proceed into the village. Access to Lot 1 is on the right hand side next to Foston Nurseries. Access to Lot 2 is on the right hand side over a loose gravel driveway next to St Andrews Cemetary.

What3Words
Lot 1 – ///octagon.glee.closer

The next steps...

Before making an offer on a property you will want to consider your financial situation, your income and outgoings.

Will you finance the purchase of your next property from the sale of an existing property which can put you in a chain, arrange a mortgage through your bank or buy the property outright.

To help you finance your next property purchase, we have a long established relationship with an independent mortgage broker who can discuss your situation with you.

Remember that having a 'mortgage decision in principle' can make you a more attractive buyer when you make an offer on a property. Contact our mortgage advisers for free, no obligation and impartial advice.

Some advantages of a broker are:

  • They do all the legwork for you, working on your behalf with the lender
  • They compare wholesale mortgage rates from a large number of banks and lenders all at once
  • Their wholesale interest rates can be lower than retail (bank branch) interest rates
  • They offer more loan options because they work with numerous banks and lenders
  • They can finance tricky deals because of their knowledge and various lending partners
  • They are typically easier to get in contact with, and are less bureaucratic.

However advantages of working with your bank are:

  • You may be able to build off an existing relationship (and gain discounts if you have a checking or savings account)
  • You may already know the banker who will handle your mortgage
  • Banks may be more accountable than a smaller shop
  • They may offer lower interest rates in some cases
  • Their ability to add mortgage to existing banking profile and make automatic payments from linked account.

When you see a property you are interested in on our website, call us 24/7 to arrange a viewing. Or if you prefer, get in touch via our website and we will call you back to find a time to view the property that suits you.

Once you’ve found a property you want to buy, it’s time to make an offer. A bit of negotiation is to be expected, however don't offer so little that you end up in a lengthy negotiation process, as you might lose the property altogether if someone else makes a higher bid.

If other offers have been made on a property we aren't legally able to tell you what they are, but we may indicate if they were close to the asking price.

If you have a property to sell, why not see how we can help you.

Or if you’re considering letting your property, we can take the stress out of managing your rental, and our award winning lettings team offer a service that can be tailored to your needs.

Combined with nearly 170 years of experience and one of the highest customer satisfaction scores in the industry, Carter Jonas is the perfect property partner.

Why not book a free, no obligation valuation of your property and find out how Carter Jonas can help you make your next move.

Key property details
Locality
Rural
Property type
Land
Tenure
Freehold
Carter Jonas reference
HGT250015
Thinking of selling?

Find out what your property is worth