York Road, Kexby, YO41
Description
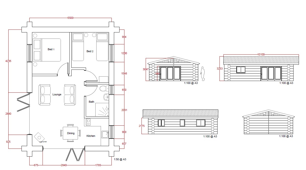
LOCATION Ten Acres is situated between the villages of Kexby and Wilberfoss and fronting the A1079 public highway. The city of York is situated approximately 6 miles to the west. Access to the A64 is within 4 miles which in turn provides access to the A19 and A1(M) and the service centres of the north-east beyond. Access to the East Coast Main Line is available at York providing access to London Kings Cross in under 2 hours. LAND The property comprises a ring-fenced parcel of amenity grassland with frontage to the River Derwent and extending in all to approximately 9.42 acres. The property benefits from planning consent (ref: 17/01247/PLF) for the siting of a timber holiday cabin. The planning consent is acknowledged by the local planning authority to have been implemented by virtue of the installation of the services with a variation having been granted (ref:21/02942/VAR) which relates to the design. The approved plans provide for a traditional single storey log cabin providing open plan kitchen, dining and living area with bi-fold doors together with two bedrooms and a separate bathroom. The land benefits from being fully serviced with connections to mains water and electricity. The land is accessed directly from the A1079 and situated approximately 10 metres above sea level. METHOD OF SALE The property is offered for sale by private treaty as a whole. The vendors reserve the right to conclude the sale by any other means at their discretion. If you have downloaded these particulars, please register your interest with the selling agent. TENURE AND POSSESSION The freehold of the Property is offered for sale with the benefit of vacant possession. PLANNING 21/02942/VAR – Variation of condition 8 (colour of building) and condition 9 (approved plans) of planning permission 17/01247/PLF - Siting of timber holiday cabin. 20/01792/PLF – Erection of site utility hut (for water and electric meters) associated with timber holiday cabin and construction of a soil bund (part retrospective). 17/01247/PLF Siting of timber holiday cabin. ADDITIONAL INFORMATION Additional information including copies of the planning decision notices and approved plans are available from the selling agent. SERVICES The land benefits from mains connections to electricity and water. WAYLEAVES, EASEMENTS & RIGHTS OF WAY The land is sold subject to and with the benefits of all rights of way, water drainage, water courses and other easements and rights of adjoining owners (if any) affecting the same and all existing and proposed wayleaves and other matters registered by any competent authority subject to statute. HEALTH & SAFETY Parties are reminded to be as vigilant as possible when making an inspection and be aware of potential hazards including open ditches and drains. Parties viewing the property do so, entirely at their own risk. VAT Any prices quoted are exclusive of VAT. In the event that the sale of the property or any part of it or any right attached to it becomes a chargeable supply for the purposes of VAT, such tax will be payable in addition to the purchase price. SPORTING, TIMBER & MINERAL RIGHTS The sporting, timber and mineral rights are included in so far as they are owned. LOCAL AUTHORITIES East Riding of Yorkshire Council www.eastriding.gov.uk VIEWINGS Parties are permitted to view the land on foot and during reasonable daylight hours. DIRECTIONS From York Ring Road travel east on the A1079 signposted Hull, Pocklington and Dunnington. Travel through the village of Kexby and over the River Derwent with access to the land being situated immediately on the left hand side as marked with a Carter Jonas For Sale board. WHAT3WORDS ///officers.bulk.squabbles
Location
Key property details
- Special Features
- Holiday complex
- Accessibility
- Ask agent
- Parking
- Ask agent
- Garden
- No
- Carter Jonas reference
- HGT250024
Description
LOCATION Ten Acres is situated between the villages of Kexby and Wilberfoss and fronting the A1079 public highway. The city of York is situated approximately 6 miles to the west. Access to the A64 is within 4 miles which in turn provides access to the A19 and A1(M) and the service centres of the north-east beyond. Access to the East Coast Main Line is available at York providing access to London Kings Cross in under 2 hours. LAND The property comprises a ring-fenced parcel of amenity grassland with frontage to the River Derwent and extending in all to approximately 9.42 acres. The property benefits from planning consent (ref: 17/01247/PLF) for the siting of a timber holiday cabin. The planning consent is acknowledged by the local planning authority to have been implemented by virtue of the installation of the services with a variation having been granted (ref:21/02942/VAR) which relates to the design. The approved plans provide for a traditional single storey log cabin providing open plan kitchen, dining and living area with bi-fold doors together with two bedrooms and a separate bathroom. The land benefits from being fully serviced with connections to mains water and electricity. The land is accessed directly from the A1079 and situated approximately 10 metres above sea level. METHOD OF SALE The property is offered for sale by private treaty as a whole. The vendors reserve the right to conclude the sale by any other means at their discretion. If you have downloaded these particulars, please register your interest with the selling agent. TENURE AND POSSESSION The freehold of the Property is offered for sale with the benefit of vacant possession. PLANNING 21/02942/VAR – Variation of condition 8 (colour of building) and condition 9 (approved plans) of planning permission 17/01247/PLF - Siting of timber holiday cabin. 20/01792/PLF – Erection of site utility hut (for water and electric meters) associated with timber holiday cabin and construction of a soil bund (part retrospective). 17/01247/PLF Siting of timber holiday cabin. ADDITIONAL INFORMATION Additional information including copies of the planning decision notices and approved plans are available from the selling agent. SERVICES The land benefits from mains connections to electricity and water. WAYLEAVES, EASEMENTS & RIGHTS OF WAY The land is sold subject to and with the benefits of all rights of way, water drainage, water courses and other easements and rights of adjoining owners (if any) affecting the same and all existing and proposed wayleaves and other matters registered by any competent authority subject to statute. HEALTH & SAFETY Parties are reminded to be as vigilant as possible when making an inspection and be aware of potential hazards including open ditches and drains. Parties viewing the property do so, entirely at their own risk. VAT Any prices quoted are exclusive of VAT. In the event that the sale of the property or any part of it or any right attached to it becomes a chargeable supply for the purposes of VAT, such tax will be payable in addition to the purchase price. SPORTING, TIMBER & MINERAL RIGHTS The sporting, timber and mineral rights are included in so far as they are owned. LOCAL AUTHORITIES East Riding of Yorkshire Council www.eastriding.gov.uk VIEWINGS Parties are permitted to view the land on foot and during reasonable daylight hours. DIRECTIONS From York Ring Road travel east on the A1079 signposted Hull, Pocklington and Dunnington. Travel through the village of Kexby and over the River Derwent with access to the land being situated immediately on the left hand side as marked with a Carter Jonas For Sale board. WHAT3WORDS ///officers.bulk.squabbles
Location
Key property details
- Special Features
- Holiday complex
- Accessibility
- Ask agent
- Parking
- Ask agent
- Garden
- No
- Carter Jonas reference
- HGT250024