- Sold
Lot 4: Leaze Farm, Lympsham, BS24
Description
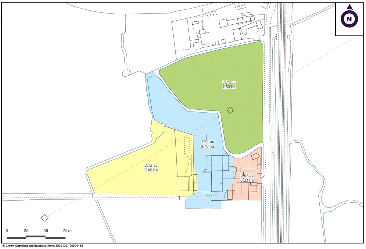
Lot 4: Leaze Farm, Lympsham, Weston-super-Mare, Somerset, BS24 0EZ Lot 4 comprises a pasture paddock extending to 3.71 acres. For sale by online auction. Location Leaze Farm is located a short distance from the sought after village of Lympsham, close to Weston-super-Mare and Burnham-on-Sea. Lympsham offers a church, primary school, village hall, and Post Office, as well as tennis courts and a cricket pitch with the Lympsham Pavilion now a popular village social venue. A wider range of services are available in Weston-super-Mare and Burnham-on-Sea. There is easy access to the M5 motorway at Junction 22, with railway links at Weston-super-Mare, and Highbridge. Lot 4: Pasture Paddock Lot 4 comprises the pasture paddock to the north of Leaze Farm. This extends to 3.71 acres and has access from the road along the eastern boundary. Method of sale The property is offered for sale by online auction with guide prices* for the individual lots as listed below. The property will be sold subject to a reserve price**. For further information, to register to bid, and review the auction packs, visit carterjonas.co.uk/property-auctions. *The guide price is the minimum price at which the seller is prepared to sell at the date of publication. **The reserve price is the minimum price at which the auctioneer is authorised by the seller to sell the lot at auction. The lot may be sold to the highest bidder at or above the reserve price but the auctioneer is not authorised to sell at a figure below the reserve price. Both the guide price and the reserve price are subject to change. Potential purchasers should ensure that they register their interest in the property and regularly check for updated information regarding the property, including changes to the guide price. The guide price for Lot 1 is £350,000. The guide price for Lot 2 is £125,000. The guide price for Lot 3 is £125,000. The guide price for Lot 4 is £50,000. Lot 1 will be offered for sale first with an auction finish time of midday on Wednesday 25th September 2024. The successful purchaser of Lot 1 will be offered the option to purchase Lots 2 and 3 at their combined guide price. If the purchaser of Lot 1 does not accept the option to purchase Lots 2 and 3, Lot 2 will then be offered for sale with an auction finish time of midday on Wednesday 9th October 2024. The successful purchaser of Lot 2 will be offered the option to purchase Lot 3 at the guide price. If the purchaser of Lot 2 does not accept the option to purchase Lot 3, Lot 3 will then be offered for sale separately with an auction finish time of midday on Wednesday 23rd October 2024. Lot 4 will be offered for sale with an auction finish time of midday on Wednesday 23rd October 2024. Completion of the sale of all four lots is due on 20th November 2024. Tenure & Possession The freehold of the property is offered for sale with vacant possession available upon completion. Services Lots 2, 3, and 4 are sold without any services connected. Potential purchasers should make their own enquiries in relation to service connections to service these lots. EPC Ratings Leaze Farmhouse has an EPC rating of G. Wayleaves Easements & Rights of Way A right of way will be reserved through Lot 1 for the benefit of Lots 2 and 3, and in turn through Lot 2, for the benefit of Lot 3, if sold separately. A right to lay services will be granted over the land to the south of Lot 1, and over Lot 2 for the benefit of Lot 3, if sold separately. Local Authorities Somerset Council Viewings Viewings are by appointment through the selling agents, Carter Jonas, on 01823 428590. Directions From Lympsham head towards Batch Country House. At the right turning for Batch Country House, continue on towards Weston-super-Mare and over the railway line. The entrance to Leaze Farm will be found shortly after on the left-hand side. What Three Words /// types.cage.labels
Features at a glance
- Lot 4 Leaze Farm
Location
Key property details
- Accessibility
- Ask agent
- Parking
- Ask agent
- Garden
- No
- Carter Jonas reference
- TAU240096
Description
Lot 4: Leaze Farm, Lympsham, Weston-super-Mare, Somerset, BS24 0EZ Lot 4 comprises a pasture paddock extending to 3.71 acres. For sale by online auction. Location Leaze Farm is located a short distance from the sought after village of Lympsham, close to Weston-super-Mare and Burnham-on-Sea. Lympsham offers a church, primary school, village hall, and Post Office, as well as tennis courts and a cricket pitch with the Lympsham Pavilion now a popular village social venue. A wider range of services are available in Weston-super-Mare and Burnham-on-Sea. There is easy access to the M5 motorway at Junction 22, with railway links at Weston-super-Mare, and Highbridge. Lot 4: Pasture Paddock Lot 4 comprises the pasture paddock to the north of Leaze Farm. This extends to 3.71 acres and has access from the road along the eastern boundary. Method of sale The property is offered for sale by online auction with guide prices* for the individual lots as listed below. The property will be sold subject to a reserve price**. For further information, to register to bid, and review the auction packs, visit carterjonas.co.uk/property-auctions. *The guide price is the minimum price at which the seller is prepared to sell at the date of publication. **The reserve price is the minimum price at which the auctioneer is authorised by the seller to sell the lot at auction. The lot may be sold to the highest bidder at or above the reserve price but the auctioneer is not authorised to sell at a figure below the reserve price. Both the guide price and the reserve price are subject to change. Potential purchasers should ensure that they register their interest in the property and regularly check for updated information regarding the property, including changes to the guide price. The guide price for Lot 1 is £350,000. The guide price for Lot 2 is £125,000. The guide price for Lot 3 is £125,000. The guide price for Lot 4 is £50,000. Lot 1 will be offered for sale first with an auction finish time of midday on Wednesday 25th September 2024. The successful purchaser of Lot 1 will be offered the option to purchase Lots 2 and 3 at their combined guide price. If the purchaser of Lot 1 does not accept the option to purchase Lots 2 and 3, Lot 2 will then be offered for sale with an auction finish time of midday on Wednesday 9th October 2024. The successful purchaser of Lot 2 will be offered the option to purchase Lot 3 at the guide price. If the purchaser of Lot 2 does not accept the option to purchase Lot 3, Lot 3 will then be offered for sale separately with an auction finish time of midday on Wednesday 23rd October 2024. Lot 4 will be offered for sale with an auction finish time of midday on Wednesday 23rd October 2024. Completion of the sale of all four lots is due on 20th November 2024. Tenure & Possession The freehold of the property is offered for sale with vacant possession available upon completion. Services Lots 2, 3, and 4 are sold without any services connected. Potential purchasers should make their own enquiries in relation to service connections to service these lots. EPC Ratings Leaze Farmhouse has an EPC rating of G. Wayleaves Easements & Rights of Way A right of way will be reserved through Lot 1 for the benefit of Lots 2 and 3, and in turn through Lot 2, for the benefit of Lot 3, if sold separately. A right to lay services will be granted over the land to the south of Lot 1, and over Lot 2 for the benefit of Lot 3, if sold separately. Local Authorities Somerset Council Viewings Viewings are by appointment through the selling agents, Carter Jonas, on 01823 428590. Directions From Lympsham head towards Batch Country House. At the right turning for Batch Country House, continue on towards Weston-super-Mare and over the railway line. The entrance to Leaze Farm will be found shortly after on the left-hand side. What Three Words /// types.cage.labels
Features at a glance
- Lot 4 Leaze Farm
Location
Key property details
- Accessibility
- Ask agent
- Parking
- Ask agent
- Garden
- No
- Carter Jonas reference
- TAU240096