Whitecross Green, Murcott OX5

Whitecross Green, Murcott OX5

388.9 acres (157.4 hectares)

Guide price £4,850,000
Islip 4.3 miles
Bicester Village 4.4 miles
Green 1.8 miles

Ring fenced arable farm to the north east of Oxford.

Ring fenced arable farm to the north east of Oxford.

Manor Farm offers an excellent opportunity to acquire a ring fenced arable farm within striking distance of the university city of Oxford.

Comprising an attractive farmhouse converted from an original barn (subject to occupancy condition) the property has a well equipped farmyard with grain storage together with useful outbuildings and stables.

The land is well laid out in large enclosures and accessed by tracks with paddocks surrounding the house and yard.

In all extending to about 388 acres (157 ha).

For sale by private treaty as a whole.

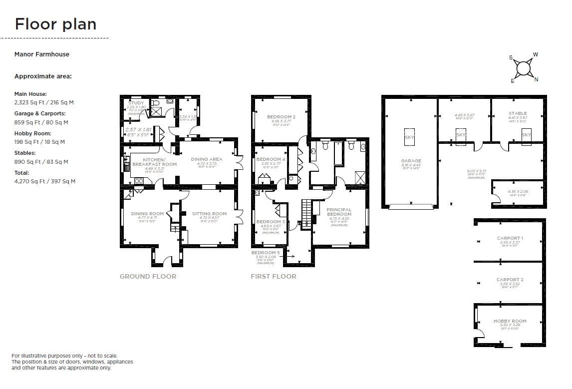
Farmhouse
The farmhouse is a handsome stone built property with tile roof, originally a barn conversion that has been extended. Extending to just over 2,300 sq.ft, the ground floor is well laid out and consists of a kitchen, utility and boot rooms, reception rooms and a formal dining room. Upstairs the property has 4 double bedrooms, one of which has an ensuite as well as a single bedroom and a well appointed family bathroom.

The exterior boasts an extensive lawn which faces onto the paddocks. There is also a large wooden clad office and garage adjacent to the farmhouse with a patio area to the house.

Farmyard and Buildings
The farmyard and buildings are separated from the house by a lean to building (E) housing 2 stables, feed and tack room and a workshop / garage. A further set of wooden stables (D) is located in the yard itself with 8 stables and associated feed and tack stores adjacent to the paddocks.

The balance of the buildings comprise a grain store (A) with drying floor extending to over 7,000 sqft, and enabling circa 1,400t of grain storage, a steel portal framed building (C) extending to about 4,750 sq.ft as well as a concrete atcost building (B) extending to 5,500 sq.ft both providing machinery and fertiliser stores and workshop.

Land
The core of the land is in arable rotation and extends to a ring fence of about 358 acres (144 ha) of productive ground. Split into large, farmable enclosures they are easily accessed via a series of hardcore tracks and is generally underdrained.
Around the house and farmyard are about 15 acres (6ha) of paddocks which are used for equine purposes. There is a small block of woodland extending to 4 acres (1.6ha) located within the farm itself.

The land is not currently under any schemes and is predominantly grade 4 and is further characterised as being mainly base rich loamy soils. Farmed in hand, a cropping schedule is available on request.

Access is available to council-maintained roads at each end of the farm including Fencott Road at Whitehouse Green to the north and Brill Road at Horton cum Studley to the east.

Method of Sale
For sale by Private Treaty as a whole.

Tenure & Possession
Freehold and with vacant possession available subject to holdover for the 2024 harvest.

Sporting
The sporting rights in as far as they are owned are included within the sale.

Planning
We understand that the farmhouse was built / converted subject to an Agricultural Occupancy Condition which confirms:

The occupation of the dwelling(s) shall be limited to a person solely or mainly employed, or last employed, in the locality in agriculture as defined by Section 290(1) of the Town & Country Planning Act, 1971, or in forestry, or a dependent of such person residing with him or her or a widow or widower of such a person. Further details available on request.

Designations
The property is within the Oxford Green belt but is free from any other designations. It is adjacent to the Otmoor Nature reserve.

Holdover & Early Entry
Holdover is reserved to permit the harvesting of all growing crops. Early entry may be allowed at the purchasers own risk.

Drainage
We understand the majority of the land is all under drained. Further information available on request.

Services
We have not undertaken our own investigations but understand that mains water and electricity serve the main house. Drainage is to a private system and heating is oil fired. Fibre broadband is available to the house via Gigaclere.

Wayleaves, Easements & Rights of Way
The property is sold subject to the benefit of all rights including rights of way, whether public or private, light, support, drainage, water and electricity supplies and other rights and obligations, easements and proposed wayleaves from masts, pylons, stays, cables, drains, water, gas and other pipes, whether specifically referred to or not.

As well as a number of public rights of way there is a right of way through the main farm track in favour of adjacent land belonging to the RSPB and BBOWT.

Health & Safety
All viewings are carried out at the sole risk of the viewer and neither the selling agents nor the vendor takes responsibility.

Sporting Timber & Mineral Rights
The mineral, sporting and timber rights are included in the sale of the freehold in so far as that are owned.

Local Authority
Cherwell District council
https://www.cherwell.gov.uk/

Viewings
Viewings are by appointment only by contacting the sole selling agents Carter Jonas, Oxford.

Material Information
For mobile and broadband coverage see https://checker.ofcom.org.uk/

The next steps...

Before making an offer on a property you will want to consider your financial situation, your income and outgoings.

Will you finance the purchase of your next property from the sale of an existing property which can put you in a chain, arrange a mortgage through your bank or buy the property outright.

To help you finance your next property purchase, we have a long established relationship with an independent mortgage broker who can discuss your situation with you.

Remember that having a 'mortgage decision in principle' can make you a more attractive buyer when you make an offer on a property. Contact our mortgage advisers for free, no obligation and impartial advice.

Some advantages of a broker are:

  • They do all the legwork for you, working on your behalf with the lender
  • They compare wholesale mortgage rates from a large number of banks and lenders all at once
  • Their wholesale interest rates can be lower than retail (bank branch) interest rates
  • They offer more loan options because they work with numerous banks and lenders
  • They can finance tricky deals because of their knowledge and various lending partners
  • They are typically easier to get in contact with, and are less bureaucratic.

However advantages of working with your bank are:

  • You may be able to build off an existing relationship (and gain discounts if you have a checking or savings account)
  • You may already know the banker who will handle your mortgage
  • Banks may be more accountable than a smaller shop
  • They may offer lower interest rates in some cases
  • Their ability to add mortgage to existing banking profile and make automatic payments from linked account.

When you see a property you are interested in on our website, call us 24/7 to arrange a viewing. Or if you prefer, get in touch via our website and we will call you back to find a time to view the property that suits you.

Once you’ve found a property you want to buy, it’s time to make an offer. A bit of negotiation is to be expected, however don't offer so little that you end up in a lengthy negotiation process, as you might lose the property altogether if someone else makes a higher bid.

If other offers have been made on a property we aren't legally able to tell you what they are, but we may indicate if they were close to the asking price.

If you have a property to sell, why not see how we can help you.

Or if you’re considering letting your property, we can take the stress out of managing your rental, and our award winning lettings team offer a service that can be tailored to your needs.

Combined with nearly 170 years of experience and one of the highest customer satisfaction scores in the industry, Carter Jonas is the perfect property partner.

Why not book a free, no obligation valuation of your property and find out how Carter Jonas can help you make your next move.

Key property details
Locality
Rural
Property type
Land Farm
Total land
388.9 acres (157.4 hectares)
Carter Jonas reference
NWR240004

Suggested properties

Here are a few properties you might like, but within 2 extra miles of your current search

Guide price £840,000 83.7 acres (33.9 hectares)
Agricultural
Guide price £1,950,000 41 acres (16.6 hectares)
Agricultural
Asking price £350,000 29.6 acres (12 hectares)
Agricultural
Thinking of selling?

Find out what your property is worth