Cadsden Road, Princes Risborough HP27

Cadsden Road, Princes Risborough HP27

3.7 acres (1.5 hectares)

Offers in excess of £75,000
Monks Risborough 1.3 miles
Little Kimble 1.4 miles
Princes Risborough 2.3 miles

UNDER OFFER - A well-located paddock in the Chilterns National Landscape.

Well-located paddock in the Chilterns National Landscape.

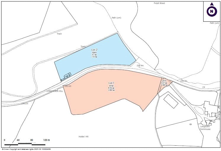
Lot 2 at Longdown Hill comprises 1 parcel of road fronted permanent pasture with hedged and fenced external boundaries. Surrounded by woodland it is located in an elevated position to the east of Princes Risborough and are well suited to equine and amenity uses.

In all extending to 3.7 acres (1.5 ha).

For sale by private treaty as a whole.

Location
The Land at Longdown Hill is located due east of Monks Risborough and adjacent to Pulpit Wood but with excellent connectivity to Great Missenden (4 miles), Wendover (5 miles), Aylesbury (9 miles) and the Risboroughs (2.5 miles) via the A4010, A413 and a host of more minor roads.

Amenties
The land is adjacent to Pulpit Wood, a National Trust run landscape as well as the Ickneild Way Trail, Ridgeway and other foot and bridleways providing access to scenic riding, cycling, walking routes.

Land
Occupying an elevated position between Monks Risborough and Wendover the Land at Longdown Hill is currently used for grazing and / or mowing at present and provides excellent scope for equine or amenity purposes. Providing a well established parcel of permanent pasture well screened by hedges and adjacent woodland, it has access points to Longdown Hill itself.

Lot 2 includes a tin store but specifically excludes the wooden stables which belong to the current occupier.

The soils are classified as being shallow, lime rich soils over chalk or limestone which are well suited to the use.

Method of Sale
For sale by private treaty as a whole.

Tenure & Possession
The property is offered for sale freehold with vacant possession available on completion.

Services
The selling agent is not aware that services are connected.

Wayleaves, Easements & Rights of Way
The property is sold subject to the benefit of all rights including rights of way, whether public or private, light, support, drainage, water and electricity supplies and other rights and obligations, easements and proposed wayleaves from masts, pylons, stays, cables, drains, water, gas and other pipes, whether specifically referred to or not.

Health & Safety
All viewings are carried out at the sole risk of the viewer and neither the selling agents nor the vendor takes responsibility.

Sporting Timber & Mineral Rights
The mineral, sporting and timber rights are included in the sale of the freehold in so far as that are owned.

Local Authority
Buckinghamshire Council
www.buckinghamshire.gov.uk

Viewings
Viewings are unaccompanied but on notification to the selling agents Carter Jonas, Oxford.

Directions
From the centre of Princes Risborough head north towards Monks Risborough and Great Kimble on the A4010 Aylesbury Road. After about 1.25 miles take the 3rd exit at the roundabout onto Cadsdean Road signposted Gt Hampden. Continue for about 1 mile, up past the gold course where the land is signposted on the left and right before the Pulpit Wood car park.

The next steps...

Before making an offer on a property you will want to consider your financial situation, your income and outgoings.

Will you finance the purchase of your next property from the sale of an existing property which can put you in a chain, arrange a mortgage through your bank or buy the property outright.

To help you finance your next property purchase, we have a long established relationship with an independent mortgage broker who can discuss your situation with you.

Remember that having a 'mortgage decision in principle' can make you a more attractive buyer when you make an offer on a property. Contact our mortgage advisers for free, no obligation and impartial advice.

Some advantages of a broker are:

  • They do all the legwork for you, working on your behalf with the lender
  • They compare wholesale mortgage rates from a large number of banks and lenders all at once
  • Their wholesale interest rates can be lower than retail (bank branch) interest rates
  • They offer more loan options because they work with numerous banks and lenders
  • They can finance tricky deals because of their knowledge and various lending partners
  • They are typically easier to get in contact with, and are less bureaucratic.

However advantages of working with your bank are:

  • You may be able to build off an existing relationship (and gain discounts if you have a checking or savings account)
  • You may already know the banker who will handle your mortgage
  • Banks may be more accountable than a smaller shop
  • They may offer lower interest rates in some cases
  • Their ability to add mortgage to existing banking profile and make automatic payments from linked account.

When you see a property you are interested in on our website, call us 24/7 to arrange a viewing. Or if you prefer, get in touch via our website and we will call you back to find a time to view the property that suits you.

Once you’ve found a property you want to buy, it’s time to make an offer. A bit of negotiation is to be expected, however don't offer so little that you end up in a lengthy negotiation process, as you might lose the property altogether if someone else makes a higher bid.

If other offers have been made on a property we aren't legally able to tell you what they are, but we may indicate if they were close to the asking price.

If you have a property to sell, why not see how we can help you.

Or if you’re considering letting your property, we can take the stress out of managing your rental, and our award winning lettings team offer a service that can be tailored to your needs.

Combined with nearly 170 years of experience and one of the highest customer satisfaction scores in the industry, Carter Jonas is the perfect property partner.

Why not book a free, no obligation valuation of your property and find out how Carter Jonas can help you make your next move.

Key property details
Locality
Rural
Property type
Land Farm
Additional attributes
Land/Paddock
Total land
3.7 acres (1.5 hectares)
Carter Jonas reference
OXR250020
Thinking of selling?

Find out what your property is worth