Crown Square, London, SE1
Description
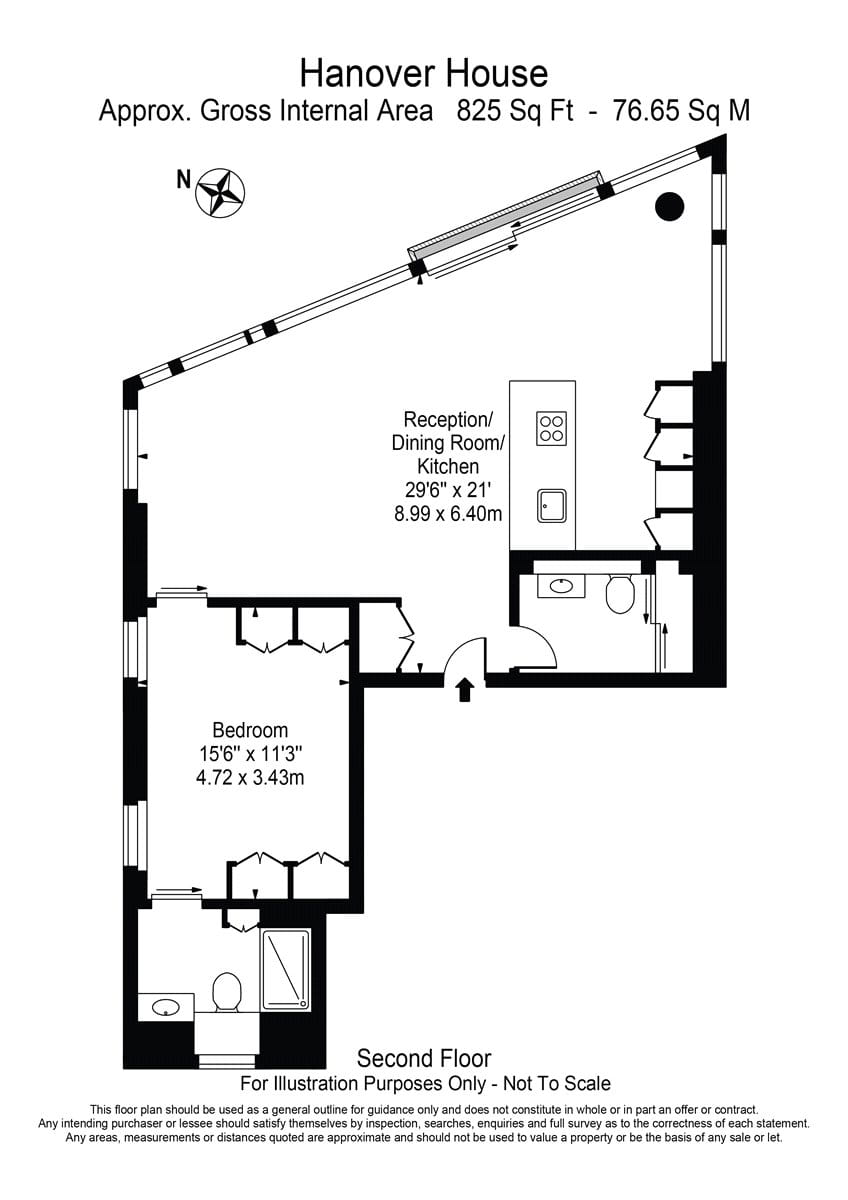
Situated on the second floor of this new development Designed by the award winning architects, Darling Associates. Located minutes walk from the banks of the River Thames and Tower Bridge, the apartment has been finished to the highest specification including Miele kitchen appliances, under floor heating, comfort cooling and home automated system for lighting and blind control. The apartment also benefits from 24h concierge, swimming pool, sauna and gym. Southwark, in common with much of the south bank of the Thames is generally an area of mixed development. Located within easy walking distance of the City and the West End of London it has become a major business centre with many national and international corporations situated alongside residential developments, shops, restaurants, galleries and bars. The Shard skyscraper, Tate Modern art gallery, Imperial War Museum, Shakespeare's Globe Theatre, and Borough Market are but a few of the attractions located within the borough. Nearest Tube: Tower Bridge / Waterloo / Borough Additional Information: Tenure: Leasehold - 985 Years approx. remaining Ground Rent: £988.36 per annum Service Charge: £15,827.68 per annum Local Authority: Southwark County Council (Band E)
Features at a glance
- 1 Bedroom
- Open plan kitchen / reception room
- 2 Bathrooms
- Lift
- Concierge
- Swimming pool and Gym
- Sauna
Leasehold
Location
Key property details
- Property Style
- Upper floor with lift
- Special Features
- Swimming pool, Concierge porter
- Accessibility
- Ask agent
- Parking
- Ask agent
- Garden
- Yes
- Lease expiry
- 01 January 3011
- Carter Jonas reference
- MAY170136
Description
Situated on the second floor of this new development Designed by the award winning architects, Darling Associates. Located minutes walk from the banks of the River Thames and Tower Bridge, the apartment has been finished to the highest specification including Miele kitchen appliances, under floor heating, comfort cooling and home automated system for lighting and blind control. The apartment also benefits from 24h concierge, swimming pool, sauna and gym. Southwark, in common with much of the south bank of the Thames is generally an area of mixed development. Located within easy walking distance of the City and the West End of London it has become a major business centre with many national and international corporations situated alongside residential developments, shops, restaurants, galleries and bars. The Shard skyscraper, Tate Modern art gallery, Imperial War Museum, Shakespeare's Globe Theatre, and Borough Market are but a few of the attractions located within the borough. Nearest Tube: Tower Bridge / Waterloo / Borough Additional Information: Tenure: Leasehold - 985 Years approx. remaining Ground Rent: £988.36 per annum Service Charge: £15,827.68 per annum Local Authority: Southwark County Council (Band E)
Features at a glance
- 1 Bedroom
- Open plan kitchen / reception room
- 2 Bathrooms
- Lift
- Concierge
- Swimming pool and Gym
- Sauna
Leasehold
Location
Key property details
- Property Style
- Upper floor with lift
- Special Features
- Swimming pool, Concierge porter
- Accessibility
- Ask agent
- Parking
- Ask agent
- Garden
- Yes
- Lease expiry
- 01 January 3011
- Carter Jonas reference
- MAY170136
