Andoversford, Gloucestershire, GL54
Description
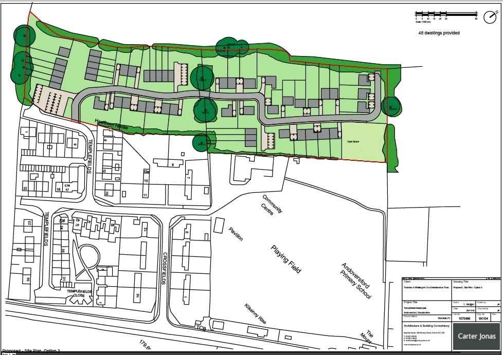
LOCATION The property lies to the immediate north of Templefields an existing residential development, and is situated to the north of Gloucester Road, which in turn provides quick and easy access to the A40, the A436, the M5 and national motorway network beyond. Andoversford is a popular Cotswold village and is located 5 miles east of Cheltenham, where a full range of amenities can be found including national retailers, restaurants, and leisure facilities. Local amenities can be found in the village including a primary school, post office public house and village shop. The village benefits sfrom a nearby train station at Cheltenham Spa (7 miles west) providing regular and direct services into Gloucester and Bristol in approximately 11 minutes and 40 minutes, respectively. Cheltenham Spa also provides direct access to London Paddington in approximately 2hr 20 minutes. THE PROPERTY The property extends to approximately 5.68 acres (2.30 hectares) of agricultural grazing land and benefits sfrom an edge of village setting with attractive views over neighbouring countryside. The property is currently split across two adjoining enclosures, separated from one another by a mixture of mature hedges and trees. Primary access is taken off Templefields to the immediate south. The southern boundary of the site is bound by residential dwellings, a village hall and public open space located off Templefields sand Crossfields The northern, eastern and western boundaries are bound by further agricultural land. The topography of the property is broadly level, sloping slightly towards its north-western boundary. PLANNING The property is located with the Cotswold District Council administrative area and benefits sfrom an allocation for housing within the Local Plan (2011 -2031). Local Plan Policy S10 provides for: ‘’Allocated housing development site: A_2 Land to rear of Templefields sand Crossfields (25 dwellings net)’’. The property also has the benefit tof a positive pre application response, in which Cotswold District Council was consulted on the principle of a scheme of 48 new dwellings. Please see below an illustrative layout of the scheme. The proposed scheme provides for the following: • Access taken via Templefield d • 48 residential dwellings • A policy compliant allocation of 40% affordable housing • 5% of all units would need to be provided on a self-build basis LEGACY The vendor is a landowning trust with a strong involvement in the local community. It is therefore the vendor’s desire to ensure that any development brought forward is sustainable and of high quality, to create a legacy and positive contribution to the built environment of the village. It is advised that proposals should detail how bidding parties would intend to achieve this key objective. Evidence of track record with similar initiatives elsewhere will be welcomed. METHOD OF SALE The opportunity is offered for sale freehold with vacant possession, by way of informal tender. Offers are invited on an unconditional or conditional basis (subject only to planning). Template heads of terms are included within the Information Pack for reference. The vendor will reserve full and unencumbered rights over the property for access and services to its retained land. This will be along a route to be agreed by the parties, between Templefields sand the boundary with the vendor’s retained land marked “A” to “B” on the sale plan. Offers should be received by email in accordance with the Bidding Guidance contained on the Information Pack and received by 12 Noon on Thursday 1st October 2020 marked ‘’Andoversford Tender’’. FURTHER INFORMATION An Information Pack has been prepared to accompany these particulars and includes all relevant planning and legal information, as well as bidding guidance. This is available upon request and prospective purchasers should note that the vendor will expect them to have obtained and carefully considered the contents of the Information Pack prior to submitting their offer. For any information or to receive the information Pack, please contact: Leo Goodman-Jones - leo Goodman-jones@carterjonas.co.uk
Location
Key property details
- Accessibility
- Ask agent
- Parking
- Ask agent
- Garden
- No
- Carter Jonas reference
- PDS200009
Description
LOCATION The property lies to the immediate north of Templefields an existing residential development, and is situated to the north of Gloucester Road, which in turn provides quick and easy access to the A40, the A436, the M5 and national motorway network beyond. Andoversford is a popular Cotswold village and is located 5 miles east of Cheltenham, where a full range of amenities can be found including national retailers, restaurants, and leisure facilities. Local amenities can be found in the village including a primary school, post office public house and village shop. The village benefits sfrom a nearby train station at Cheltenham Spa (7 miles west) providing regular and direct services into Gloucester and Bristol in approximately 11 minutes and 40 minutes, respectively. Cheltenham Spa also provides direct access to London Paddington in approximately 2hr 20 minutes. THE PROPERTY The property extends to approximately 5.68 acres (2.30 hectares) of agricultural grazing land and benefits sfrom an edge of village setting with attractive views over neighbouring countryside. The property is currently split across two adjoining enclosures, separated from one another by a mixture of mature hedges and trees. Primary access is taken off Templefields to the immediate south. The southern boundary of the site is bound by residential dwellings, a village hall and public open space located off Templefields sand Crossfields The northern, eastern and western boundaries are bound by further agricultural land. The topography of the property is broadly level, sloping slightly towards its north-western boundary. PLANNING The property is located with the Cotswold District Council administrative area and benefits sfrom an allocation for housing within the Local Plan (2011 -2031). Local Plan Policy S10 provides for: ‘’Allocated housing development site: A_2 Land to rear of Templefields sand Crossfields (25 dwellings net)’’. The property also has the benefit tof a positive pre application response, in which Cotswold District Council was consulted on the principle of a scheme of 48 new dwellings. Please see below an illustrative layout of the scheme. The proposed scheme provides for the following: • Access taken via Templefield d • 48 residential dwellings • A policy compliant allocation of 40% affordable housing • 5% of all units would need to be provided on a self-build basis LEGACY The vendor is a landowning trust with a strong involvement in the local community. It is therefore the vendor’s desire to ensure that any development brought forward is sustainable and of high quality, to create a legacy and positive contribution to the built environment of the village. It is advised that proposals should detail how bidding parties would intend to achieve this key objective. Evidence of track record with similar initiatives elsewhere will be welcomed. METHOD OF SALE The opportunity is offered for sale freehold with vacant possession, by way of informal tender. Offers are invited on an unconditional or conditional basis (subject only to planning). Template heads of terms are included within the Information Pack for reference. The vendor will reserve full and unencumbered rights over the property for access and services to its retained land. This will be along a route to be agreed by the parties, between Templefields sand the boundary with the vendor’s retained land marked “A” to “B” on the sale plan. Offers should be received by email in accordance with the Bidding Guidance contained on the Information Pack and received by 12 Noon on Thursday 1st October 2020 marked ‘’Andoversford Tender’’. FURTHER INFORMATION An Information Pack has been prepared to accompany these particulars and includes all relevant planning and legal information, as well as bidding guidance. This is available upon request and prospective purchasers should note that the vendor will expect them to have obtained and carefully considered the contents of the Information Pack prior to submitting their offer. For any information or to receive the information Pack, please contact: Leo Goodman-Jones - leo Goodman-jones@carterjonas.co.uk
Location
Key property details
- Accessibility
- Ask agent
- Parking
- Ask agent
- Garden
- No
- Carter Jonas reference
- PDS200009