- Sold
Monkwood, Bridport, DT6
Description
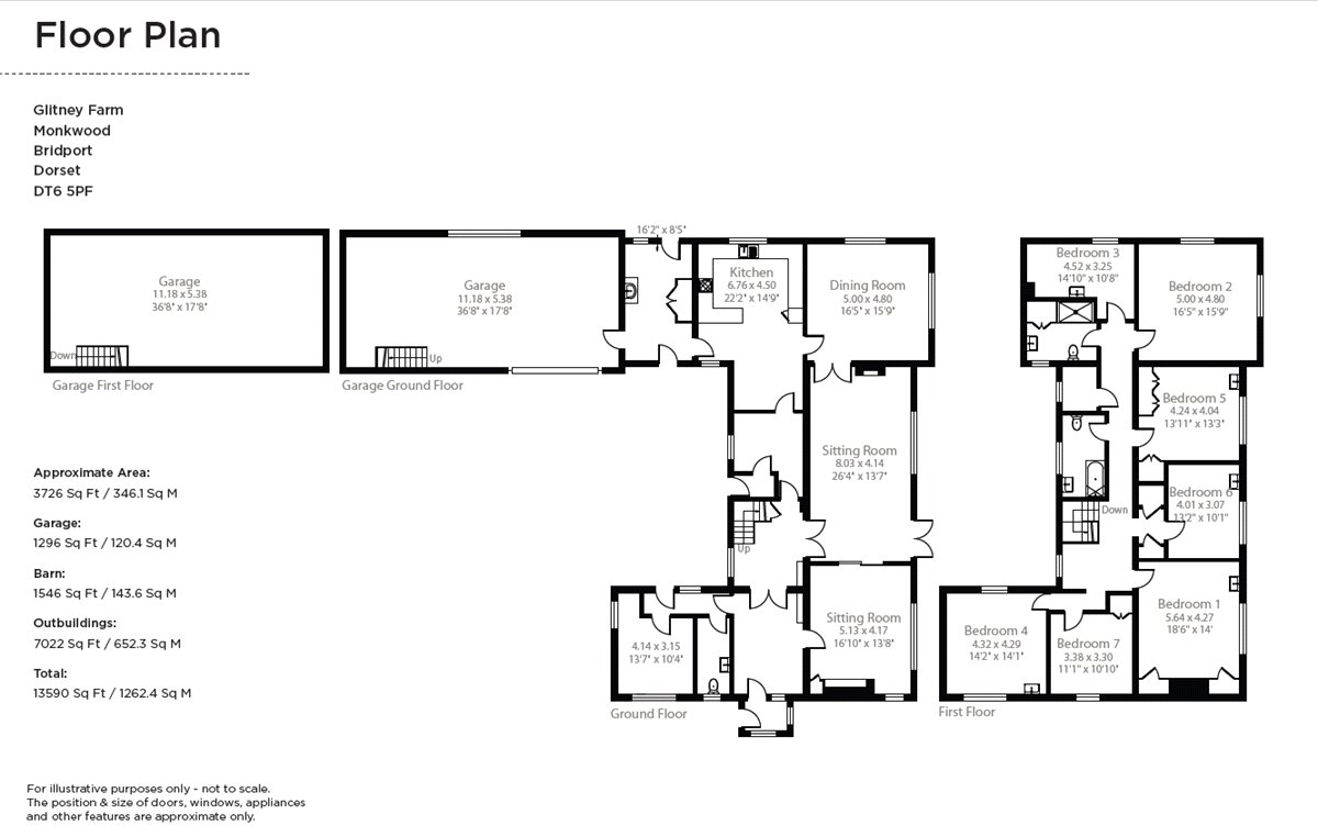
Glitney Farm, Monkwood, Bridport, Dorset, DT6 5PF A private residential, livestock and equestrian holding located in a particularly attractive part of West Dorset. The farm is serviced by a south facing 7-bedroom farmhouse and a range of both traditional and modern farm buildings, all lying centrally within the holding at the end of a long, private drive. The farm offers a wide range of agricultural, leisure or biodiversity opportunities. In all, extending to 86.58 acres. For sale by private treaty as a whole. The Property Glitney Farm comprises a most attractive and private residential holding, set in a secluded position in a particularly attractive part of West Dorset. The house and farm buildings lie centrally within the farm at the end of a long, private drive, enjoying views across its own land to the south and surrounded by good-sized, manageable enclosures laid to pasture with additional parcels of woodland and a lake. The traditional barns offer potential for a variety of alternative uses, subject to consent with the modern farm buildings, ideal to service a range of agricultural or equestrian interests. In all, the farm comprises some 86.58 acres and lies in an area of high amenity value, offering privacy, sporting potential and the opportunity to develop a wide range of biodiversity. Location Glitney Farm is situated a short distance from the village of Monkwood in the heart of the Marshwood Vale and the Dorset National Landscape (Area of Outstanding Natural Beauty) yet is only 6 miles from the world-famous Jurassic coastline at Chideock. Stoke Abbott offers the usual range of facilities including a public house, church, Post Office and village hall. Charmouth and Bridport are about 6.5 miles from the property, both of which offer a wider range of shopping and recreational facilities. Lyme Regis is also within easy reach. There are regular train services from Crewkerne station. Bournemouth International and Exeter airports are both less than an hour away. There are an excellent range of schools, both in the public and private sectors in the locality including Perrott Hill, The Sir John Colfox Academy in Bridport, The Woodroffe School in Lyme Regis, Thomas Hardye School in Dorchester, the Sherborne schools, Bryanston, Canford School, Milton Abbey, Leweston School and Port Regis. The Farmhouse The farmhouse, originally constructed of ham stone walls under a thatched roof was, at a later date, extended with the extensions constructed of ham stone walls under a tiled roof. The property is laid out in a U-shape with the original thatched elevations to the west and south and the later additions offering north and east views. The house, which is now in need of modernisation, and some renovation, offers family accommodation comprising on the ground floor of kitchen with door leading to dining room, original drawing room with oak, fireplace, exposed wooden beams and patio doors, sitting room with a large ham stone inglenook fireplace and open fire, front hall, office, inner hall and service rooms to the rear. On the first floor, there are 7-bedrooms and two family bathrooms. The farmhouse is approached from the farm drive that leads to a circular turning area and extensive parking. Situated to the south and east of the house is an attractive lawned garden with a disused swimming pool and Ha-Ha, all overlooking the adjoining farmland. Farm Buildings Situated to the north of the farmhouse is a range of traditional and modern farm buildings, many of which may be capable of conversion into numerous alternative uses, subject to obtaining the appropriate consents. The Land The land, which surrounds the farmhouse and farm buildings, comprises a ring fence block of gently sloping pasture. Access to the farm is enjoyed off Monkwood Lane which lies along the western boundary. The eastern boundary is bordered by an attractive watercourse and a belt of amenity woodland. The northern part of the farm comprises steeper pasture with some amenity woodland and an attractive lake. Method of Sale The farm is offered for sale by private treaty as a whole. Tenure & Possession Vacant possession is available upon completion. Services The farmhouse is connected to mains electricity, mains water and is serviced by a private drainage system. Health & Safety Potential purchasers are required to take particular care when inspecting the property. It is recommended to wear supportive footwear for viewings. Potential purchasers are advised to be conscious of potentially uneven and slippery ground surfaces. Sporting, Timber & Mineral Rights Included within the sale in so far as they are available. Wayleaves, Easements, & Rights of Way The property is being sold subject to and with the benefit of all rights including; rights of way, whether public or private, light, sport, drainage, water and electricity supplies and other rights and obligations, easements and quasieasements and restrictive covenants and all existing proposed wayleaves for masts, pylons, stays, cables, drains, water and gas and other pipes whether referred to in these particulars or not. In particular it is noted that a bridleway and two footpaths cross the farm. Further information is available from the agents. EPC Ratings Rated G. Council Tax Band G. Local Authority Dorset Council Viewings By prior appointment with the Vendors’ agents, Carter Jonas 01823 428 590. Directions From Bridport, head north on the B3162. After 5 miles, turn left signed to Blackney/Shave Cross. Stay on this lane for about 1.2 miles and the entrance to the property will be found on the left hand side. What Three Words /// pegs.talked.snapped
Location
Key property details
- Additional property type(s)
- House
- Property Style
- Detached
- Special Features
- Outbuildings
- Accessibility
- Ask agent
- Parking
- Ask agent
- Garden
- No
- Carter Jonas reference
- TAU240124
Description
Glitney Farm, Monkwood, Bridport, Dorset, DT6 5PF A private residential, livestock and equestrian holding located in a particularly attractive part of West Dorset. The farm is serviced by a south facing 7-bedroom farmhouse and a range of both traditional and modern farm buildings, all lying centrally within the holding at the end of a long, private drive. The farm offers a wide range of agricultural, leisure or biodiversity opportunities. In all, extending to 86.58 acres. For sale by private treaty as a whole. The Property Glitney Farm comprises a most attractive and private residential holding, set in a secluded position in a particularly attractive part of West Dorset. The house and farm buildings lie centrally within the farm at the end of a long, private drive, enjoying views across its own land to the south and surrounded by good-sized, manageable enclosures laid to pasture with additional parcels of woodland and a lake. The traditional barns offer potential for a variety of alternative uses, subject to consent with the modern farm buildings, ideal to service a range of agricultural or equestrian interests. In all, the farm comprises some 86.58 acres and lies in an area of high amenity value, offering privacy, sporting potential and the opportunity to develop a wide range of biodiversity. Location Glitney Farm is situated a short distance from the village of Monkwood in the heart of the Marshwood Vale and the Dorset National Landscape (Area of Outstanding Natural Beauty) yet is only 6 miles from the world-famous Jurassic coastline at Chideock. Stoke Abbott offers the usual range of facilities including a public house, church, Post Office and village hall. Charmouth and Bridport are about 6.5 miles from the property, both of which offer a wider range of shopping and recreational facilities. Lyme Regis is also within easy reach. There are regular train services from Crewkerne station. Bournemouth International and Exeter airports are both less than an hour away. There are an excellent range of schools, both in the public and private sectors in the locality including Perrott Hill, The Sir John Colfox Academy in Bridport, The Woodroffe School in Lyme Regis, Thomas Hardye School in Dorchester, the Sherborne schools, Bryanston, Canford School, Milton Abbey, Leweston School and Port Regis. The Farmhouse The farmhouse, originally constructed of ham stone walls under a thatched roof was, at a later date, extended with the extensions constructed of ham stone walls under a tiled roof. The property is laid out in a U-shape with the original thatched elevations to the west and south and the later additions offering north and east views. The house, which is now in need of modernisation, and some renovation, offers family accommodation comprising on the ground floor of kitchen with door leading to dining room, original drawing room with oak, fireplace, exposed wooden beams and patio doors, sitting room with a large ham stone inglenook fireplace and open fire, front hall, office, inner hall and service rooms to the rear. On the first floor, there are 7-bedrooms and two family bathrooms. The farmhouse is approached from the farm drive that leads to a circular turning area and extensive parking. Situated to the south and east of the house is an attractive lawned garden with a disused swimming pool and Ha-Ha, all overlooking the adjoining farmland. Farm Buildings Situated to the north of the farmhouse is a range of traditional and modern farm buildings, many of which may be capable of conversion into numerous alternative uses, subject to obtaining the appropriate consents. The Land The land, which surrounds the farmhouse and farm buildings, comprises a ring fence block of gently sloping pasture. Access to the farm is enjoyed off Monkwood Lane which lies along the western boundary. The eastern boundary is bordered by an attractive watercourse and a belt of amenity woodland. The northern part of the farm comprises steeper pasture with some amenity woodland and an attractive lake. Method of Sale The farm is offered for sale by private treaty as a whole. Tenure & Possession Vacant possession is available upon completion. Services The farmhouse is connected to mains electricity, mains water and is serviced by a private drainage system. Health & Safety Potential purchasers are required to take particular care when inspecting the property. It is recommended to wear supportive footwear for viewings. Potential purchasers are advised to be conscious of potentially uneven and slippery ground surfaces. Sporting, Timber & Mineral Rights Included within the sale in so far as they are available. Wayleaves, Easements, & Rights of Way The property is being sold subject to and with the benefit of all rights including; rights of way, whether public or private, light, sport, drainage, water and electricity supplies and other rights and obligations, easements and quasieasements and restrictive covenants and all existing proposed wayleaves for masts, pylons, stays, cables, drains, water and gas and other pipes whether referred to in these particulars or not. In particular it is noted that a bridleway and two footpaths cross the farm. Further information is available from the agents. EPC Ratings Rated G. Council Tax Band G. Local Authority Dorset Council Viewings By prior appointment with the Vendors’ agents, Carter Jonas 01823 428 590. Directions From Bridport, head north on the B3162. After 5 miles, turn left signed to Blackney/Shave Cross. Stay on this lane for about 1.2 miles and the entrance to the property will be found on the left hand side. What Three Words /// pegs.talked.snapped
Location
Key property details
- Additional property type(s)
- House
- Property Style
- Detached
- Special Features
- Outbuildings
- Accessibility
- Ask agent
- Parking
- Ask agent
- Garden
- No
- Carter Jonas reference
- TAU240124