Manor Farm Development Site, Lopen, TA13
Description
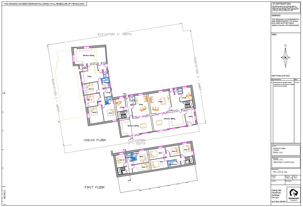
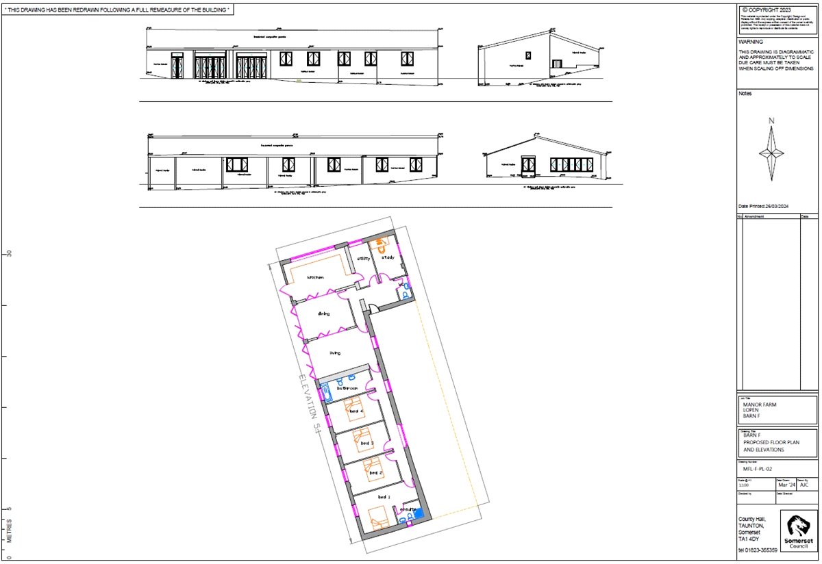
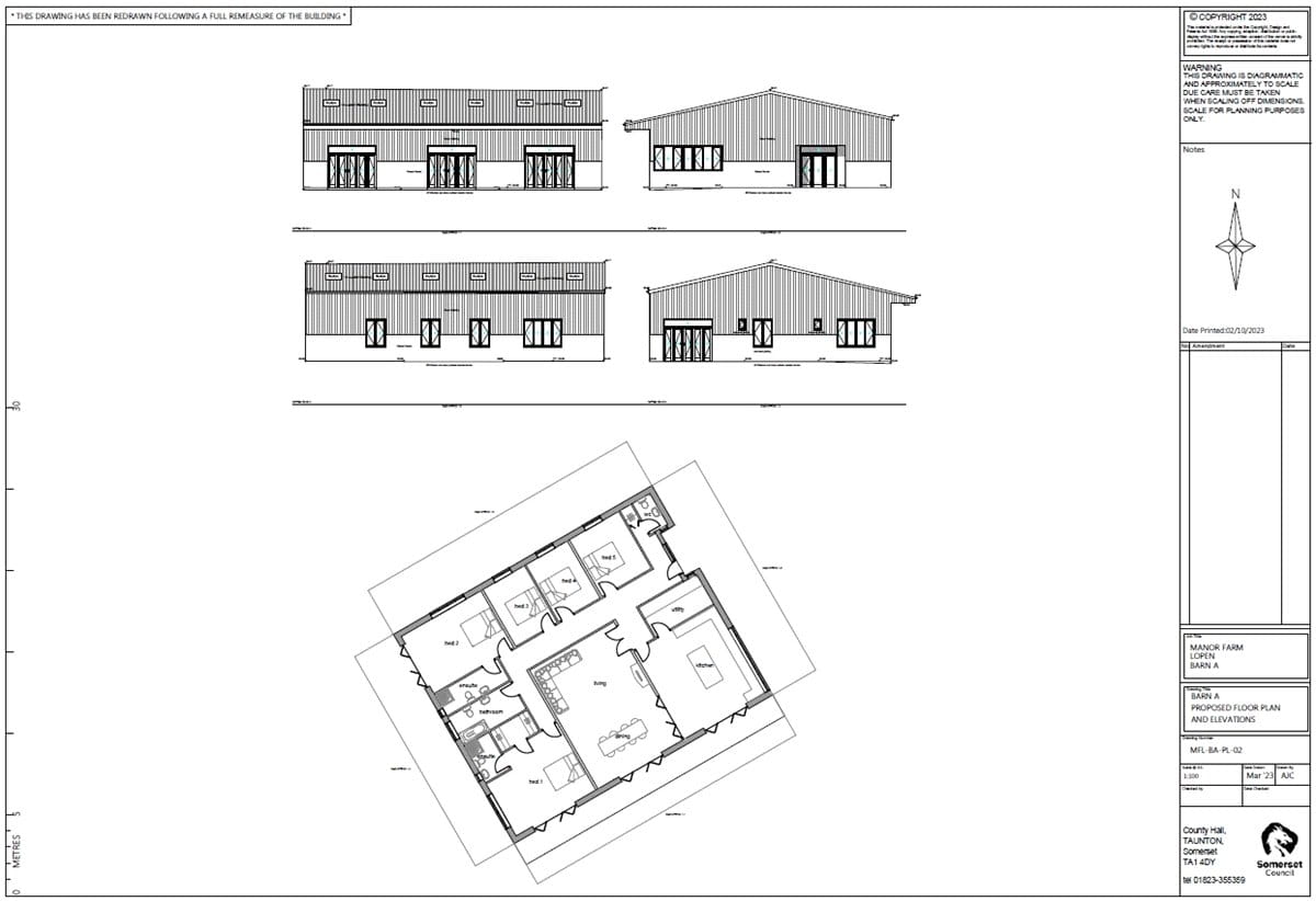
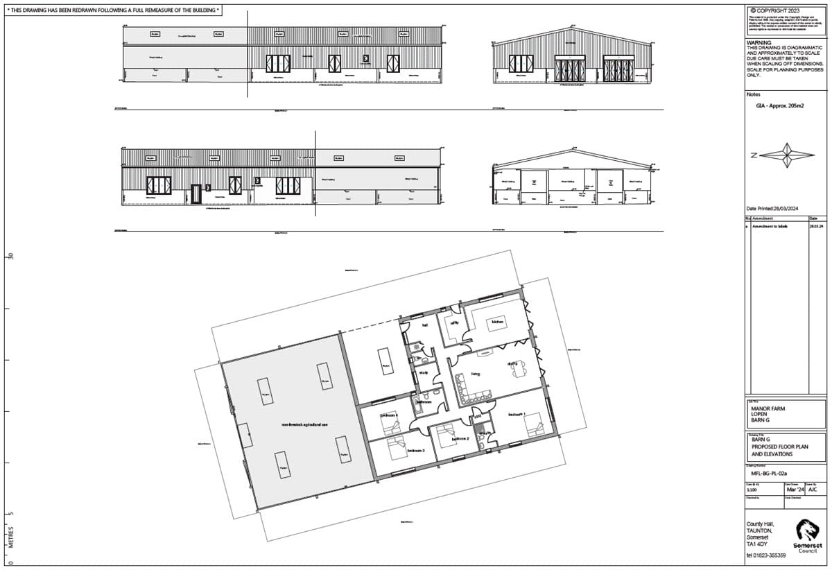
Manor Farm, Lopen, South Petherton, Somerset, TA13 5JN A farmhouse and a range of farm buildings for redevelopment. A rural/village-edge development site including a farmhouse for renovation, together with a range of traditional and modern buildings for conversion to seven dwellings together with adjoining pasture paddocks. In all extending to 8.59 acres. For sale by private treaty as a whole or in up to three separate lots. Location Manor Farm is located on the edge of the village of Lopen, between South Petherton, Crewkerne, Ilminster, and Yeovil, with easy access to the A303. The nearby village of South Petherton offers a school, public house, pharmacy, small hospital, and a small range of shops. The nearby towns of Ilminster, Yeovil and Crewkerne offer a wider range of facilities including a mainline railway service at Crewkerne and Yeovil to London Waterloo. Farmhouse Manor Farmhouse comprises a semi-detached four-bedroom stone and tile farmhouse situated opposite the farm buildings. The property requires complete renovation. Outside, to the rear of the property to the north and west, is a good-sized garden and space for parking. The Land In addition to the farmstead, there are gently sloping pasture paddocks to the south of the farmstead which run down to the stream which forms the southern boundary of the property. The paddocks total 5.75 acres and, in all, the site extends to 8.59 acres. Method of Sale The property is offered for sale as a whole by private treaty with a guide price of £800,000. Alternatively, the property is offered for sale in three separate lots. Lot 1, comprising the semi-detached farmhouse for renovation has a guide price of £300,000. Lot 2, comprising the modern building for conversion on the western side of the farmstead within 3.38 acres has a guide price of £225,000. Lot 3, comprising the range of traditional buildings for conversion to five dwellings, together with the modern building for conversion to a dwelling, all within 4.70 acres, has a guide price of £275,000. Planning Barn A: permission was granted for conversion to a five-bedroom dwelling under application reference 23/02752/PAMB in December 2023. Planning and Listed Building Consent was granted under application reference 24/00793/FUL for the conversion of a range of traditional curtilage listed buildings to five dwellings in August 2025. Barn G: permission was granted for conversion to a four-bedroom dwelling under application reference 24/00941/PAMB in May 2024. Listing Status Manor Farmhouse is Grade II Listed. Some of the buildings will therefore be listed within the curtilage of the farmhouse. Covenants The site will be sold subject to a covenant not to develop more than eight dwellings thereon and not to use the buildings for agricultural purposes. Rights of Way A right of access will be reserved over the first section of the drive to the paddock adjoining Kitchens Lane. The relevant access rights will be granted for the lots, depending on/if the property is sold as a whole or in separate lots. Services The property is serviced by mains water and electricity with private drainage. New service connections will be required to service the proposed development. The relevant rights for service installations will be granted for the lots, depending on/if the property is sold as a whole or in separate lots. Health & Safety Potential purchasers should take particular care when inspecting the site. The property comprises a former farmstead with many potentially uneven and steep ground surfaces. Potential purchasers should not attempt to access the first-floor areas of any of the farm buildings, as the timbers have not been tested and may not be sound. EPC Ratings Manor Farmhouse has a current energy rating of G. Local Authority Somerset Council (formerly South Somerset District Council) Viewings Viewings are by appointment with the selling agents, Carter Jonas, on 01823 428290. Directions At the Lopenhead roundabout, follow signs to Lopen. Shortly after entering the village, turn right onto Frog Street and continue onto Water Street and around the sharp right-hand corner onto Kitchens Lane. The entrance to Manor Farm will be found on the left-hand side. What Three Words /// merchant.afternoon.fruit
Location
Key property details
- Additional property type(s)
- House, Farm, Development plot
- Accessibility
- Ask agent
- Parking
- Ask agent
- Garden
- No
- Carter Jonas reference
- TAU250002
Description
Manor Farm, Lopen, South Petherton, Somerset, TA13 5JN A farmhouse and a range of farm buildings for redevelopment. A rural/village-edge development site including a farmhouse for renovation, together with a range of traditional and modern buildings for conversion to seven dwellings together with adjoining pasture paddocks. In all extending to 8.59 acres. For sale by private treaty as a whole or in up to three separate lots. Location Manor Farm is located on the edge of the village of Lopen, between South Petherton, Crewkerne, Ilminster, and Yeovil, with easy access to the A303. The nearby village of South Petherton offers a school, public house, pharmacy, small hospital, and a small range of shops. The nearby towns of Ilminster, Yeovil and Crewkerne offer a wider range of facilities including a mainline railway service at Crewkerne and Yeovil to London Waterloo. Farmhouse Manor Farmhouse comprises a semi-detached four-bedroom stone and tile farmhouse situated opposite the farm buildings. The property requires complete renovation. Outside, to the rear of the property to the north and west, is a good-sized garden and space for parking. The Land In addition to the farmstead, there are gently sloping pasture paddocks to the south of the farmstead which run down to the stream which forms the southern boundary of the property. The paddocks total 5.75 acres and, in all, the site extends to 8.59 acres. Method of Sale The property is offered for sale as a whole by private treaty with a guide price of £800,000. Alternatively, the property is offered for sale in three separate lots. Lot 1, comprising the semi-detached farmhouse for renovation has a guide price of £300,000. Lot 2, comprising the modern building for conversion on the western side of the farmstead within 3.38 acres has a guide price of £225,000. Lot 3, comprising the range of traditional buildings for conversion to five dwellings, together with the modern building for conversion to a dwelling, all within 4.70 acres, has a guide price of £275,000. Planning Barn A: permission was granted for conversion to a five-bedroom dwelling under application reference 23/02752/PAMB in December 2023. Planning and Listed Building Consent was granted under application reference 24/00793/FUL for the conversion of a range of traditional curtilage listed buildings to five dwellings in August 2025. Barn G: permission was granted for conversion to a four-bedroom dwelling under application reference 24/00941/PAMB in May 2024. Listing Status Manor Farmhouse is Grade II Listed. Some of the buildings will therefore be listed within the curtilage of the farmhouse. Covenants The site will be sold subject to a covenant not to develop more than eight dwellings thereon and not to use the buildings for agricultural purposes. Rights of Way A right of access will be reserved over the first section of the drive to the paddock adjoining Kitchens Lane. The relevant access rights will be granted for the lots, depending on/if the property is sold as a whole or in separate lots. Services The property is serviced by mains water and electricity with private drainage. New service connections will be required to service the proposed development. The relevant rights for service installations will be granted for the lots, depending on/if the property is sold as a whole or in separate lots. Health & Safety Potential purchasers should take particular care when inspecting the site. The property comprises a former farmstead with many potentially uneven and steep ground surfaces. Potential purchasers should not attempt to access the first-floor areas of any of the farm buildings, as the timbers have not been tested and may not be sound. EPC Ratings Manor Farmhouse has a current energy rating of G. Local Authority Somerset Council (formerly South Somerset District Council) Viewings Viewings are by appointment with the selling agents, Carter Jonas, on 01823 428290. Directions At the Lopenhead roundabout, follow signs to Lopen. Shortly after entering the village, turn right onto Frog Street and continue onto Water Street and around the sharp right-hand corner onto Kitchens Lane. The entrance to Manor Farm will be found on the left-hand side. What Three Words /// merchant.afternoon.fruit
Location
Key property details
- Additional property type(s)
- House, Farm, Development plot
- Accessibility
- Ask agent
- Parking
- Ask agent
- Garden
- No
- Carter Jonas reference
- TAU250002