Lon Tan Y Bryn, Morfa Nefyn, LL53
Description
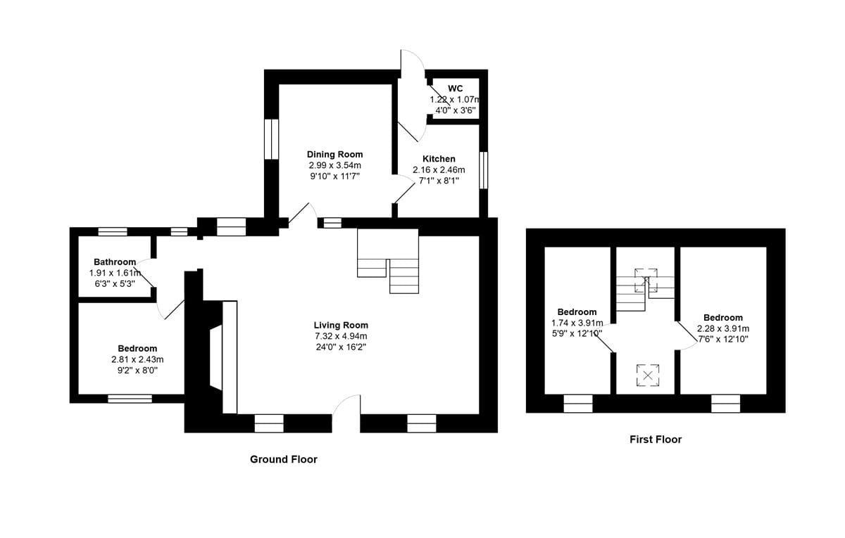
A delightful agricultural holding situated in the coastal village of Morfa Nefyn and in all extending to approximately 10.02 acres. Bryn Bras presents a unique opportunity to acquire a well presented farm that is offered to the market for the first time in over 100 years. Occupying a coastal situation, the cottage rests within a ringfence of agricultural land that stretches from Morfa Nefyn to the spectacular coastline of Nefyn beach. In all extending to 10.02 acres. For sale by private treaty as a whole. Location Bryn Bras occupies a private rural location on the edge of the popular village of Morfa Nefyn on the Llyn Peninsula. The property is fantastically well positioned for all necessary services and amenities, whilst retaining its rural appeal. The holding is located 7 miles from the market town of Pwllheli and 32 miles from the University City of Bangor. From here there is easy access to the A55 North Wales Expressway and the North Wales coast, with links to the national motorway network. A direct train link from Bangor to London Euston takes approximately 3½ hours. Amenities Morfa Nefyn has long been one of the most popular destinations on the Llyn Peninsula with a range of local shops that service the needs of locals and the tourists during the holiday periods. The farmland overlooks Morfa Nefyn Beach which is a two mile long beach that is popular with visitors, water sport enthusiasts and fisherman. Of course, no description of the area would be complete without a reference to Ty Coch, often hailed as one of the best beach pubs in the world! The market town of Pwllheli is within easy reach and offers a range of shops, public houses and wider administrative services. Cottage Bryn Bras is a traditional Welsh Cottage which has been extended over time to form the present three bedroom dwelling. The ground floor accommodation at the property extends to a country style living area with a multifuel burner, a kitchen, a dining room, a ground floor bedroom that could be utilised as a snug or office, a separate wc, and a bathroom. Upstairs the property benefits from two bedrooms. Currently used as a second home, the accommodation can continue to be that perfect bolthole or equally a primary residence for those seeking a family home or to retire by the coast. Unlisted and positioned centrally within the farmland with space on all sides, there is clear scope for enhancement and extension of the property as buyers may wish, subject to obtaining the relevant consents. Access to the property is from a minor council road that leads to a private access track that leads to the front of the cottage, into a gravelled parking area suitable for up to three cars. To the rear and side of the house is a spacious private garden that is perfect for outside living with pleasant views of the surrounding fields. Adjoining the cottage is also a small paddock extending to approximately 0.40 acres. This is a perfect space for children with mature trees to climb, or to plant that vegetable garden you always dreamt about. Buildings Situated within the paddock is a stone outbuilding under a slate roof. This outbuilding provides approximately 900sq ft of floorspace by way of two stables/storage barns. With modest investment, the building is ideal for a smallholding/equestrian use, general storage and or to provide floor area for any alternative use. Planning permission was granted in 2008 for the change of use of the stone outbuilding to a self-catering holiday cottage. Further details are available from the selling agent. Land The farmland at Bryn Bras extends in its entirety to approximately 10 acres of level pasture grazing. The holding is arranged into eight separate compartments which are easily accessible from the cottage. At its northerly boundary the farmland occupies a dramatic situation with cliff top views overlooking Morfa Nefyn Beach and Porthdinllaen. The nature of the land means it is suited for livestock grazing and cropping and it has produced silage crops in the past. In addition, it is ideally situated for those seeking alternative uses such as equestrian land or those with an amenity interest. Method of Sale Private Treaty Tenure & Possession Freehold, with vacant possession on completion of a sale. Part of the land will be subject to an overage condition in the event of any new development. Further details from the selling agent Planning Planning permission was granted in 2008 for the change of use of the stone outbuilding to the rear of the cottage to a self-catering holiday cottage (Ref: C07D/0629/42/LL). We understand that the local authority have approved the commencement of the consent in order to protect the planning permission. On 1st September 2024, Gwynedd Council introduced the Article 4 Direction to manage the use of houses as second homes and holiday accommodation in the Gwynedd Local Planning Authority Area. We understand the current use is Class C5 (second home) however no planning permission would be required to change to a main residence use class (C3). Services Water – mains Electricity – mains Drainage – private septic tank EPC Ratings Band G Wayleaves, Easements & Rights of Way A public footpath passes the front of the cottage leading to the Wales Coast Path. The property is sold subject to, or with the benefit of all Wayleaves, Easements, Quasi Easements, Rights of Way, Covenants and Restrictions whether mentioned in these particulars or not. Sporting, Timber & Mineral Rights Included Local Authority Cyngor Gwynedd www.gwynedd.llyw.cymru Viewings Viewings are strictly by appointment with Carter Jonas on 01248 360414. Directions From Nefyn follow the B4417 until approaching Morfa Nefyn. Approximately 0.25 miles from the cross roads in the centre of Morfa Nefyn is the Bryn Estate housing estate. Immediately after its entrance is a small council road (noted as Bryn Estate on Google Earth) on the right which is largely unmade, follow this road from the B4417 for approximately 0.2 miles. Bryn Bras is then situated on the left. What3words ///dreamers.unrealistic.sweep
Location
Key property details
- Additional property type(s)
- House
- Property Style
- Detached
- Special Features
- Outbuildings, Character property, Holiday complex
- Accessibility
- Ask agent
- Parking
- Ask agent
- Garden
- Yes
- Carter Jonas reference
- BAN250001
Description
A delightful agricultural holding situated in the coastal village of Morfa Nefyn and in all extending to approximately 10.02 acres. Bryn Bras presents a unique opportunity to acquire a well presented farm that is offered to the market for the first time in over 100 years. Occupying a coastal situation, the cottage rests within a ringfence of agricultural land that stretches from Morfa Nefyn to the spectacular coastline of Nefyn beach. In all extending to 10.02 acres. For sale by private treaty as a whole. Location Bryn Bras occupies a private rural location on the edge of the popular village of Morfa Nefyn on the Llyn Peninsula. The property is fantastically well positioned for all necessary services and amenities, whilst retaining its rural appeal. The holding is located 7 miles from the market town of Pwllheli and 32 miles from the University City of Bangor. From here there is easy access to the A55 North Wales Expressway and the North Wales coast, with links to the national motorway network. A direct train link from Bangor to London Euston takes approximately 3½ hours. Amenities Morfa Nefyn has long been one of the most popular destinations on the Llyn Peninsula with a range of local shops that service the needs of locals and the tourists during the holiday periods. The farmland overlooks Morfa Nefyn Beach which is a two mile long beach that is popular with visitors, water sport enthusiasts and fisherman. Of course, no description of the area would be complete without a reference to Ty Coch, often hailed as one of the best beach pubs in the world! The market town of Pwllheli is within easy reach and offers a range of shops, public houses and wider administrative services. Cottage Bryn Bras is a traditional Welsh Cottage which has been extended over time to form the present three bedroom dwelling. The ground floor accommodation at the property extends to a country style living area with a multifuel burner, a kitchen, a dining room, a ground floor bedroom that could be utilised as a snug or office, a separate wc, and a bathroom. Upstairs the property benefits from two bedrooms. Currently used as a second home, the accommodation can continue to be that perfect bolthole or equally a primary residence for those seeking a family home or to retire by the coast. Unlisted and positioned centrally within the farmland with space on all sides, there is clear scope for enhancement and extension of the property as buyers may wish, subject to obtaining the relevant consents. Access to the property is from a minor council road that leads to a private access track that leads to the front of the cottage, into a gravelled parking area suitable for up to three cars. To the rear and side of the house is a spacious private garden that is perfect for outside living with pleasant views of the surrounding fields. Adjoining the cottage is also a small paddock extending to approximately 0.40 acres. This is a perfect space for children with mature trees to climb, or to plant that vegetable garden you always dreamt about. Buildings Situated within the paddock is a stone outbuilding under a slate roof. This outbuilding provides approximately 900sq ft of floorspace by way of two stables/storage barns. With modest investment, the building is ideal for a smallholding/equestrian use, general storage and or to provide floor area for any alternative use. Planning permission was granted in 2008 for the change of use of the stone outbuilding to a self-catering holiday cottage. Further details are available from the selling agent. Land The farmland at Bryn Bras extends in its entirety to approximately 10 acres of level pasture grazing. The holding is arranged into eight separate compartments which are easily accessible from the cottage. At its northerly boundary the farmland occupies a dramatic situation with cliff top views overlooking Morfa Nefyn Beach and Porthdinllaen. The nature of the land means it is suited for livestock grazing and cropping and it has produced silage crops in the past. In addition, it is ideally situated for those seeking alternative uses such as equestrian land or those with an amenity interest. Method of Sale Private Treaty Tenure & Possession Freehold, with vacant possession on completion of a sale. Part of the land will be subject to an overage condition in the event of any new development. Further details from the selling agent Planning Planning permission was granted in 2008 for the change of use of the stone outbuilding to the rear of the cottage to a self-catering holiday cottage (Ref: C07D/0629/42/LL). We understand that the local authority have approved the commencement of the consent in order to protect the planning permission. On 1st September 2024, Gwynedd Council introduced the Article 4 Direction to manage the use of houses as second homes and holiday accommodation in the Gwynedd Local Planning Authority Area. We understand the current use is Class C5 (second home) however no planning permission would be required to change to a main residence use class (C3). Services Water – mains Electricity – mains Drainage – private septic tank EPC Ratings Band G Wayleaves, Easements & Rights of Way A public footpath passes the front of the cottage leading to the Wales Coast Path. The property is sold subject to, or with the benefit of all Wayleaves, Easements, Quasi Easements, Rights of Way, Covenants and Restrictions whether mentioned in these particulars or not. Sporting, Timber & Mineral Rights Included Local Authority Cyngor Gwynedd www.gwynedd.llyw.cymru Viewings Viewings are strictly by appointment with Carter Jonas on 01248 360414. Directions From Nefyn follow the B4417 until approaching Morfa Nefyn. Approximately 0.25 miles from the cross roads in the centre of Morfa Nefyn is the Bryn Estate housing estate. Immediately after its entrance is a small council road (noted as Bryn Estate on Google Earth) on the right which is largely unmade, follow this road from the B4417 for approximately 0.2 miles. Bryn Bras is then situated on the left. What3words ///dreamers.unrealistic.sweep
Location
Key property details
- Additional property type(s)
- House
- Property Style
- Detached
- Special Features
- Outbuildings, Character property, Holiday complex
- Accessibility
- Ask agent
- Parking
- Ask agent
- Garden
- Yes
- Carter Jonas reference
- BAN250001