Leckhampstead, Newbury RG20

Leckhampstead, Newbury RG20

5 Bedroom | Freehold | Outbuildings | Secondary Accomodation | 100 acres (40.5 hectares)

Offers in excess of £3,800,000
East Lane 2.4 miles
The Swan 3.4 miles
The Castle Inn 4.3 miles

UNDER OFFER - Rowbury Farmhouse, yard, modern and traditional buildings, cottage and mainly arable land.

Property
Lot 1: Rowbury Farmhouse, yard, modern and traditional buildings, cottage and land | 99.96 acres (40.45 ha).

Location
Rowbury Farm lies south of the village of Leckhampsted in West Berkshire, the location is primarily rural but with good connection via the nearby B4494.

Communications in the area are excellent, with a direct train service from Newbury into London Paddington and easy access to the M4 and A34 linking with London, Heathrow Airport and the West Country.

Amenities
Leckhampstead is a very sought-after village in a rural elevated spot on the Berkshire Downs. There is a thriving local community, and a village hall and church in the village and there are pubs in nearby Chaddleworth and Peasemore. The smaller market towns of Newbury, Wantage and Hungerford provide an excellent range of local facilities, as well as shops, cafés and restaurants.
There is a wide choice of highly regarded state and independent schools in the area as well as a host of leisure pursuits including fishing, golf and horseracing.

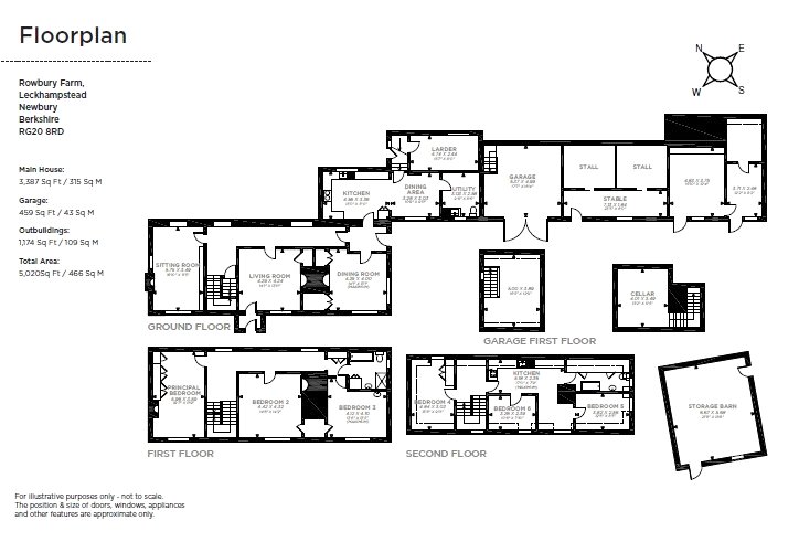
Farmhouse
Rowbury Farmhouse is a handsome grade II listed and a brick under tile 18th century detached three storey farmhouse extending to nearly 3,400 sq.ft. There is an extensive ground floor including kitchen / breakfast room, store, utility, dining and sitting rooms together with cellar. To the first floor are 3 well-appointed bedrooms with bathroom and the second has a bedroom and a flat with 2 extra bedrooms, kitchen and bathroom.

Externally the house has a painted façade, front and rear entrances and a southerly outlook. There is a run of mainly single storey traditional buildings that are located to side of the farmhouse which could provide scope for additional residential accommodation, subject to planning.

The house is accessed via a private drive. There is a large front garden mainly laid to lawn with some shrubs and borders and a smaller area to the west, with garden shed.

In the agents opinion the house requires modernisation to bring it to current standards.

Buildings
Benefiting from extensive buildings providing excess 45,000 sq.ft of accommodation including, but not limited to, steel portal framed and box profile clad grain store (A) with concrete floor and walling, concrete framed Atcost cattle housing (B), wooden framed traditional grade II listed threshing barn (C), calf shed (D), silage clamp (E), former parlour (F), Stables (G), open fronted sheds (H) and cart shed (I). Sited to the core they mainly have concrete or hard earth floors and provide excellent scope for additional uses subject to planning.

Land
The farmland lies in a single ring fenced block surrounding the core farmhouse, yard and buildings. With access available from a number of locations the fields are bordered by a mixture of hedging and post and wire fences with five bar gates to most road access points.

The soils are of the Hornbeam 2 series being a mix of loamy over clayey soils, some well drained fine loamy and fine silty soils with some flinty soils, all synonymous with this location and suitable for cereals and grassland.

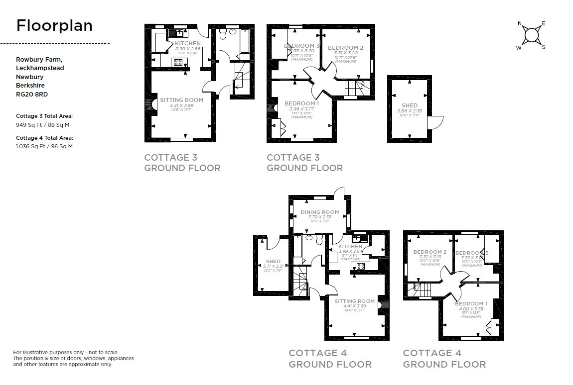
Cottages
3 Rowbury Farm Cottage is an attractive brick under tile semi-detached cottage located on the southern boundary of the farm. Extending to 949 sq.ft it has wooden doors, kitchen, sitting room and ground floor bathrooms. It has 3 bedroom accommodation to the first floor and an ample garden.

If sold separately from its neigbour there will need to be rights enabled for the drainage of 3 Rowbury which is currently shared.

Method of Sale
For sale by private treaty as a whole.

Tenure & possession
Freehold and with vacant possession on completion barring:
– Holdover for 2025 harvest
– 3 Rowbury Cottage which is sold subject to the unexpired term of its Assured Shorthold Tenancy.

Further details on request.

Company Ownership
For clarity the property is wholly owned by a Ltd Company and as such the transaction can be either direct assets or via a share sale. Further detail on request.

Listing Status
Rowbury Farmhouse, an adjacent brick barn with thatched roof and the large thatched barns further south in the farmyard are all Grade II listed.

Designations
The property is wholly located in the North Wessex Downs National Landscape.
Holdover & Early Entry

Holdover is reserved to permit the harvesting of all growing crops. Early entry may be allowed at the purchasers own risk.

Services
Farm: Mains electricity is connected to the core farm with 3 phase to the buildings. Water is via a borehole supply. Drainage is to private systems. Broadband is available. Heating is via oil fired systems.

Cottages: Mains electricity is connected. Drainage is to private systems. Water is via a borehole supply from the core farm. Broadband is available. Heating is via oil fired systems.

Wayleaves Easements
& Rights of Way
The property is sold subject to the benefit of all rights including rights of way, whether public or private, light, support, drainage, water and electricity supplies and other rights and obligations, easements and proposed wayleaves from masts, pylons, stays, cables, drains, water, gas and other pipes, whether specifically referred to or not.

Sporting Timber & Mineral Rights
The mineral, sporting and timber rights are included in the sale of the freehold in so far as that are owned.

Health & Safety
All viewings are carried out at the sole risk of the viewer and neither the selling agents nor the vendor takes responsibility.

EPC Ratings
Farmhouse: Listed N/A
3 Rowbury: E
4 Rowbury: E

Local Authority
West Berkshire Council
www.westberks.gov.uk

Viewings
Viewings are by appointment only by contacting the sole selling agents Carter Jonas.

Material Information
For mobile and broadband coverage see https://checker.ofcom.org.uk/

What3Words
Lot 1: ///lifelong.spenders.duos

The next steps...

Before making an offer on a property you will want to consider your financial situation, your income and outgoings.

Will you finance the purchase of your next property from the sale of an existing property which can put you in a chain, arrange a mortgage through your bank or buy the property outright.

To help you finance your next property purchase, we have a long established relationship with an independent mortgage broker who can discuss your situation with you.

Remember that having a 'mortgage decision in principle' can make you a more attractive buyer when you make an offer on a property. Contact our mortgage advisers for free, no obligation and impartial advice.

Some advantages of a broker are:

  • They do all the legwork for you, working on your behalf with the lender
  • They compare wholesale mortgage rates from a large number of banks and lenders all at once
  • Their wholesale interest rates can be lower than retail (bank branch) interest rates
  • They offer more loan options because they work with numerous banks and lenders
  • They can finance tricky deals because of their knowledge and various lending partners
  • They are typically easier to get in contact with, and are less bureaucratic.

However advantages of working with your bank are:

  • You may be able to build off an existing relationship (and gain discounts if you have a checking or savings account)
  • You may already know the banker who will handle your mortgage
  • Banks may be more accountable than a smaller shop
  • They may offer lower interest rates in some cases
  • Their ability to add mortgage to existing banking profile and make automatic payments from linked account.

When you see a property you are interested in on our website, call us 24/7 to arrange a viewing. Or if you prefer, get in touch via our website and we will call you back to find a time to view the property that suits you.

Once you’ve found a property you want to buy, it’s time to make an offer. A bit of negotiation is to be expected, however don't offer so little that you end up in a lengthy negotiation process, as you might lose the property altogether if someone else makes a higher bid.

If other offers have been made on a property we aren't legally able to tell you what they are, but we may indicate if they were close to the asking price.

If you have a property to sell, why not see how we can help you.

Or if you’re considering letting your property, we can take the stress out of managing your rental, and our award winning lettings team offer a service that can be tailored to your needs.

Combined with nearly 170 years of experience and one of the highest customer satisfaction scores in the industry, Carter Jonas is the perfect property partner.

Why not book a free, no obligation valuation of your property and find out how Carter Jonas can help you make your next move.

Key property details
Era
Period
Additional attributes
Outbuildings Secondary Accomodation Land/Paddock
Locality
Rural
Property type
House Farm
Tenure
Freehold
Total land
100 acres (40.5 hectares)
Carter Jonas reference
NWR250004

Suggested properties

Here are a few properties you might like, but within 2 extra miles of your current search

Guide price £1,300,000 1.3 acres (0.506 hectares)
Agricultural
Guide price £750,000 22.4 acres (9.1 hectares)
Agricultural
Offers in excess of £500,000 77.2 acres (31.2 hectares)
Agricultural
Offers in excess of £60,000 4.2 acres (1.7 hectares)
Agricultural
Offers in excess of £60,000 4.2 acres (1.7 hectares)
Agricultural
Asking price £120,000 8.4 acres (3.4 hectares)
Agricultural
Guide price £450,000
Agricultural
Offers in excess of £375,000
Agricultural
Thinking of selling?

Find out what your property is worth