Gowan Avenue, London, SW6
Description
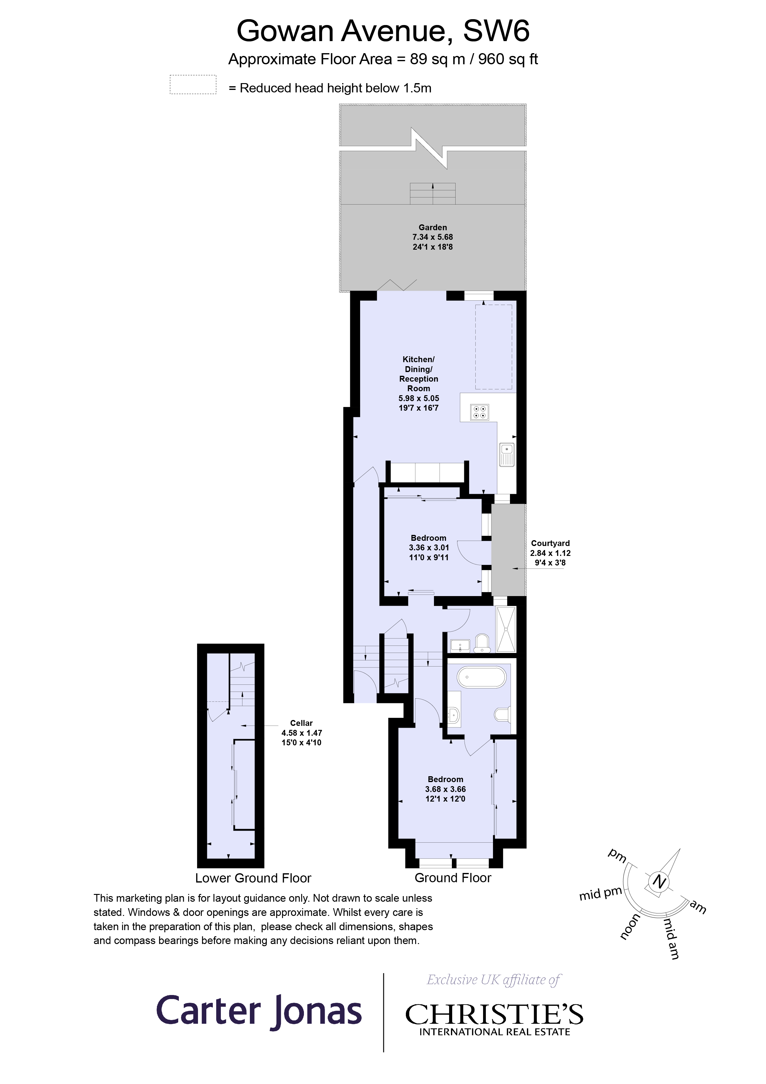
An immaculately presented two-bedroom, two-bathroom period garden flat, offering 960sq. ft of well-planned living space. Located on the ground floor, the flat features a generous principal bedroom suite with fitted wardrobes and a sleek, modern en suite bathroom. A second double bedroom and a guest bathroom offer excellent further accommodation. To the rear, the impressive open-plan kitchen, dining, and reception room with high ceilings is flooded with natural light and opens through bi-folding doors onto a south-west facing astro-turfed garden - ideal for outdoor entertaining. The property further benefits from a spacious utility/laundry room, adding valuable storage and functionality. Gowan Avenue is a highly sought-after residential street located between Munster Road and Fulham Palace Road, just moments from excellent local shops, cafés, and bus routes. The nearest Underground stations are Parsons Green (0.7 miles) and Putney Bridge (0.8 miles), offering convenient access to Central London.
Features at a glance
- 1 Reception Room
- 2 Bedrooms
- 2 Bathrooms
- South-West Facing Garden
- Great Location
Leasehold
Location
Key property details
- Property Style
- Ground floor
- Accessibility
- Level access, Wide doorways
- Parking
- Yes
- Garden
- Yes
- Lease expiry
- 25 March 2137
- Carter Jonas reference
- BNS250082
Description
An immaculately presented two-bedroom, two-bathroom period garden flat, offering 960sq. ft of well-planned living space. Located on the ground floor, the flat features a generous principal bedroom suite with fitted wardrobes and a sleek, modern en suite bathroom. A second double bedroom and a guest bathroom offer excellent further accommodation. To the rear, the impressive open-plan kitchen, dining, and reception room with high ceilings is flooded with natural light and opens through bi-folding doors onto a south-west facing astro-turfed garden - ideal for outdoor entertaining. The property further benefits from a spacious utility/laundry room, adding valuable storage and functionality. Gowan Avenue is a highly sought-after residential street located between Munster Road and Fulham Palace Road, just moments from excellent local shops, cafés, and bus routes. The nearest Underground stations are Parsons Green (0.7 miles) and Putney Bridge (0.8 miles), offering convenient access to Central London.
Features at a glance
- 1 Reception Room
- 2 Bedrooms
- 2 Bathrooms
- South-West Facing Garden
- Great Location
Leasehold
Location
Key property details
- Property Style
- Ground floor
- Accessibility
- Level access, Wide doorways
- Parking
- Yes
- Garden
- Yes
- Lease expiry
- 25 March 2137
- Carter Jonas reference
- BNS250082
