Great Bedford Street, Bath BA1

Great Bedford Street, Bath BA1

5 Bedroom | Freehold | 5 Baths

Guide price £950,000
Oldfield Park 0.9 miles
Hilton Hotel 0.5 miles
Westgate Buildings 0.6 miles

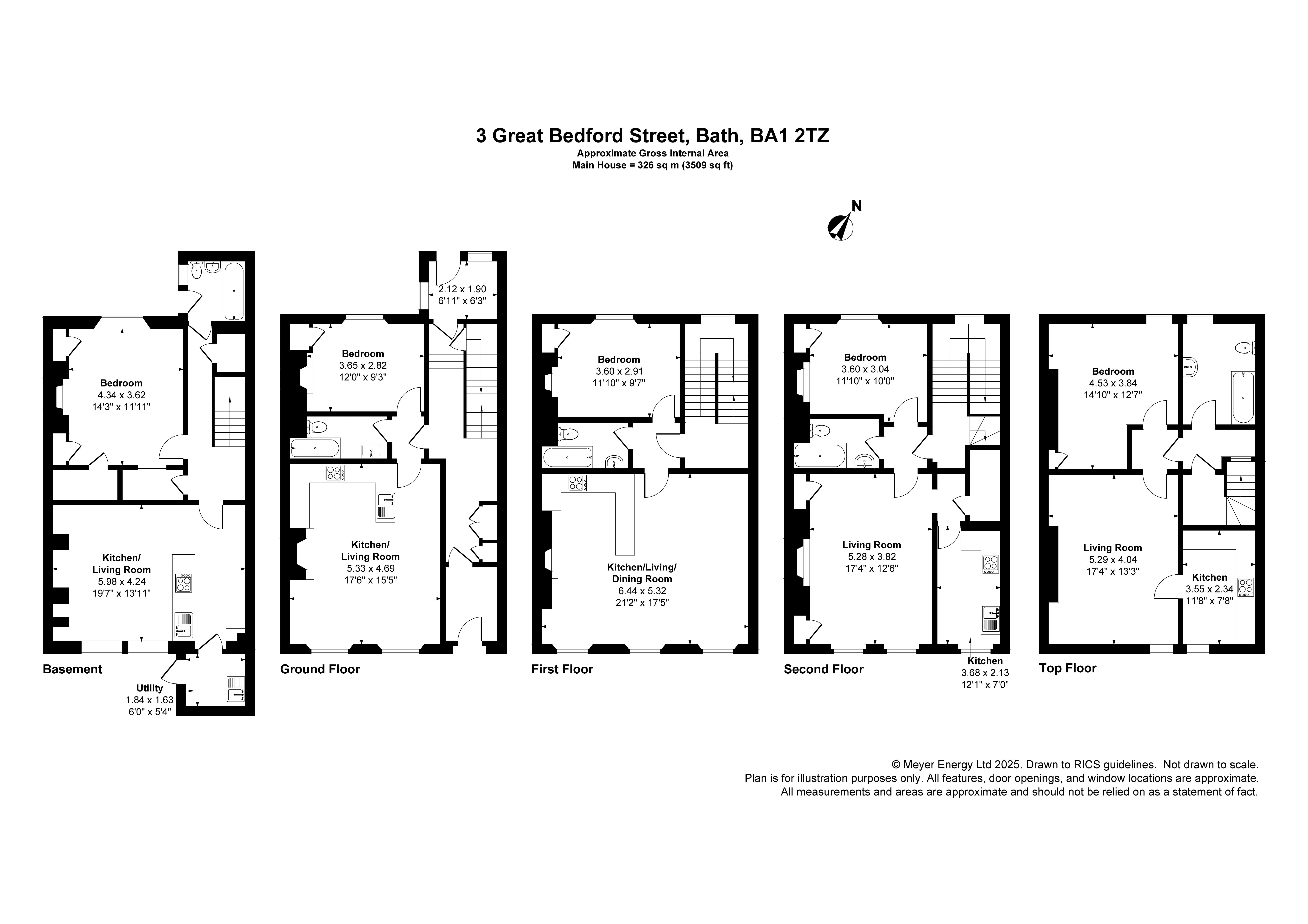
An opportunity to purchase a Grade II Listed central Georgian freehold property in the sought-after location of Great Bedford Street, close to St. James Square and the Royal Crescent. Currently arranged as five one-bedroom apartments.

Lower ground floor apartment: Kitchen/Living room • Utility room • Access to front courtyard and rear communal garden • Bedroom • Bathroom • Internal stairs rise to ground floor hall • EPC Band D
Ground floor apartment: Entrance hall • Kitchen/Living room • Bedroom • Bathroom • Rear porch with access to rear communal garden • EPC Band D
First Floor apartment: Kitchen/Living room • Bedroom • Bathroom • EPC Band C
Second floor apartment: Living room • Kitchen • Bedroom • Bathroom • EPC Band C
Third (top) floor apartment: Living room • Kitchen • Bedroom • Bathroom • EPC Band C

The property is situated in one of Bath’s finest locations with many local amenities nearby at St James’s Street, which offers a variety of shops including a newsagent, chemist, hairdressers, wine bar as well as a nearby florists and greengrocers. Also close to St James’s Square is Royal Victoria Park and its famous botanical gardens.
Bath is a World Heritage Site famed for its Roman heritage and Georgian architecture that offers a wide variety of cultural, leisure, sports, and shopping facilities along with a mainline rail link to London Paddington (journey time from 82 mins) and Bristol Temple Meads (journey time from 15 mins). Junction 18 of the M4 is approximately 11 miles north.

Tenure: Freehold
Planning: Grade II listed
Services: Mains electricity, gas, water and drainage are connected.
Local Authority: Bath and North East Somerset Council.
Council Tax: Lower Ground Floor (Band C) / Ground Floor (Band C) / First Floor (Band C) / Second Floor (Band C) / Third Floor (Band C)
Viewing: Strictly by appointment with Carter Jonas.

The next steps...

Before making an offer on a property you will want to consider your financial situation, your income and outgoings.

Will you finance the purchase of your next property from the sale of an existing property which can put you in a chain, arrange a mortgage through your bank or buy the property outright.

To help you finance your next property purchase, we have a long established relationship with an independent mortgage broker who can discuss your situation with you.

Remember that having a 'mortgage decision in principle' can make you a more attractive buyer when you make an offer on a property. Contact our mortgage advisers for free, no obligation and impartial advice.

Some advantages of a broker are:

  • They do all the legwork for you, working on your behalf with the lender
  • They compare wholesale mortgage rates from a large number of banks and lenders all at once
  • Their wholesale interest rates can be lower than retail (bank branch) interest rates
  • They offer more loan options because they work with numerous banks and lenders
  • They can finance tricky deals because of their knowledge and various lending partners
  • They are typically easier to get in contact with, and are less bureaucratic.

However advantages of working with your bank are:

  • You may be able to build off an existing relationship (and gain discounts if you have a checking or savings account)
  • You may already know the banker who will handle your mortgage
  • Banks may be more accountable than a smaller shop
  • They may offer lower interest rates in some cases
  • Their ability to add mortgage to existing banking profile and make automatic payments from linked account.

When you see a property you are interested in on our website, call us 24/7 to arrange a viewing. Or if you prefer, get in touch via our website and we will call you back to find a time to view the property that suits you.

Once you’ve found a property you want to buy, it’s time to make an offer. A bit of negotiation is to be expected, however don't offer so little that you end up in a lengthy negotiation process, as you might lose the property altogether if someone else makes a higher bid.

If other offers have been made on a property we aren't legally able to tell you what they are, but we may indicate if they were close to the asking price.

If you have a property to sell, why not see how we can help you.

Or if you’re considering letting your property, we can take the stress out of managing your rental, and our award winning lettings team offer a service that can be tailored to your needs.

Combined with nearly 170 years of experience and one of the highest customer satisfaction scores in the industry, Carter Jonas is the perfect property partner.

Why not book a free, no obligation valuation of your property and find out how Carter Jonas can help you make your next move.

Key property details
Property attributes
Terraced
Era
Period
Additional attributes
Garden
Locality
Town/City
Tenure
Freehold
Total sq ft
3,509 (326 Sq M) approx.
Carter Jonas reference
BTH250079

Suggested properties

Here are a few properties you might like, but within 2 extra miles of your current search

Asking price £825,000
4 bedroom house
Guide price £1,450,000
4 bedroom house
Asking price £485,000
2 bedroom house
Guide price £750,000
3 bedroom house
Guide price £1,395,000
5 bedroom house
Asking price £900,000
4 bedroom house
Guide price £1,950,000
4 bedroom house
Guide price £365,000
1 bedroom flat
Guide price £225,000
2 bedroom flat
Guide price £550,000
4 bedroom maisonette
Guide price £950,000
4 bedroom house
Guide price £995,000
2 bedroom maisonette
Thinking of selling?

Find out what your property is worth