Bloomfield Road, Bath BA2

Bloomfield Road, Bath BA2

5 Bedroom | Freehold | 5 Baths

Guide price £795,000
Bath Spa 0.6 miles
Oldfield Park 0.8 miles
Bath (Bus Station) 0.5 miles

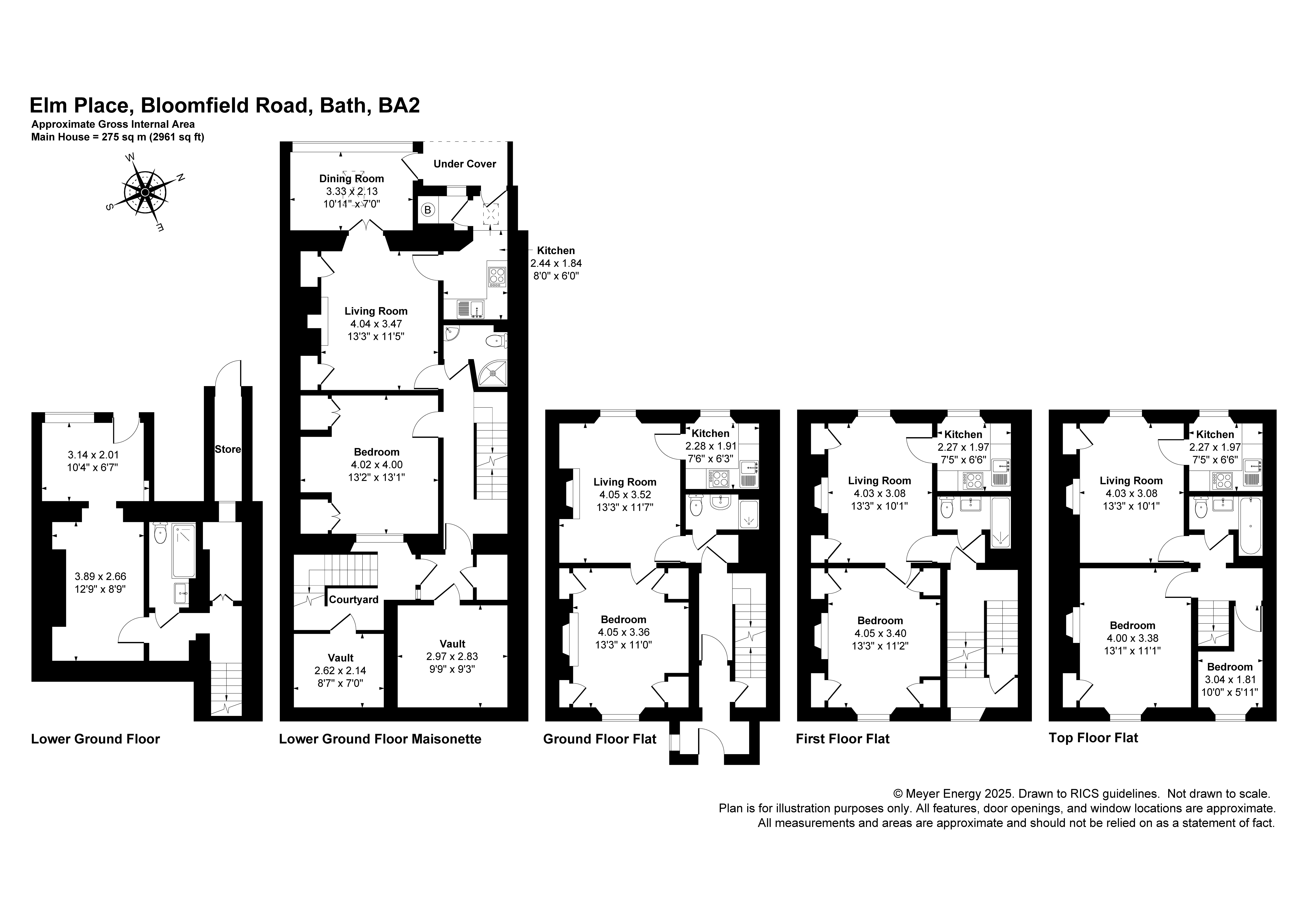
An opportunity to purchase a Grade II Listed Georgian freehold property in the sought-after location of Bear Flat on Elm Place, Bloomfield Road close to Poets Corner. Two parking spaces to the rear.

Currently arranged as four apartments, one of which is a garden maisonette. Planning for conversion to a whole townhouse single residence could be sought. Further information including current rental incomes available on request.

Four apartments. Lower ground floor is a two bedroom maisonette with access to the garden and vaults. Then there are two one bedroom apartments on the ground and first floors and a two bedroom apartment on the top floor (2nd bedroom is a small single/study). Two parking spaces to the rear.

Lower ground floor: Two bedroom maisonette with access to the garden, comprising living room, dining room, a separate kitchen, small utility, two bedrooms two shower rooms, dressing room, two vaults.
Ground floor: One bedroom apartment, living room, kitchen, shower room.
First floor: One bedroom apartment, living room, kitchen, shower room.
Top floor: Two bedroom apartment, two bedrooms, smaller bedroom is a small single/study living room, kitchen, bathroom.
Garden: Long garden with parking for two vehicles to the rear.

Situation
Elm Place, Bloomfield Road is a leafy road opposite the church within 0.4 miles of Bear Flat. The community of Bear Flat offers a range of amenities including The Bear Pad Cafe, Da Vincis Deli, The Bear Pub, Wellsway Pharmacy, Barbers, Cooperative Supermarket, and the award-winning Menu Gordon Jones Restaurant.
Schools - Prior Park College, Paragon Prep, King Edwards and Monkton Combe Senior Schools are all within a short distance, and Beechen Cliff and Hayesfield secondary schools are both within 0.5 and 0.7 miles.
Transport - Bath Spa train station is 1 mile from the property along with a host of shops, restaurants and attractions within the city centre. Bloomfield Green is within 0.1 miles leading to the Sustrains cycle network and the Two Tunnels. Bristol Airport is a 18.4 miles away, and M4 Junction 18 is 11 miles away.
Bath is a World Heritage Site famed for its Roman heritage and Georgian architecture that offers a wide variety of cultural, leisure, sports, and shopping facilities along with a mainline rail link to London Paddington (journey time from 76 mins) and Bristol Temple Meads (journey time from 11 mins).

Additional Information
Tenure: Freehold
Services: All mains services are connected.
Planning: GII Listed: Nos. 20, 22 and 24 and attached railings: Terrace of three houses. Early C19.
Local Authority: Bath and North East Somerset Council.
Council Tax Bands: Garden maisonette - B
Ground floor apartment - B
First floor apartment - B
Top floor apartment - B
EPC Bands: Garden maisonette - D
Ground floor apartment - D
First floor apartment - C
Top floor apartment - C
Viewings: Strictly by appointment with Carter Jonas.

The next steps...

Before making an offer on a property you will want to consider your financial situation, your income and outgoings.

Will you finance the purchase of your next property from the sale of an existing property which can put you in a chain, arrange a mortgage through your bank or buy the property outright.

To help you finance your next property purchase, we have a long established relationship with an independent mortgage broker who can discuss your situation with you.

Remember that having a 'mortgage decision in principle' can make you a more attractive buyer when you make an offer on a property. Contact our mortgage advisers for free, no obligation and impartial advice.

Some advantages of a broker are:

  • They do all the legwork for you, working on your behalf with the lender
  • They compare wholesale mortgage rates from a large number of banks and lenders all at once
  • Their wholesale interest rates can be lower than retail (bank branch) interest rates
  • They offer more loan options because they work with numerous banks and lenders
  • They can finance tricky deals because of their knowledge and various lending partners
  • They are typically easier to get in contact with, and are less bureaucratic.

However advantages of working with your bank are:

  • You may be able to build off an existing relationship (and gain discounts if you have a checking or savings account)
  • You may already know the banker who will handle your mortgage
  • Banks may be more accountable than a smaller shop
  • They may offer lower interest rates in some cases
  • Their ability to add mortgage to existing banking profile and make automatic payments from linked account.

When you see a property you are interested in on our website, call us 24/7 to arrange a viewing. Or if you prefer, get in touch via our website and we will call you back to find a time to view the property that suits you.

Once you’ve found a property you want to buy, it’s time to make an offer. A bit of negotiation is to be expected, however don't offer so little that you end up in a lengthy negotiation process, as you might lose the property altogether if someone else makes a higher bid.

If other offers have been made on a property we aren't legally able to tell you what they are, but we may indicate if they were close to the asking price.

If you have a property to sell, why not see how we can help you.

Or if you’re considering letting your property, we can take the stress out of managing your rental, and our award winning lettings team offer a service that can be tailored to your needs.

Combined with nearly 170 years of experience and one of the highest customer satisfaction scores in the industry, Carter Jonas is the perfect property partner.

Why not book a free, no obligation valuation of your property and find out how Carter Jonas can help you make your next move.

Key property details
Property attributes
Terraced
Era
Period
Parking available
Off Street Parking
Additional attributes
Garden
Locality
Town/City
Tenure
Freehold
Total sq ft
2,961 (275.1 Sq M) approx.
Carter Jonas reference
BTH250208

Suggested properties

Here are a few properties you might like, but within 2 extra miles of your current search

Guide price £595,000
3 bedroom house
Guide price £340,000
2 bedroom flat
Asking price £795,000
4 bedroom house
Guide price £1,450,000
4 bedroom house
Asking price £1,100,000
development plot
Guide price £750,000
3 bedroom house
Guide price £499,000
2 bedroom flat
Guide price £875,000
2 bedroom maisonette
Guide price £275,000
2 bedroom maisonette
Asking price £375,000
1 bedroom flat
Guide price £1,150,000
3 bedroom maisonette
Offers over £175,000
2 bedroom flat
Thinking of selling?

Find out what your property is worth