Trood's Cottage, Clayhidon, EX15
Description
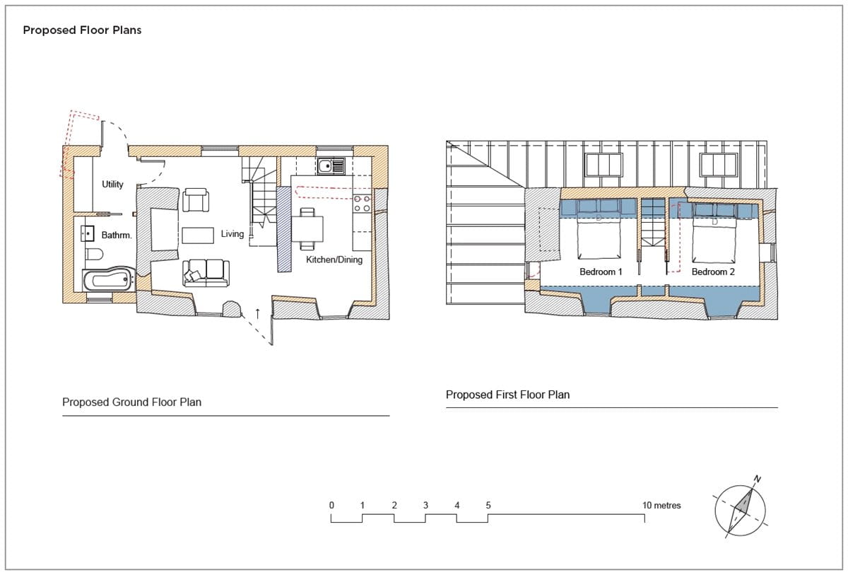
Trood’s Cottage, Clayhidon, Cullompton, Devon, EX15 3QF A residential development opportunity comprising a former stone cottage with planning permission for restoration and extension set within a paddock in the Blackdown Hills National Landscape. In all extending to 0.56 of an acre. For sale by private treaty. Location The property is situated close to the Somerset/Devon border in a particularly attractive part of the Blackdown Hills. Hemyock, which is about two miles to the west, offers a range of shops and services including a school, medical centre, church, post office and traditional pub. Wellington, Honiton, and Taunton are also all within easy reach, all of which offer a wide range of shopping, social and scholastic facilities. There is an excellent range of good schools nearby both in the independent and state sectors including Uffculme School, Wellington School, and Queens and Kings Colleges and Taunton School. The M5 motorway can be joined at Wellington (J26) and Taunton offers a regular intercity service to London Paddington. The A30 can be joined at Honiton, which also offers a regular intercity service to London Waterloo. The Property Trood’s Cottage comprises a residential development opportunity comprising a former stone cottage with planning permission for restoration and extension set within a paddock in the Blackdown Hills National Landscape. Planning permission has been granted to restore and add a ground floor extension. The restored property will provide accommodation comprising, on the ground floor, kitchen and dining room, sitting room, bathroom, utility room. On the first floor, there will be two double bedrooms. The plans set out that two parking spaces will be installed to the east of the property adjoining the road, together with a garden store to be erected to the south west of the cottage. Method of Sale The property is offered for sale by private treaty with a guide price of £175,000. Tenure & Possession The freehold of the property is offered for sale with vacant possession available upon completion. Planning Planning permission was granted by Mid Devon District Council in September 2023 for the restoration and erection of an extension to Trood’s Cottage and erection of garden shed under application reference 23/01058/FULL. Services The property is not connected to any services. The successful purchaser will therefore need to establish new service connections for the property. Health & Safety Due to the dilapidated condition of the property, potential purchasers are requested to take particular care when viewing. Potential purchasers should not enter the property due to the potentially unstable nature of the elevations and roof. Local Authorities Mid Devon Council www.middevon.gov.uk Viewings Potential purchasers may view the property during reasonable daylight hours after informing the vendor’s agents, on 01823 428590, and with a set of these sales particulars in hand. The rear elevation of the property appears to be unstable and should only therefore be viewed from the roadside and not within the boundary of the property. Potential purchasers should not attempt to enter the building due to its apparent unstable condition. Please note the health and safety notice above. Directions From the village of Hemyock, follow signs from Hemyock Methodist Church to Clayhidon, Churchstanton and Churchinford. Take Culmbridge Road, passing Hemyock Post Office on the right-hand side. Continue up and out of the village passing Brookridge Timber on the right-hand side. After about 1½ to 2 miles on this road you will reach a signpost labelled ‘Shackles’. Turn right, signed to Bolham Water. Follow this road and turn left at the right-hand bend, signed ‘Middleton’. Follow this road down the hill into the valley bottom and up the other side. As the road begins to level out, continue straight on (passing the left turn) and the property will be found shortly thereafter on the right-hand side with reference to the boundary plan. What Three Words /// safety.editor.marzipan
Location
Key property details
- Additional property type(s)
- Cottage, Development plot
- Property Style
- Detached
- Accessibility
- Ask agent
- Parking
- Ask agent
- Garden
- No
- Carter Jonas reference
- TAU250042
Description
Trood’s Cottage, Clayhidon, Cullompton, Devon, EX15 3QF A residential development opportunity comprising a former stone cottage with planning permission for restoration and extension set within a paddock in the Blackdown Hills National Landscape. In all extending to 0.56 of an acre. For sale by private treaty. Location The property is situated close to the Somerset/Devon border in a particularly attractive part of the Blackdown Hills. Hemyock, which is about two miles to the west, offers a range of shops and services including a school, medical centre, church, post office and traditional pub. Wellington, Honiton, and Taunton are also all within easy reach, all of which offer a wide range of shopping, social and scholastic facilities. There is an excellent range of good schools nearby both in the independent and state sectors including Uffculme School, Wellington School, and Queens and Kings Colleges and Taunton School. The M5 motorway can be joined at Wellington (J26) and Taunton offers a regular intercity service to London Paddington. The A30 can be joined at Honiton, which also offers a regular intercity service to London Waterloo. The Property Trood’s Cottage comprises a residential development opportunity comprising a former stone cottage with planning permission for restoration and extension set within a paddock in the Blackdown Hills National Landscape. Planning permission has been granted to restore and add a ground floor extension. The restored property will provide accommodation comprising, on the ground floor, kitchen and dining room, sitting room, bathroom, utility room. On the first floor, there will be two double bedrooms. The plans set out that two parking spaces will be installed to the east of the property adjoining the road, together with a garden store to be erected to the south west of the cottage. Method of Sale The property is offered for sale by private treaty with a guide price of £175,000. Tenure & Possession The freehold of the property is offered for sale with vacant possession available upon completion. Planning Planning permission was granted by Mid Devon District Council in September 2023 for the restoration and erection of an extension to Trood’s Cottage and erection of garden shed under application reference 23/01058/FULL. Services The property is not connected to any services. The successful purchaser will therefore need to establish new service connections for the property. Health & Safety Due to the dilapidated condition of the property, potential purchasers are requested to take particular care when viewing. Potential purchasers should not enter the property due to the potentially unstable nature of the elevations and roof. Local Authorities Mid Devon Council www.middevon.gov.uk Viewings Potential purchasers may view the property during reasonable daylight hours after informing the vendor’s agents, on 01823 428590, and with a set of these sales particulars in hand. The rear elevation of the property appears to be unstable and should only therefore be viewed from the roadside and not within the boundary of the property. Potential purchasers should not attempt to enter the building due to its apparent unstable condition. Please note the health and safety notice above. Directions From the village of Hemyock, follow signs from Hemyock Methodist Church to Clayhidon, Churchstanton and Churchinford. Take Culmbridge Road, passing Hemyock Post Office on the right-hand side. Continue up and out of the village passing Brookridge Timber on the right-hand side. After about 1½ to 2 miles on this road you will reach a signpost labelled ‘Shackles’. Turn right, signed to Bolham Water. Follow this road and turn left at the right-hand bend, signed ‘Middleton’. Follow this road down the hill into the valley bottom and up the other side. As the road begins to level out, continue straight on (passing the left turn) and the property will be found shortly thereafter on the right-hand side with reference to the boundary plan. What Three Words /// safety.editor.marzipan
Location
Key property details
- Additional property type(s)
- Cottage, Development plot
- Property Style
- Detached
- Accessibility
- Ask agent
- Parking
- Ask agent
- Garden
- No
- Carter Jonas reference
- TAU250042