Queen Parade, Harrogate HG1

Queen Parade, Harrogate HG1

5 Bedroom | Freehold | 4 Baths | Character Property

Guide price £1,950,000
Harrogate 0.2 miles
Hornbeam Park 0.9 miles
Starbeck 1.4 miles

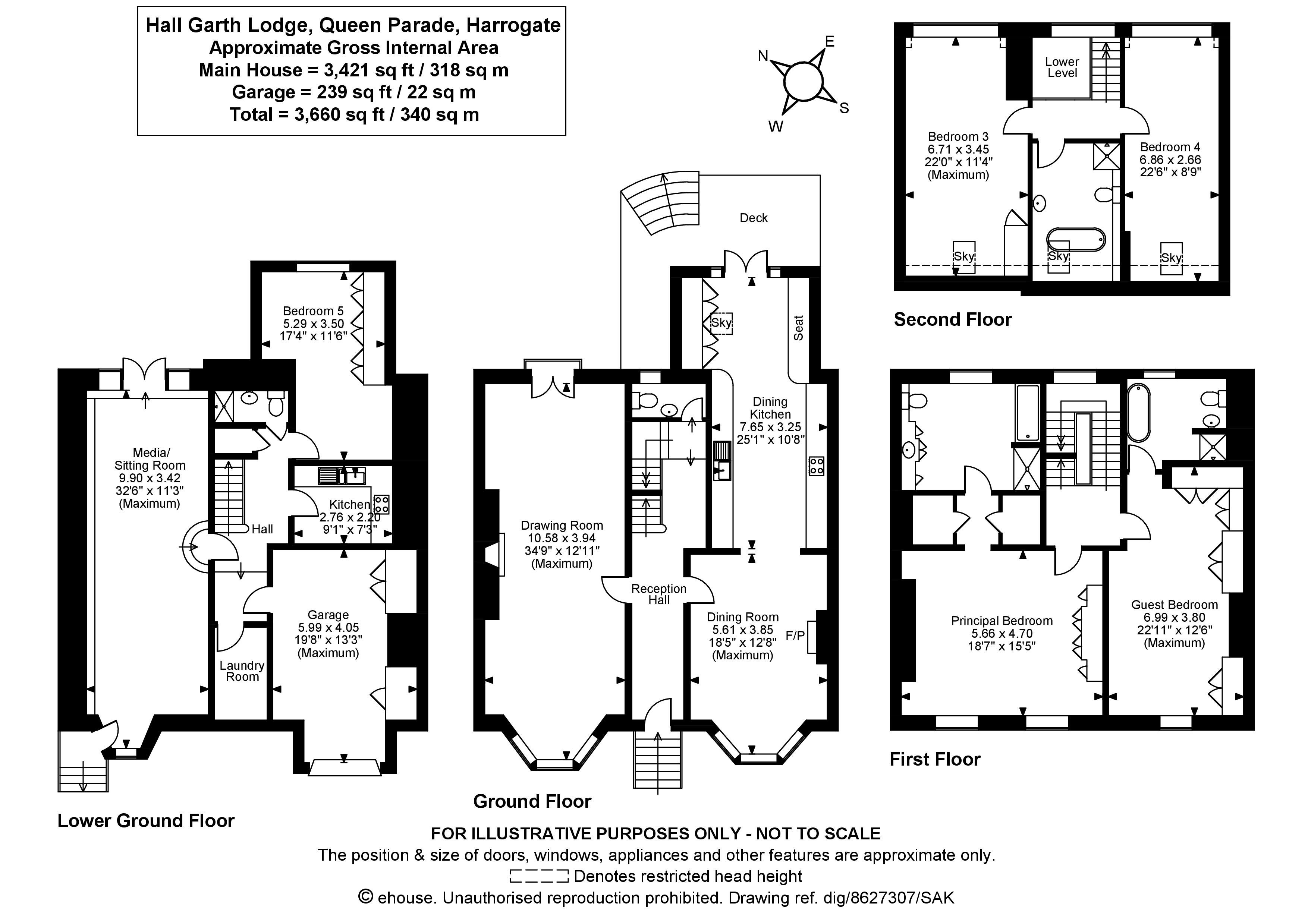
An extremely rare opportunity to acquire a beautiful and luxuriously appointed double fronted period townhouse arranged over four floors with garage, private parking and enclosed landscaped garden in a highly regarded residential neighbourhood close to the town centre.

GROUND FLOOR

Entrance Portico • Impressive reception hall • Guest cloakroom • Stunning through drawing room • Formal dining room • Bespoke fitted breakfast kitchen

LOWER GROUND FLOOR

Inner hall with storeroom • Second cloakroom • Exceptional media/sitting room • Second kitchen/utility room • Laundry room • Bedroom 5 • The whole of the lower ground floor could easily adapt to form a self contained element for a dependent relative if required

FIRST FLOOR

Well proportioned principal bedroom with fitted dressing room and luxury en suite bathroom • Large guest bedroom suite with luxury en suite bathroom

SECOND FLOOR

Two additional double bedrooms • Luxury house bathroom

OUTSIDE

Private forecourt parking for three cars • Integral garage • Recent professionally landscaped enclosed rear garden with raised terrace/balcony and private sunken patio area with water feature

THE PROPERTY

This significant, handsome property dates back to 1840 and has only recently undergone a complete programme of stunning and sympathetic restoration incorporating fixtures and fittings of a luxurious standard whilst retaining many period features indicative of a property of this age. Hall Garth Lodge is grand yet inviting and has been completely redecorated in a traditional style and features a beautiful bespoke fitted kitchen and new luxury bathrooms. An internal inspection is essential to fully appreciate this elegant home rarely available on the open market and so conveniently placed on the fringe of the town centre.

THE LOCATION

Hall Garth Lodge occupies an extremely convenient position, in a lovely tree lined avenue, in one of Harrogate’s most sought after residential areas. The town centre is within a few minutes’ walk and offers an excellent range of facilities including quality and varied shops, restaurants, and an extensive range of recreational facilities. For the commuter, there is easy access to the business centres of Leeds, Bradford and York, the A1(M) is within eight miles and Leeds/Bradford International Airport 11 miles. In addition, the railway station in the town centre provides frequent services throughout the day to both Leeds and York, both cities interconnect with mainline services to London’s Kings Cross.

The next steps...

Before making an offer on a property you will want to consider your financial situation, your income and outgoings.

Will you finance the purchase of your next property from the sale of an existing property which can put you in a chain, arrange a mortgage through your bank or buy the property outright.

To help you finance your next property purchase, we have a long established relationship with an independent mortgage broker who can discuss your situation with you.

Remember that having a 'mortgage decision in principle' can make you a more attractive buyer when you make an offer on a property. Contact our mortgage advisers for free, no obligation and impartial advice.

Some advantages of a broker are:

  • They do all the legwork for you, working on your behalf with the lender
  • They compare wholesale mortgage rates from a large number of banks and lenders all at once
  • Their wholesale interest rates can be lower than retail (bank branch) interest rates
  • They offer more loan options because they work with numerous banks and lenders
  • They can finance tricky deals because of their knowledge and various lending partners
  • They are typically easier to get in contact with, and are less bureaucratic.

However advantages of working with your bank are:

  • You may be able to build off an existing relationship (and gain discounts if you have a checking or savings account)
  • You may already know the banker who will handle your mortgage
  • Banks may be more accountable than a smaller shop
  • They may offer lower interest rates in some cases
  • Their ability to add mortgage to existing banking profile and make automatic payments from linked account.

When you see a property you are interested in on our website, call us 24/7 to arrange a viewing. Or if you prefer, get in touch via our website and we will call you back to find a time to view the property that suits you.

Once you’ve found a property you want to buy, it’s time to make an offer. A bit of negotiation is to be expected, however don't offer so little that you end up in a lengthy negotiation process, as you might lose the property altogether if someone else makes a higher bid.

If other offers have been made on a property we aren't legally able to tell you what they are, but we may indicate if they were close to the asking price.

If you have a property to sell, why not see how we can help you.

Or if you’re considering letting your property, we can take the stress out of managing your rental, and our award winning lettings team offer a service that can be tailored to your needs.

Combined with nearly 170 years of experience and one of the highest customer satisfaction scores in the industry, Carter Jonas is the perfect property partner.

Why not book a free, no obligation valuation of your property and find out how Carter Jonas can help you make your next move.

Key property details
Era
Period
Parking available
Off Street Parking Garage
Additional attributes
Character Property Garden
Locality
Town/City
Tenure
Freehold
Total sq ft
3,421 (317.8 Sq M) approx.
Carter Jonas reference
HAR240268

Suggested properties

Here are a few properties you might like, but within 2 extra miles of your current search

Guide price £1,795,000
4 bedroom house
Guide price £2,250,000
4 bedroom house
Guide price £925,000
3 bedroom house
Guide price £850,000
8 bedroom house
Guide price £295,000
2 bedroom house
Offers over £685,000
2 bedroom flat
Guide price £1,350,000
4 bedroom house
Guide price £1,795,000
5 bedroom house
Guide price £550,000
2 bedroom house
Guide price £799,500
4 bedroom house
Guide price £625,000
3 bedroom house
Guide price £625,000
3 bedroom flat
Thinking of selling?

Find out what your property is worth