Shepherd Street, Mayfair, W1J
Description
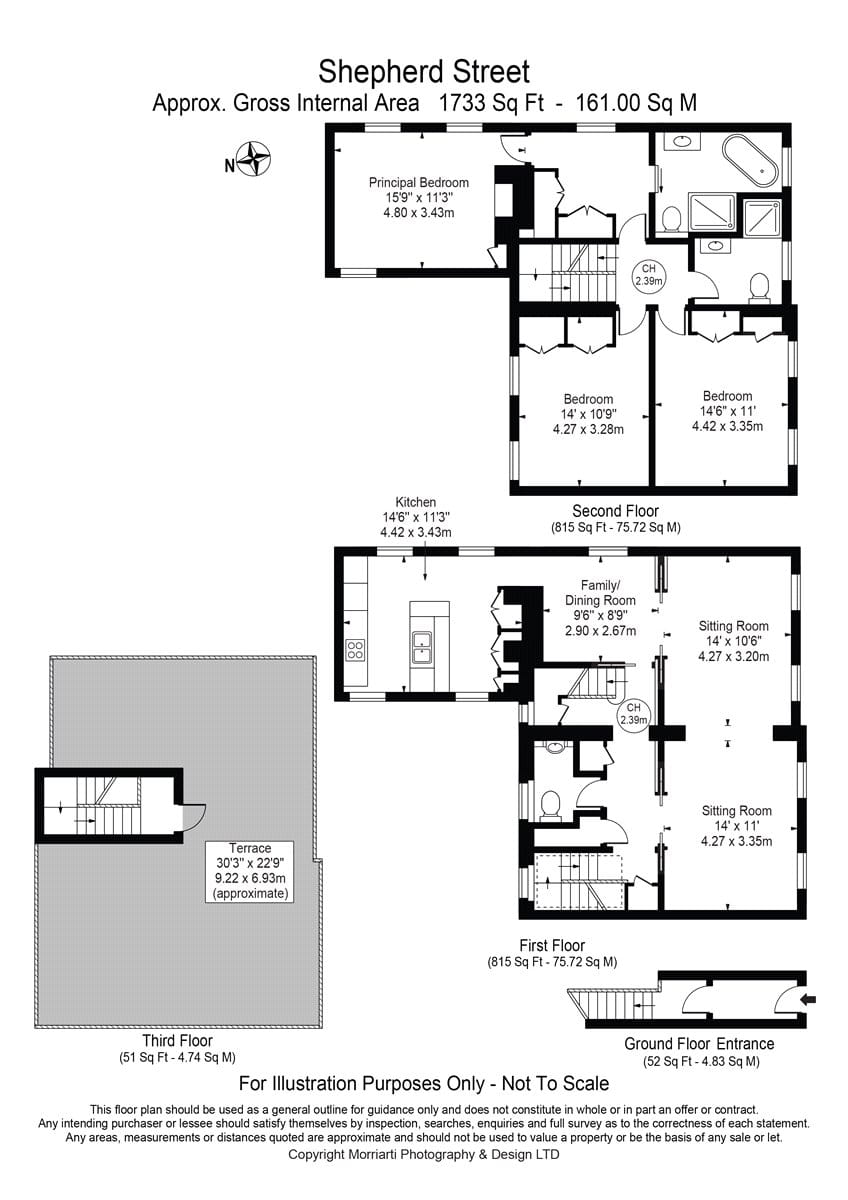
The first level Shepards Street boasts a refined and stylish reception area featuring four windows overlooking the front, enhancing the apartment's open and well-lit ambiance. The corridor leads to the modern and spacious kitchen, featuring marble countertops, custom wooden cabinets, distinctive panelled walls, an island, and an adjacent generously sized dining room, making it the perfect setting for hosting. The property's second level encompasses an opulent master bedroom that includes a separate dressing area complete with custom-fitted wardrobes. Additionally, there is a contemporary en suite bathroom with marble flooring, separate bath and shower. Two more generously proportioned double guest bedrooms are situated on this floor, each benefiting from ample natural light and equipped with built-in wardrobes. An additional shower room. Notably, the property boasts an outstanding private rooftop terrace that spans approximately 30 feet and offers south-facing views. Shepherd Street is situated in the lively Shepherd's Market area of Mayfair, offering residents close access to the expansive Green Park and Hyde Park. This area provides a diverse range of amenities, including boutique shops, art galleries, dining establishments, and exclusive Mayfair private clubs. Additionally, it benefits from the nearby entertainment and shopping options of St. James's and Piccadilly. Convenient transportation options are available, including the Green Park Underground Station (0.3 miles). Please note that all distances are approximate. Additional Information: Tenure: Leasehold (expires 07/03/2143) Ground Rent: £992 per annum (approx) Service Charge: £1,244 per annum (approx) Authority: Westminster City Council (Band G) EPC Rating: Band C Mobile phone coverage and speeds can be checked here: checker.ofcom.org.uk, however, all providers are predicted to have good levels of service inside at this property. Broadband speeds can be checked here: checker.ofcom.org.uk.
Features at a glance
- 3 Bedrooms
- 2 Bathrooms
- Roof Terrace
- Residents Parking
Leasehold
Location
Key property details
- Accessibility
- Ask agent
- Parking
- Yes
- Garden
- Yes
- Lease expiry
- 07 March 2143
- Carter Jonas reference
- MAY230012
Description
The first level Shepards Street boasts a refined and stylish reception area featuring four windows overlooking the front, enhancing the apartment's open and well-lit ambiance. The corridor leads to the modern and spacious kitchen, featuring marble countertops, custom wooden cabinets, distinctive panelled walls, an island, and an adjacent generously sized dining room, making it the perfect setting for hosting. The property's second level encompasses an opulent master bedroom that includes a separate dressing area complete with custom-fitted wardrobes. Additionally, there is a contemporary en suite bathroom with marble flooring, separate bath and shower. Two more generously proportioned double guest bedrooms are situated on this floor, each benefiting from ample natural light and equipped with built-in wardrobes. An additional shower room. Notably, the property boasts an outstanding private rooftop terrace that spans approximately 30 feet and offers south-facing views. Shepherd Street is situated in the lively Shepherd's Market area of Mayfair, offering residents close access to the expansive Green Park and Hyde Park. This area provides a diverse range of amenities, including boutique shops, art galleries, dining establishments, and exclusive Mayfair private clubs. Additionally, it benefits from the nearby entertainment and shopping options of St. James's and Piccadilly. Convenient transportation options are available, including the Green Park Underground Station (0.3 miles). Please note that all distances are approximate. Additional Information: Tenure: Leasehold (expires 07/03/2143) Ground Rent: £992 per annum (approx) Service Charge: £1,244 per annum (approx) Authority: Westminster City Council (Band G) EPC Rating: Band C Mobile phone coverage and speeds can be checked here: checker.ofcom.org.uk, however, all providers are predicted to have good levels of service inside at this property. Broadband speeds can be checked here: checker.ofcom.org.uk.
Features at a glance
- 3 Bedrooms
- 2 Bathrooms
- Roof Terrace
- Residents Parking
Leasehold
Location
Key property details
- Accessibility
- Ask agent
- Parking
- Yes
- Garden
- Yes
- Lease expiry
- 07 March 2143
- Carter Jonas reference
- MAY230012
