Stoke Hill, Stoke St. Michael, BA3
Description
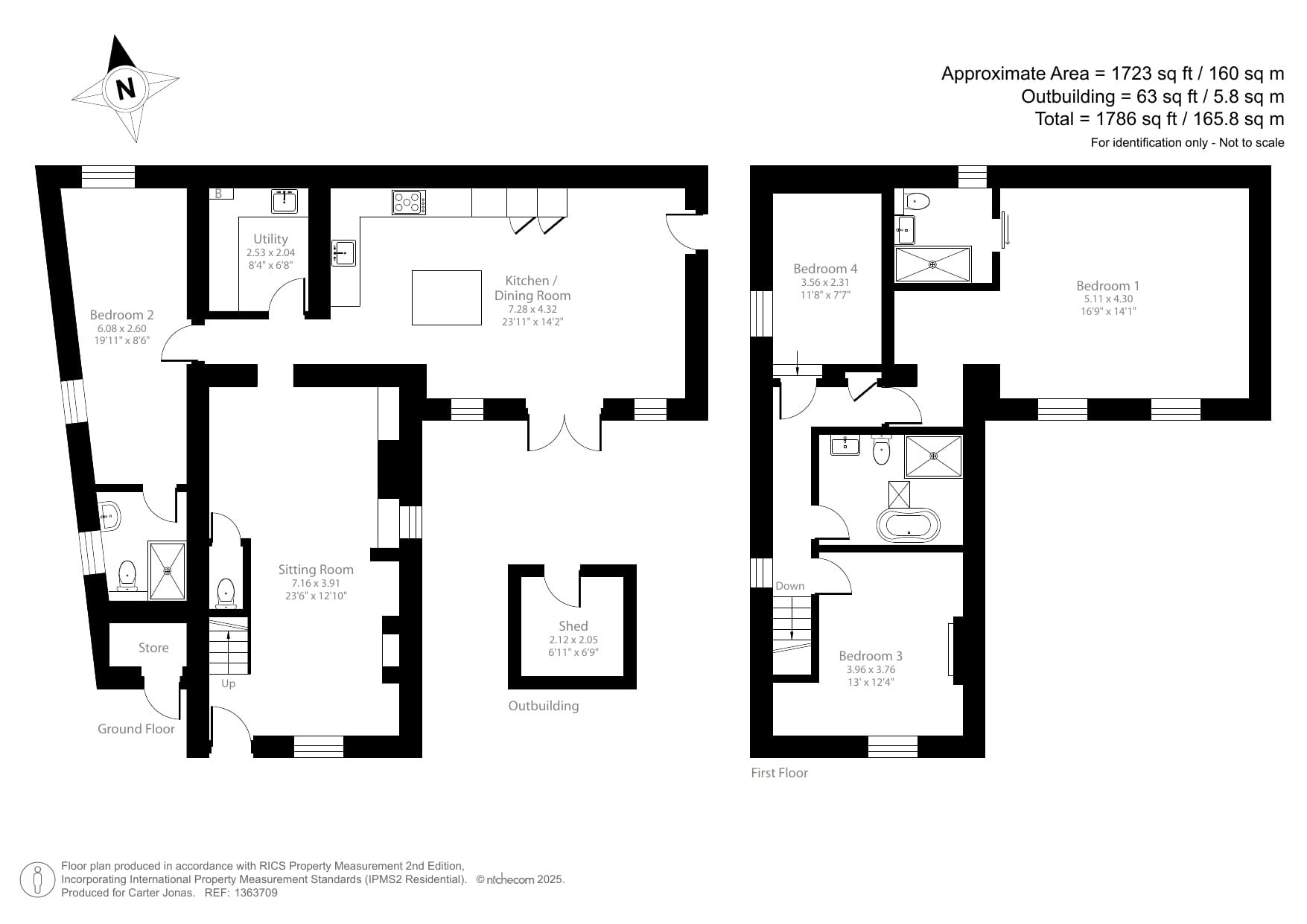
Sitting room • Kitchen/dining room • Main bedroom with en suite shower room • Guest bedroom with en suite shower room • Two further bedrooms • Family bathroom • Utility Large south facing garden • Large parking area • Storage shed Description Fair View is a period stone built detached house that has undergone a full programme of building works, adding a substantial cedar clad side extension, creating a stunning modern interior with accommodation across two floors. A large sitting room sits in the original part of the house, having an exposed local stone wall to one side with a wood burning stove installed. It has wide oak boards to the floor, which leads through to the state of the art kitchen/dining/family room. The kitchen is in the newly added extension, having fitted bespoke hand built wooden storage cabinets with granite worktops and a large central island, above which is the recessed ceiling with downlighters. Large glazed doors spill onto the south facing garden. At the far end of the house is a cosy guest bedroom with an en suite shower room, and next to this is a utility room. The first floor has a substantial principal bedroom, overlooking the garden and having an en suite shower room, with double shower cubicle. There are two further bedrooms and a superb modern family bathroom. A shared driveway with the neighbour leads to a large parking area. The gardens are to the front of the property, being level, south facing and enclosed by fencing and hedgerow. A large paved patio sits at the side of the house and opens onto a lawn garden with a mature copper beech tree at the end. Situation The village of Stoke St Micheal has many amenities within walking distance from the property including the Knatchbull Arms, convenience store with post office, an active church and village hall which offers activities for all the family. As well as a playground and playing field there are many scenic countryside walks to enjoy. Completing the village is a primary school and nursery. The village has great links to surrounding towns and is approx. 8 miles from Frome, which has plenty of independent shops, cafes and restaurants to visit. Stoke St Michael is well placed with easy access to both Frome and Wells, each offering exciting venues, shops and restaurants. The exclusive Babington House is located just 5 miles away, while Hauser and Wirth – garden, gallery and restaurant - is under 10 miles away, with Bruton high street to wander around too. The Newt is just the other side of Bruton, which is an award winning hotel with internationally known gardens with restaurants. Lastly, the city of Bath has a wealth of history to enjoy and is approx.14miles from Stoke St Micheal. Additional Information Tenure: Freehold Services: All mains services are connected. Local Authority: Bath and North East Somerset Council. Council Tax: Band D EPC: Band C Directions: From the pub in the centre of the village, proceed up Stoke Hill and the drive is located after a short distance on the right hand side of the lane. What Three Words for start of driveway: https://what3words.com/cleansed.point.sound
Location
Key property details
- Property Style
- Detached
- Accessibility
- Ask agent
- Parking
- Yes
- Garden
- Yes
- Carter Jonas reference
- BTH250192
Description
Sitting room • Kitchen/dining room • Main bedroom with en suite shower room • Guest bedroom with en suite shower room • Two further bedrooms • Family bathroom • Utility Large south facing garden • Large parking area • Storage shed Description Fair View is a period stone built detached house that has undergone a full programme of building works, adding a substantial cedar clad side extension, creating a stunning modern interior with accommodation across two floors. A large sitting room sits in the original part of the house, having an exposed local stone wall to one side with a wood burning stove installed. It has wide oak boards to the floor, which leads through to the state of the art kitchen/dining/family room. The kitchen is in the newly added extension, having fitted bespoke hand built wooden storage cabinets with granite worktops and a large central island, above which is the recessed ceiling with downlighters. Large glazed doors spill onto the south facing garden. At the far end of the house is a cosy guest bedroom with an en suite shower room, and next to this is a utility room. The first floor has a substantial principal bedroom, overlooking the garden and having an en suite shower room, with double shower cubicle. There are two further bedrooms and a superb modern family bathroom. A shared driveway with the neighbour leads to a large parking area. The gardens are to the front of the property, being level, south facing and enclosed by fencing and hedgerow. A large paved patio sits at the side of the house and opens onto a lawn garden with a mature copper beech tree at the end. Situation The village of Stoke St Micheal has many amenities within walking distance from the property including the Knatchbull Arms, convenience store with post office, an active church and village hall which offers activities for all the family. As well as a playground and playing field there are many scenic countryside walks to enjoy. Completing the village is a primary school and nursery. The village has great links to surrounding towns and is approx. 8 miles from Frome, which has plenty of independent shops, cafes and restaurants to visit. Stoke St Michael is well placed with easy access to both Frome and Wells, each offering exciting venues, shops and restaurants. The exclusive Babington House is located just 5 miles away, while Hauser and Wirth – garden, gallery and restaurant - is under 10 miles away, with Bruton high street to wander around too. The Newt is just the other side of Bruton, which is an award winning hotel with internationally known gardens with restaurants. Lastly, the city of Bath has a wealth of history to enjoy and is approx.14miles from Stoke St Micheal. Additional Information Tenure: Freehold Services: All mains services are connected. Local Authority: Bath and North East Somerset Council. Council Tax: Band D EPC: Band C Directions: From the pub in the centre of the village, proceed up Stoke Hill and the drive is located after a short distance on the right hand side of the lane. What Three Words for start of driveway: https://what3words.com/cleansed.point.sound
Location
Key property details
- Property Style
- Detached
- Accessibility
- Ask agent
- Parking
- Yes
- Garden
- Yes
- Carter Jonas reference
- BTH250192
