Main Street, Sutton Cheney, CV13
Description
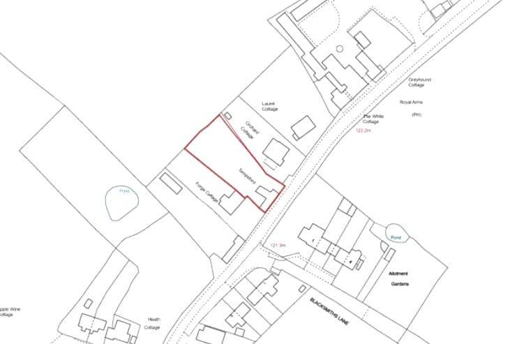
A detached cottage standing in 0.33 acres backing onto countryside in a popular village location. The property has four bedrooms, two reception rooms and kitchen breakfast room. Currently owned by the estate, in a village where properties rarely become available, this pretty cottage offers good accommodation, balanced by large gardens and parking. THE PROPERTY Sitting room comprising an open fireplace with brick surround, and exposed ceiling beam work. Dining room with Inglenook style fireplace with red brick surround and mantelpiece. Kitchen breakfast room with a range of cabinets, breakfast island and AGA range (not presently working). Utility/Boot room with sink and door to cloakroom. The principal bedroom is a double room, bedroom two us a double room with part vaulted ceiling. Bedroom three is a small double room with a part vaulted ceiling. Bedroom four has a fireplace (blocked). House bathroom comprising bath with shower over, wash basin and toilet. OUTSIDE Entered through a five-bar vehicular gate onto a gravel driveway, providing parking. Garage. The gardens back onto countryside and has a large lawn area, and patio perfect for entertaining. FURTHER INFORMATION Mains electricity, drainage, and water Oil central heating EPC rating: E Council tax band: E Mobile phone coverage and speeds can be checked here: checker.ofcom.org.uk. - We understand signal is good outdoor on some networks Broadband speeds can be checked here: checker.ofcom.org.uk. - We understand superfast broadband is available
Features at a glance
- Detached Cottage
- Four Bedrooms
- Gardens Backing Onto Countryside
- In All Around 0.33 Acres
- OPEN HOUSE - Saturday 23 May 1.00pm - Please register in advance
Location
Key property details
- Property Style
- Detached
- Accessibility
- Ask agent
- Parking
- Yes
- Garden
- Yes
- Carter Jonas reference
- OXF260106
Description
A detached cottage standing in 0.33 acres backing onto countryside in a popular village location. The property has four bedrooms, two reception rooms and kitchen breakfast room. Currently owned by the estate, in a village where properties rarely become available, this pretty cottage offers good accommodation, balanced by large gardens and parking. THE PROPERTY Sitting room comprising an open fireplace with brick surround, and exposed ceiling beam work. Dining room with Inglenook style fireplace with red brick surround and mantelpiece. Kitchen breakfast room with a range of cabinets, breakfast island and AGA range (not presently working). Utility/Boot room with sink and door to cloakroom. The principal bedroom is a double room, bedroom two us a double room with part vaulted ceiling. Bedroom three is a small double room with a part vaulted ceiling. Bedroom four has a fireplace (blocked). House bathroom comprising bath with shower over, wash basin and toilet. OUTSIDE Entered through a five-bar vehicular gate onto a gravel driveway, providing parking. Garage. The gardens back onto countryside and has a large lawn area, and patio perfect for entertaining. FURTHER INFORMATION Mains electricity, drainage, and water Oil central heating EPC rating: E Council tax band: E Mobile phone coverage and speeds can be checked here: checker.ofcom.org.uk. - We understand signal is good outdoor on some networks Broadband speeds can be checked here: checker.ofcom.org.uk. - We understand superfast broadband is available
Features at a glance
- Detached Cottage
- Four Bedrooms
- Gardens Backing Onto Countryside
- In All Around 0.33 Acres
- OPEN HOUSE - Saturday 23 May 1.00pm - Please register in advance
Location
Key property details
- Property Style
- Detached
- Accessibility
- Ask agent
- Parking
- Yes
- Garden
- Yes
- Carter Jonas reference
- OXF260106
