Ynys, Talsarnau, LL47
Description
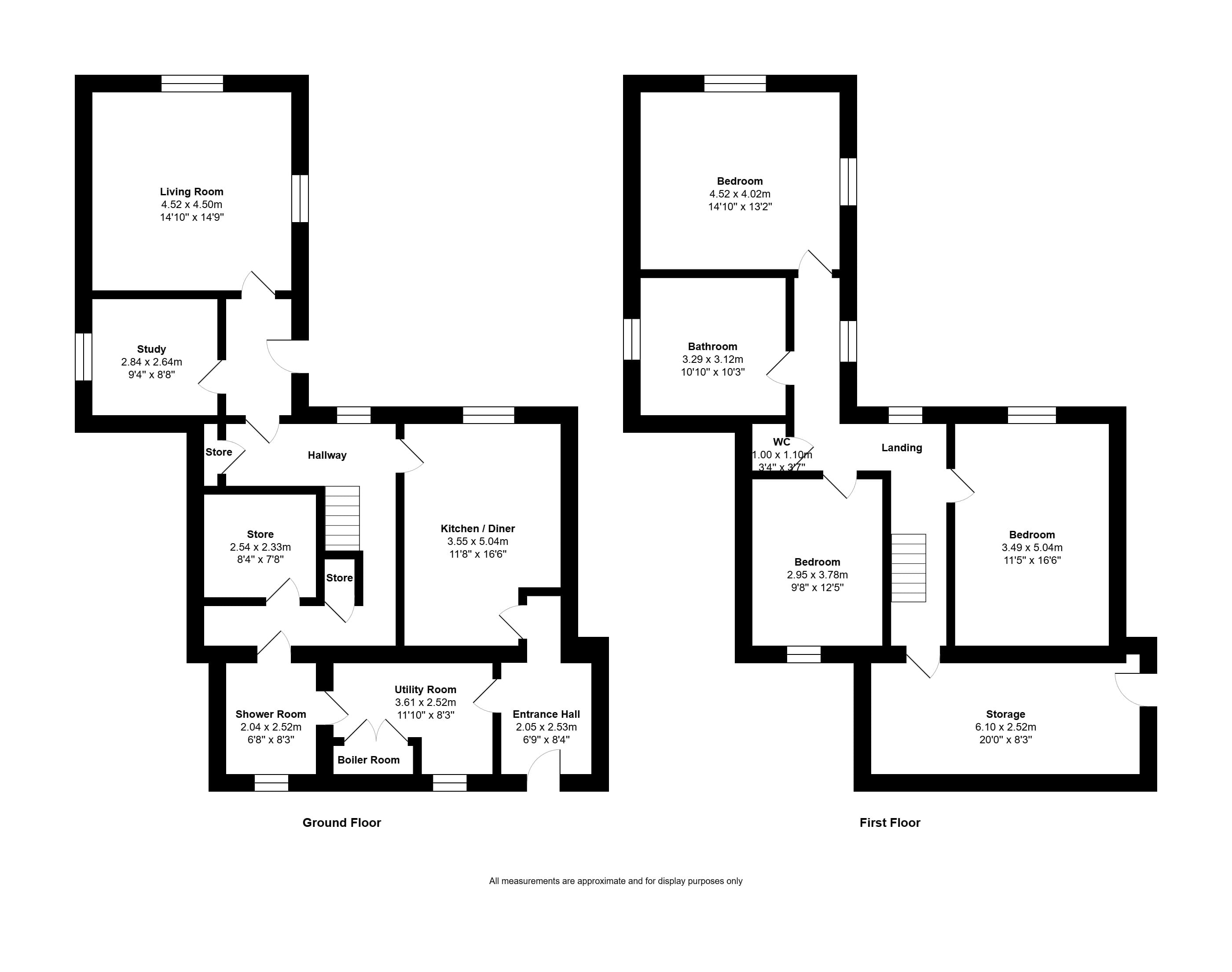
A delightful former farmhouse situated close to the historic coastal town of Harlech and located within the Eryri National Park. A unique opportunity to purchase an attractive rural property with a combination of estuary and mountain views. Cefn Gwyn enjoys a peaceful position whilst still being within a distance of the UNESCO world heritage town of Harlech. For sale by private treaty. Property Cefn Gwyn is a charming rural property with a vast amount of character that will charm all visitors. Set over three floors, the internal space is finished with an eye to detail and to an exceptionally high standard with a mixture of modern décor whilst retaining many traditional features. The ground floor provides spacious living throughout with a large space complemented by a wood burning stove, a fully equipped kitchen/diner, also with a wood burning stove, a spacious utility room with a sink, washing machine and dryer and a shower room. The first floor hosts three large bedrooms that all enjoy plenty of natural light and there is a large bathroom comprising of a bath with handheld shower and a separate walk-in shower, and a cloakroom with basin and WC. Externally there is a fully enclosed garden with views over to Portmeirion. Cefn Gwyn is perfect for outside living with a real sense of splendid isolation. The terrace will be a delight to families and equally suited to outside entertaining with friends. Location The property occupies a unique and tranquil position in the region of 2.5 miles from the village of Talsarnau and just three miles from the historic town of Harlech. It benefits from access to the National Rail Network from either Harlech or Ty Gwyn station. The coastal towns of Porthmadog (8 miles) and Barmouth (13 miles) are within easy reach and provide a more comprehensive range of leisure and shopping facilities. Amenities Set within the heart of the Eryri National Park, Harlech is one of Wales’ most scenic and historically rich locations with its UNESCO World Heritage-listed castle. The area boasts golden sandy beaches and picturesque coastal and mountain walks, which can be enjoyed throughout the year. Harlech benefits from a wealth of essential amenities including a bakery, grocers, pharmacy, cafés, restaurants, and bars. It also benefits from the availability of both primary and secondary schools, as well as a local health centre. It is also home to the prestigious Royal St David’s Golf Club, one of the finest links courses attracting golfers from across the country. With its combination of heritage and natural beauty it presents an exciting proposition for buyers looking to purchase in a truly special part of Wales. Method of Sale The property is offered for sale by private treaty. Tenure & Possession Freehold with vacant possession upon completion. Designations The property is situated within the Eryri National Park. Services Electricity – Mains Water – Mains Drainage – Private Septic Tank. Heating – Oil fired central heating Broadband – Standard available The property is sold subject to all reserved rights. EPC Ratings E (43) Local Authority Cyngor Gwynedd www.gwynedd.llyw.cymru Viewings Strictly by appointment with the agents. /// romantic.comfort.puffed
Location
Key property details
- Property Style
- Detached
- Special Features
- Outbuildings, Character property
- Accessibility
- Ask agent
- Parking
- Ask agent
- Garden
- Yes
- Carter Jonas reference
- BAN260003
Description
A delightful former farmhouse situated close to the historic coastal town of Harlech and located within the Eryri National Park. A unique opportunity to purchase an attractive rural property with a combination of estuary and mountain views. Cefn Gwyn enjoys a peaceful position whilst still being within a distance of the UNESCO world heritage town of Harlech. For sale by private treaty. Property Cefn Gwyn is a charming rural property with a vast amount of character that will charm all visitors. Set over three floors, the internal space is finished with an eye to detail and to an exceptionally high standard with a mixture of modern décor whilst retaining many traditional features. The ground floor provides spacious living throughout with a large space complemented by a wood burning stove, a fully equipped kitchen/diner, also with a wood burning stove, a spacious utility room with a sink, washing machine and dryer and a shower room. The first floor hosts three large bedrooms that all enjoy plenty of natural light and there is a large bathroom comprising of a bath with handheld shower and a separate walk-in shower, and a cloakroom with basin and WC. Externally there is a fully enclosed garden with views over to Portmeirion. Cefn Gwyn is perfect for outside living with a real sense of splendid isolation. The terrace will be a delight to families and equally suited to outside entertaining with friends. Location The property occupies a unique and tranquil position in the region of 2.5 miles from the village of Talsarnau and just three miles from the historic town of Harlech. It benefits from access to the National Rail Network from either Harlech or Ty Gwyn station. The coastal towns of Porthmadog (8 miles) and Barmouth (13 miles) are within easy reach and provide a more comprehensive range of leisure and shopping facilities. Amenities Set within the heart of the Eryri National Park, Harlech is one of Wales’ most scenic and historically rich locations with its UNESCO World Heritage-listed castle. The area boasts golden sandy beaches and picturesque coastal and mountain walks, which can be enjoyed throughout the year. Harlech benefits from a wealth of essential amenities including a bakery, grocers, pharmacy, cafés, restaurants, and bars. It also benefits from the availability of both primary and secondary schools, as well as a local health centre. It is also home to the prestigious Royal St David’s Golf Club, one of the finest links courses attracting golfers from across the country. With its combination of heritage and natural beauty it presents an exciting proposition for buyers looking to purchase in a truly special part of Wales. Method of Sale The property is offered for sale by private treaty. Tenure & Possession Freehold with vacant possession upon completion. Designations The property is situated within the Eryri National Park. Services Electricity – Mains Water – Mains Drainage – Private Septic Tank. Heating – Oil fired central heating Broadband – Standard available The property is sold subject to all reserved rights. EPC Ratings E (43) Local Authority Cyngor Gwynedd www.gwynedd.llyw.cymru Viewings Strictly by appointment with the agents. /// romantic.comfort.puffed
Location
Key property details
- Property Style
- Detached
- Special Features
- Outbuildings, Character property
- Accessibility
- Ask agent
- Parking
- Ask agent
- Garden
- Yes
- Carter Jonas reference
- BAN260003