Ynys, Talsarnau, LL47
Description
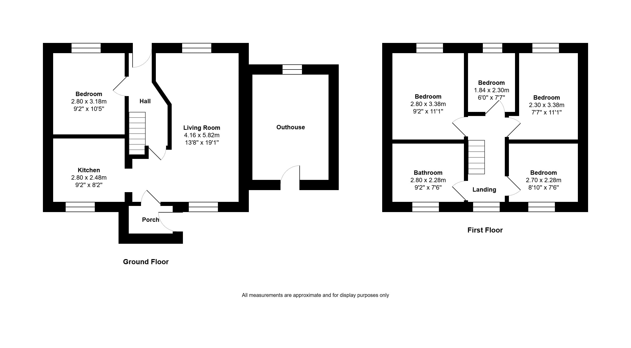
A charming cottage situated close to the historic coastal town of Harlech and located within the Eryri National Park. Glan Meirion is situated on the edge of Traeth Bach on the Dwyryd Estuary which boasts stunning views of Eryri mountains and the ever changing tidal estuary. For sale by private treaty. Property Glan Meirion is an attractive detached cottage offering comfortable living accommodation in a beautiful and tranquil setting. Set over two floors, the property has been finished to a high standard, combining modern decor with charming traditional features. The ground floor includes a welcoming porch that opens into a cosy dining and living area, complemented by a woodburning stove, with the kitchen positioned to the side. Beyond this is a further private and comfortable living room. Upstairs, the first floor comprises of four bedrooms which enjoy plenty of natural light along with a family bathroom. Externally, the property benefits from fully enclosed front and rear gardens that enjoy views across the Dwyryd Estuary. Glan Meirion lends itself perfectly to outdoor living and is ideally suited for entertaining family and friends. Location The property occupies a unique coastal position located close to the idyllic hamlet of Ynys, well known for its beautiful estuary scenery and wildlife. Glan Meirion is situated approximately 4 miles from the historic coastal town of Harlech. It benefits from access to the National Rail Network from either Harlech or Ty Gwyn station. The coastal towns of Porthmadog (7.5 miles) and Barmouth (13.5 miles) are within easy reach and provide a more comprehensive range of leisure and shopping facilities. Amenities Set within the heart of Eryri National Park, Harlech is widely regarded as one of Wales’ most scenic and historically significant locations. The town is renowned for its UNESCO World Heritage listed castle, dramatically sited above the coastline, with the Rhinog mountain range providing a striking natural backdrop. The area boasts golden sandy beaches and picturesque coastal and mountain walks which can be enjoyed throughout the year. Harlech benefits from a wealth of essential amenities including a bakery, grocers, pharmacy, cafés, restaurants, and bars. It also benefits from the availability of both primary and secondary schools, as well as a local health centre. It is also home to the prestigious Royal St David’s Golf Club, one of the finest links courses attracting golfers from across the country. With its combination of heritage and natural beauty it presents an exciting proposition for buyers looking to purchase in a truly special part of Wales. Method of Sale The property is offered for sale by private treaty. Tenure & Possession Freehold with vacant possession upon completion. Designations The property is situated within the Eryri National Park. Services Electricity – Mains. Water – Mains. Drainage – Private Septic Tank. Heating – Oil fired central heating Broadband – Standard available. Wayleaves, Easements & Rights of Way The property is sold subject to all the benefit of all wayleaves, easements and rights of way, whether mentioned in these particulars or not. EPC Ratings E (45) Local Authority Cyngor Gwynedd www.gwynedd.llyw.cymru Parc Cenedlaethol Eryri National Park www.eryri.llyw.cymru Viewings Strictly by appointment with the agents. What3words /// scrub.autumn.spans
Location
Key property details
- Additional property type(s)
- Cottage
- Property Style
- Detached
- Special Features
- Character property
- Accessibility
- Ask agent
- Parking
- Yes
- Garden
- Yes
- Carter Jonas reference
- BAN260006
Description
A charming cottage situated close to the historic coastal town of Harlech and located within the Eryri National Park. Glan Meirion is situated on the edge of Traeth Bach on the Dwyryd Estuary which boasts stunning views of Eryri mountains and the ever changing tidal estuary. For sale by private treaty. Property Glan Meirion is an attractive detached cottage offering comfortable living accommodation in a beautiful and tranquil setting. Set over two floors, the property has been finished to a high standard, combining modern decor with charming traditional features. The ground floor includes a welcoming porch that opens into a cosy dining and living area, complemented by a woodburning stove, with the kitchen positioned to the side. Beyond this is a further private and comfortable living room. Upstairs, the first floor comprises of four bedrooms which enjoy plenty of natural light along with a family bathroom. Externally, the property benefits from fully enclosed front and rear gardens that enjoy views across the Dwyryd Estuary. Glan Meirion lends itself perfectly to outdoor living and is ideally suited for entertaining family and friends. Location The property occupies a unique coastal position located close to the idyllic hamlet of Ynys, well known for its beautiful estuary scenery and wildlife. Glan Meirion is situated approximately 4 miles from the historic coastal town of Harlech. It benefits from access to the National Rail Network from either Harlech or Ty Gwyn station. The coastal towns of Porthmadog (7.5 miles) and Barmouth (13.5 miles) are within easy reach and provide a more comprehensive range of leisure and shopping facilities. Amenities Set within the heart of Eryri National Park, Harlech is widely regarded as one of Wales’ most scenic and historically significant locations. The town is renowned for its UNESCO World Heritage listed castle, dramatically sited above the coastline, with the Rhinog mountain range providing a striking natural backdrop. The area boasts golden sandy beaches and picturesque coastal and mountain walks which can be enjoyed throughout the year. Harlech benefits from a wealth of essential amenities including a bakery, grocers, pharmacy, cafés, restaurants, and bars. It also benefits from the availability of both primary and secondary schools, as well as a local health centre. It is also home to the prestigious Royal St David’s Golf Club, one of the finest links courses attracting golfers from across the country. With its combination of heritage and natural beauty it presents an exciting proposition for buyers looking to purchase in a truly special part of Wales. Method of Sale The property is offered for sale by private treaty. Tenure & Possession Freehold with vacant possession upon completion. Designations The property is situated within the Eryri National Park. Services Electricity – Mains. Water – Mains. Drainage – Private Septic Tank. Heating – Oil fired central heating Broadband – Standard available. Wayleaves, Easements & Rights of Way The property is sold subject to all the benefit of all wayleaves, easements and rights of way, whether mentioned in these particulars or not. EPC Ratings E (45) Local Authority Cyngor Gwynedd www.gwynedd.llyw.cymru Parc Cenedlaethol Eryri National Park www.eryri.llyw.cymru Viewings Strictly by appointment with the agents. What3words /// scrub.autumn.spans
Location
Key property details
- Additional property type(s)
- Cottage
- Property Style
- Detached
- Special Features
- Character property
- Accessibility
- Ask agent
- Parking
- Yes
- Garden
- Yes
- Carter Jonas reference
- BAN260006