Severus Avenue, York YO24

Severus Avenue, York YO24

5 Bedroom | Freehold

Offers over £600,000
York (YRK) 1.2 miles
Poppleton 1.6 miles
Acomb Shops 0.2 miles

A 5 bedroom semi-detached family home offering well-proportioned accommodation, a pretty garden and off street parking.

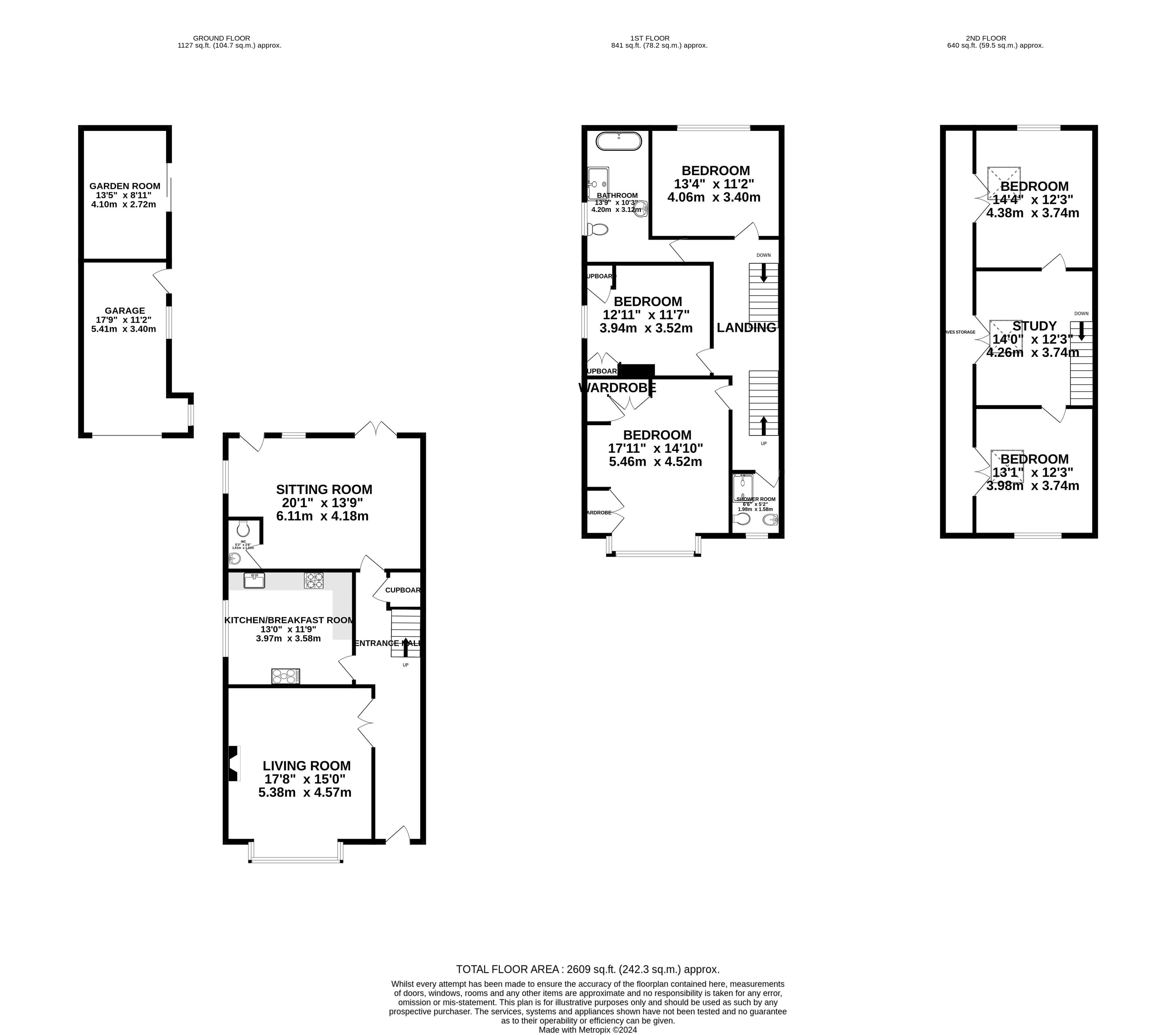
7 Severus Avenue is a 5 bedroom semi-detached property with over 2600 square feet of living space spread over 3 floors, this property offers a spacious and versatile family home which is situated in a popular area on the fringe of the city.

The property was built in the early 1900's by a local builder of attractive clamp bricks with a Tudor style fascia and a two foot high walled fore-courted area. Throughout the house, you will find several period features, including decorative cornicing, feature fireplaces, and stained glass windows. These elements add character and charm to the property, creating a warm and inviting ambiance.

The property has been thoughtfully modernised over the last few years, ensuring it meets the needs of modern family living. The updates have enhanced the functionality and comfort of the house, making it the perfect home for a growing family.

At the rear of the property, you will find a pretty and private garden which is larger than average for the area. Additionally, the house benefits from a garage and a garden room to the rear, which can be used for a variety of purposes, providing versatility and extra space.

Located on the edge of the city of York, Severus Avenue offers easy access to a range of local amenities. York Road, just a short distance away, provides convenient access to shops, cafes, and other essential services. Furthermore, York railway station is approximately 1.5 miles away, offering excellent transportation links to other parts of the country.

The next steps...

Before making an offer on a property you will want to consider your financial situation, your income and outgoings.

Will you finance the purchase of your next property from the sale of an existing property which can put you in a chain, arrange a mortgage through your bank or buy the property outright.

To help you finance your next property purchase, we have a long established relationship with an independent mortgage broker who can discuss your situation with you.

Remember that having a 'mortgage decision in principle' can make you a more attractive buyer when you make an offer on a property. Contact our mortgage advisers for free, no obligation and impartial advice.

Some advantages of a broker are:

  • They do all the legwork for you, working on your behalf with the lender
  • They compare wholesale mortgage rates from a large number of banks and lenders all at once
  • Their wholesale interest rates can be lower than retail (bank branch) interest rates
  • They offer more loan options because they work with numerous banks and lenders
  • They can finance tricky deals because of their knowledge and various lending partners
  • They are typically easier to get in contact with, and are less bureaucratic.

However advantages of working with your bank are:

  • You may be able to build off an existing relationship (and gain discounts if you have a checking or savings account)
  • You may already know the banker who will handle your mortgage
  • Banks may be more accountable than a smaller shop
  • They may offer lower interest rates in some cases
  • Their ability to add mortgage to existing banking profile and make automatic payments from linked account.

When you see a property you are interested in on our website, call us 24/7 to arrange a viewing. Or if you prefer, get in touch via our website and we will call you back to find a time to view the property that suits you.

Once you’ve found a property you want to buy, it’s time to make an offer. A bit of negotiation is to be expected, however don't offer so little that you end up in a lengthy negotiation process, as you might lose the property altogether if someone else makes a higher bid.

If other offers have been made on a property we aren't legally able to tell you what they are, but we may indicate if they were close to the asking price.

If you have a property to sell, why not see how we can help you.

Or if you’re considering letting your property, we can take the stress out of managing your rental, and our award winning lettings team offer a service that can be tailored to your needs.

Combined with nearly 170 years of experience and one of the highest customer satisfaction scores in the industry, Carter Jonas is the perfect property partner.

Why not book a free, no obligation valuation of your property and find out how Carter Jonas can help you make your next move.

Key property details
Property attributes
Semi Detached
Era
Period
Locality
Town/City
Tenure
Freehold
Energy efficiency rating
D
Carter Jonas reference
YOR230283

Suggested properties

Here are a few properties you might like, but within 2 extra miles of your current search

Asking price £360,000
3 bedroom house
Asking price £475,000
2 bedroom bungalow
Asking price £550,000
3 bedroom house
Asking price £1,495,000
6 bedroom house
Asking price £799,999
5 bedroom house
Asking price £1,700,000
5 bedroom house
Asking price £445,000
2 bedroom flat
Asking price £350,000
2 bedroom flat
Offers over £850,000
7 bedroom house
Guide price £500,000
4 bedroom house
Asking price £240,000
1 bedroom flat
Offers over £350,000
2 bedroom flat
Thinking of selling?

Find out what your property is worth