- Let Agreed
Nantwich Road, Minshull Vernon, CW10
Deposit Required
5 weeks rent
Description
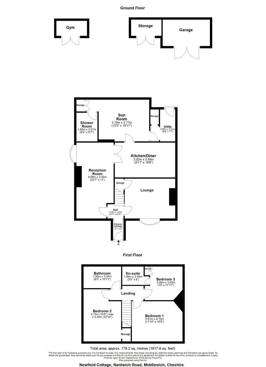
Accommodation comprises - Ground Floor: Living room, dining room, kitchen / diner, guest wc, utility First Floor: Bathroom, Master bedroom with en-suite, 2 bedrooms External: There is a driveway, garden to front and rear, a garden room and workshop. Unfurnished and available now for a 12 month tenancy. Pets considered. No access to loft. There is an integrated oven and hob, but please be advised that no other kitchen/washing appliances are provided. Window dressings are not supplied. Mains electricity, Oil heating, water and drainage. EPC Rating (E). Council Tax Band (E). Please see Cheshire East Council website for current cost. A survey has revealed Asbestos is present at this property, report available on request. Flood Risk – Low Internet & Mobile: Information on availability and speeds can be found at checker.ofcom.org.uk The property is under Phase 2 of the HS2 project, which the Government announced was cancelled in October 2023. Safeguarding in this area has been lifted, however Bill Limits remain in place. If the project were to proceed in this area, the proximity to planned construction is available by request. Please note that this property is let under a Crown Tenancy, which operates under a different legal framework to standard private tenancies. At a rent of £1,600 per calendar month - Holding deposit of 1 weeks’ rent £369 Security deposit of 5 weeks’ rent £1,846
Features at a glance
- Reception room
- 2 Bathrooms
- Dining room
- Kitchen
- Utility
- Driveway
- Garden
Location
Key property details
- Property Style
- Detached
- Accessibility
- Ask agent
- Parking
- Yes
- Garden
- Yes
- Letting type
- Long let
- Minimum tenancy
- 12 months
- Carter Jonas reference
- BML260031
Description
Accommodation comprises - Ground Floor: Living room, dining room, kitchen / diner, guest wc, utility First Floor: Bathroom, Master bedroom with en-suite, 2 bedrooms External: There is a driveway, garden to front and rear, a garden room and workshop. Unfurnished and available now for a 12 month tenancy. Pets considered. No access to loft. There is an integrated oven and hob, but please be advised that no other kitchen/washing appliances are provided. Window dressings are not supplied. Mains electricity, Oil heating, water and drainage. EPC Rating (E). Council Tax Band (E). Please see Cheshire East Council website for current cost. A survey has revealed Asbestos is present at this property, report available on request. Flood Risk – Low Internet & Mobile: Information on availability and speeds can be found at checker.ofcom.org.uk The property is under Phase 2 of the HS2 project, which the Government announced was cancelled in October 2023. Safeguarding in this area has been lifted, however Bill Limits remain in place. If the project were to proceed in this area, the proximity to planned construction is available by request. Please note that this property is let under a Crown Tenancy, which operates under a different legal framework to standard private tenancies. At a rent of £1,600 per calendar month - Holding deposit of 1 weeks’ rent £369 Security deposit of 5 weeks’ rent £1,846
Features at a glance
- Reception room
- 2 Bathrooms
- Dining room
- Kitchen
- Utility
- Driveway
- Garden
Location
Key property details
- Property Style
- Detached
- Accessibility
- Ask agent
- Parking
- Yes
- Garden
- Yes
- Letting type
- Long let
- Minimum tenancy
- 12 months
- Carter Jonas reference
- BML260031
