Lot 2 - Land At Beeford and Foston, Driffield, YO25
Description
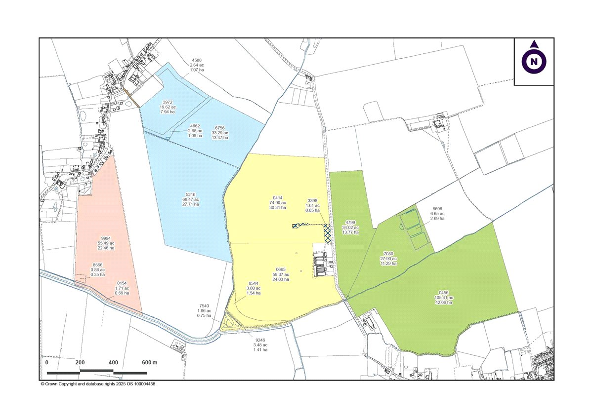
EXPRESSIONS OF INTEREST AND INITIAL OFFERS BY 12 NOON ON FRIDAY 18TH JULY Location The land is situated to the north-west of the village of Beeford and to the east of the village of Foston-on-the-Wolds. The market town of Driffield is situated approximately 9 miles to the west with the popular coastal resort of Bridlington situated approximately 9.5 miles to the north-east. The A165 public highway which runs through Beeford connects Bridlington with the city of Hull. Land Productive block of Grade 2 agricultural land extending in all to approximately 127.06 acres. The land is currently farmed within a combinable cropping rotation to include vining peas, however, the land has also historically grown root crops. The land is classed as being Grade 2 under the former MAFF Land Classification Series. The underlying soil type is classed as being part of the Holderness soil series which is described as a slowly permeable fine loamy soil being well suited to cereals. Lot 2 is accessed over a private right of way as shaded brown on the sale plan which connects the land with the public highway. The land benefits from a well-maintained drainage scheme which outfalls to Old Howe and Pitwherry Drains. Drainage rates are payable to Beverley and North Holderness IDB. From Old Howe Drain which splits Lots 2 and 3, the land rises from approximately 5 metres above sea level to 15 metres above sea level at Foston-on-the-Wolds. A reinforced concrete bridge (approx. 6 metres wide) over Old Howe drain connects Lots 2 and 3. Method of Sale The property is offered for sale by private treaty being one of 4 lots. The vendors reserve the right to conclude the sale by any other means at their discretion. If you have downloaded these particulars, please register your interest with the selling agent. Tenure & Possession The freehold of the Property is offered for sale. The vendor currently operates a contract farming agreement with a local farmer and vacant possession will be provided upon completion of the sale. Basic Payment Scheme The land has been registered on the Rural Land Register and all de-linked payments will be retained by the Vendor. Environmental Schemes There are no environmental schemes pertaining to the land. Designations The land is situated within a surface water Nitrate Vulnerable Zone (NVZ). Holdover The Vendor reserves the right of holdover for the purpose of harvesting crops and straw clearance until 30th September 2025. Ingoing In addition to the purchase price, the Purchaser will be required to pay for any growing crops, including cultivations, seeds, fertilisers, sprays, lime, new leys and acts of husbandry at cost or market value (whichever is higher) where applicable. Drainage The land is all drained with drainage rates payable to Beverley and North Holderness Internal Drainage Board (IDB). Wayleaves, Easements & Rights of Way The land is sold subject to and with the benefits of all rights of way, water drainage, water courses and other easements and rights of adjoining owners (if any) affecting the same and all existing and proposed wayleaves and other matters registered by any competent authority subject to statute. A public footpath transects Lots 2 and 3 in an east/west direction connecting the village of Foston-on-the-Wolds with Foston Lane. Electrical apparatus transect Lots 1 and 2 and are subject to the requisite wayleave agreements. A private right of way over the access track shaded brown will be granted in favour of Lot 2. Health & Safety Parties are reminded to be as vigilant as possible when making an inspection and be aware of potential hazards including open ditches and drains. Parties viewing the property do so, entirely at their own risk. VAT Any prices quoted are exclusive of VAT. In the event that the sale of the property or any part of it or any right attached to it becomes a chargeable supply for the purposes of VAT, such tax will be payable in addition to the purchase price. Sporting Timber & Mineral Rights The sporting and timber rights are included in the sale in so far as they are owned. Mineral Rights The mineral rights are included in the sale in so far as they are owned. Local Authority East Riding of Yorkshire www.eastriding.gov.uk Viewings Parties are permitted to view the land on foot and during reasonable daylight hours. Directions From Driffield, travel south-east on the B1249. For Lots 1 and 2, turn left onto Cruckley Lane signposted Foston and proceed into the village. Access to Lot 1 is on the right hand side next to Foston Nurseries. Access to Lot 2 is on the right hand side over a loose gravel driveway next to St Andrews Cemetary. What3Words Lot 2 – ///dissolves.proudest.mango
Location
Key property details
- Accessibility
- Ask agent
- Parking
- Ask agent
- Garden
- No
- Carter Jonas reference
- HGT250016
Description
EXPRESSIONS OF INTEREST AND INITIAL OFFERS BY 12 NOON ON FRIDAY 18TH JULY Location The land is situated to the north-west of the village of Beeford and to the east of the village of Foston-on-the-Wolds. The market town of Driffield is situated approximately 9 miles to the west with the popular coastal resort of Bridlington situated approximately 9.5 miles to the north-east. The A165 public highway which runs through Beeford connects Bridlington with the city of Hull. Land Productive block of Grade 2 agricultural land extending in all to approximately 127.06 acres. The land is currently farmed within a combinable cropping rotation to include vining peas, however, the land has also historically grown root crops. The land is classed as being Grade 2 under the former MAFF Land Classification Series. The underlying soil type is classed as being part of the Holderness soil series which is described as a slowly permeable fine loamy soil being well suited to cereals. Lot 2 is accessed over a private right of way as shaded brown on the sale plan which connects the land with the public highway. The land benefits from a well-maintained drainage scheme which outfalls to Old Howe and Pitwherry Drains. Drainage rates are payable to Beverley and North Holderness IDB. From Old Howe Drain which splits Lots 2 and 3, the land rises from approximately 5 metres above sea level to 15 metres above sea level at Foston-on-the-Wolds. A reinforced concrete bridge (approx. 6 metres wide) over Old Howe drain connects Lots 2 and 3. Method of Sale The property is offered for sale by private treaty being one of 4 lots. The vendors reserve the right to conclude the sale by any other means at their discretion. If you have downloaded these particulars, please register your interest with the selling agent. Tenure & Possession The freehold of the Property is offered for sale. The vendor currently operates a contract farming agreement with a local farmer and vacant possession will be provided upon completion of the sale. Basic Payment Scheme The land has been registered on the Rural Land Register and all de-linked payments will be retained by the Vendor. Environmental Schemes There are no environmental schemes pertaining to the land. Designations The land is situated within a surface water Nitrate Vulnerable Zone (NVZ). Holdover The Vendor reserves the right of holdover for the purpose of harvesting crops and straw clearance until 30th September 2025. Ingoing In addition to the purchase price, the Purchaser will be required to pay for any growing crops, including cultivations, seeds, fertilisers, sprays, lime, new leys and acts of husbandry at cost or market value (whichever is higher) where applicable. Drainage The land is all drained with drainage rates payable to Beverley and North Holderness Internal Drainage Board (IDB). Wayleaves, Easements & Rights of Way The land is sold subject to and with the benefits of all rights of way, water drainage, water courses and other easements and rights of adjoining owners (if any) affecting the same and all existing and proposed wayleaves and other matters registered by any competent authority subject to statute. A public footpath transects Lots 2 and 3 in an east/west direction connecting the village of Foston-on-the-Wolds with Foston Lane. Electrical apparatus transect Lots 1 and 2 and are subject to the requisite wayleave agreements. A private right of way over the access track shaded brown will be granted in favour of Lot 2. Health & Safety Parties are reminded to be as vigilant as possible when making an inspection and be aware of potential hazards including open ditches and drains. Parties viewing the property do so, entirely at their own risk. VAT Any prices quoted are exclusive of VAT. In the event that the sale of the property or any part of it or any right attached to it becomes a chargeable supply for the purposes of VAT, such tax will be payable in addition to the purchase price. Sporting Timber & Mineral Rights The sporting and timber rights are included in the sale in so far as they are owned. Mineral Rights The mineral rights are included in the sale in so far as they are owned. Local Authority East Riding of Yorkshire www.eastriding.gov.uk Viewings Parties are permitted to view the land on foot and during reasonable daylight hours. Directions From Driffield, travel south-east on the B1249. For Lots 1 and 2, turn left onto Cruckley Lane signposted Foston and proceed into the village. Access to Lot 1 is on the right hand side next to Foston Nurseries. Access to Lot 2 is on the right hand side over a loose gravel driveway next to St Andrews Cemetary. What3Words Lot 2 – ///dissolves.proudest.mango
Location
Key property details
- Accessibility
- Ask agent
- Parking
- Ask agent
- Garden
- No
- Carter Jonas reference
- HGT250016