Chantry Barn, Bridgwater, TA5
Description
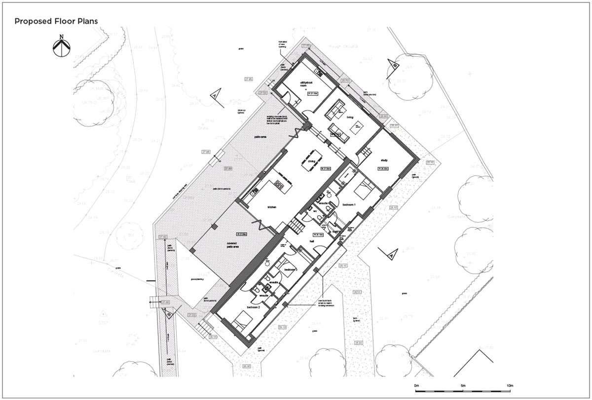
Chantry Barn, Bridgwater, Somerset, TA5 2AD A substantial barn for conversion to a dwelling. Chantry Barn comprises an impressive stone, brick and tile building with permission for conversion to a three/four-bedroom dwelling, together with a semi-detached stone, block, and tile building for use as a workshop/store, but with potential to provide further ancillary accommodation if desired. In all extending to 0.64 of an acre. For sale by private treaty. Location Chantry Barn occupies a peaceful setting with frontage to the adjoining lane. The property is situated at the foot of the Quantock Hills, which is designated as a National Landscape and offers numerous walking and riding opportunities together with far reaching views. The property benefits from excellent access with the M5 motorway at North Petherton (Junction 24) providing easy access to Taunton, Exeter, and Bristol and a train service from Taunton offers a fast train service to arrive at London Paddington within under two hours. The local towns of Bridgwater and North Petherton offer an excellent range of shopping facilities and services. The Property The barn comprises a substantial stone, brick, and tile building with permission for conversion to a three/four-bedroom detached dwelling. In addition, there is a semi-detached stone, block, and tile building for use as a workshop/store, but with potential to provide further ancillary accommodation if desired, subject to obtaining the necessary consent. Outside, the barn is set within a good-sized plot with ample space for a large garden and parking area, with a semi-detached stone, block and tile workshop/garage building off the entrance drive which has been re-roofed and partially re-built recently. Method of Sale The property is offered for sale by private treaty with a guide price of £350,000. Tenure & Possession The freehold of the property is offered for sale with vacant possession available upon completion. Planning Planning permission and listed building consent was granted in 2022 for the change of use and conversion of the barn to a detached dwelling and garage/workshop together with the formation of a parking area on the site of an agricultural building (to be demolished). The planning application reference number is 37/22/00002. The vendors have commenced work by removing a building on the planning site, which has been confirmed by the Planning Officer. Planning permission was previously granted under application 37/18/00078 for the conversion of the barn into two no. dwellings and garaging. This provided for a larger area of accommodation from the barn. The barn is grade II listed within the curtilage of the neighbouring property known as The Chantry, for which there are the usual rights to maintain the neighbouring buildings on the boundary of the property. Health & Safety Potential purchasers should take particular care when inspecting the site. The property currently comprises a redundant barn within a working farmstead with many potentially uneven and steep ground surfaces. Potential purchasers should be mindful of potentially sudden movements from livestock which may be present and machinery which may be operating at the time of inspection. Services The successful purchaser will need to establish new service connections for the property. Mains water and electricity appear to be available in the road adjoining the southern boundary. A package treatment plant will need to be installed by the purchaser. The vendor will grant the relevant easement for a discharge to the ditch within their retained land, subject to the purchaser obtaining the necessary regulatory consent associated with this. Local Authorities Somerset Council (Sedgemoor District) Viewings Viewings are by appointment with the vendor’s agent, Carter Jonas, on 01823 428590. Directions Heading from Junction 24 of the M5 motorway, follow signs towards North Petherton, taking the first exit off the roundabout onto the A38/Taunton Road into North Petherton. Continue on the A38 at the traffic lights at the turning to the market, and then take the right turn signed Goathurst, Clavelshay, Broomfield, and Fyne Court. Follow this road up the hill and out of North Petherton, until you reach the right turning at Dancing Hill. Turn right signed Woolmersdon and Durleigh. Follow this road for about one mile, continuing towards Bridgwater. Upon reaching the grass triangle with the right turn signed Bridgwater, turn right onto Rhode Lane. Follow this lane, passing Rhode Farm on the left-hand side, and take the second concrete entrance drive into Rhode Farm. The barn will be found on the right-hand side. What Three Words /// assets.select.song
Location
Key property details
- Accessibility
- Ask agent
- Parking
- Ask agent
- Garden
- No
- Carter Jonas reference
- TAU250046
Description
Chantry Barn, Bridgwater, Somerset, TA5 2AD A substantial barn for conversion to a dwelling. Chantry Barn comprises an impressive stone, brick and tile building with permission for conversion to a three/four-bedroom dwelling, together with a semi-detached stone, block, and tile building for use as a workshop/store, but with potential to provide further ancillary accommodation if desired. In all extending to 0.64 of an acre. For sale by private treaty. Location Chantry Barn occupies a peaceful setting with frontage to the adjoining lane. The property is situated at the foot of the Quantock Hills, which is designated as a National Landscape and offers numerous walking and riding opportunities together with far reaching views. The property benefits from excellent access with the M5 motorway at North Petherton (Junction 24) providing easy access to Taunton, Exeter, and Bristol and a train service from Taunton offers a fast train service to arrive at London Paddington within under two hours. The local towns of Bridgwater and North Petherton offer an excellent range of shopping facilities and services. The Property The barn comprises a substantial stone, brick, and tile building with permission for conversion to a three/four-bedroom detached dwelling. In addition, there is a semi-detached stone, block, and tile building for use as a workshop/store, but with potential to provide further ancillary accommodation if desired, subject to obtaining the necessary consent. Outside, the barn is set within a good-sized plot with ample space for a large garden and parking area, with a semi-detached stone, block and tile workshop/garage building off the entrance drive which has been re-roofed and partially re-built recently. Method of Sale The property is offered for sale by private treaty with a guide price of £350,000. Tenure & Possession The freehold of the property is offered for sale with vacant possession available upon completion. Planning Planning permission and listed building consent was granted in 2022 for the change of use and conversion of the barn to a detached dwelling and garage/workshop together with the formation of a parking area on the site of an agricultural building (to be demolished). The planning application reference number is 37/22/00002. The vendors have commenced work by removing a building on the planning site, which has been confirmed by the Planning Officer. Planning permission was previously granted under application 37/18/00078 for the conversion of the barn into two no. dwellings and garaging. This provided for a larger area of accommodation from the barn. The barn is grade II listed within the curtilage of the neighbouring property known as The Chantry, for which there are the usual rights to maintain the neighbouring buildings on the boundary of the property. Health & Safety Potential purchasers should take particular care when inspecting the site. The property currently comprises a redundant barn within a working farmstead with many potentially uneven and steep ground surfaces. Potential purchasers should be mindful of potentially sudden movements from livestock which may be present and machinery which may be operating at the time of inspection. Services The successful purchaser will need to establish new service connections for the property. Mains water and electricity appear to be available in the road adjoining the southern boundary. A package treatment plant will need to be installed by the purchaser. The vendor will grant the relevant easement for a discharge to the ditch within their retained land, subject to the purchaser obtaining the necessary regulatory consent associated with this. Local Authorities Somerset Council (Sedgemoor District) Viewings Viewings are by appointment with the vendor’s agent, Carter Jonas, on 01823 428590. Directions Heading from Junction 24 of the M5 motorway, follow signs towards North Petherton, taking the first exit off the roundabout onto the A38/Taunton Road into North Petherton. Continue on the A38 at the traffic lights at the turning to the market, and then take the right turn signed Goathurst, Clavelshay, Broomfield, and Fyne Court. Follow this road up the hill and out of North Petherton, until you reach the right turning at Dancing Hill. Turn right signed Woolmersdon and Durleigh. Follow this road for about one mile, continuing towards Bridgwater. Upon reaching the grass triangle with the right turn signed Bridgwater, turn right onto Rhode Lane. Follow this lane, passing Rhode Farm on the left-hand side, and take the second concrete entrance drive into Rhode Farm. The barn will be found on the right-hand side. What Three Words /// assets.select.song
Location
Key property details
- Accessibility
- Ask agent
- Parking
- Ask agent
- Garden
- No
- Carter Jonas reference
- TAU250046