Manor Farm, Ledsham LS25

Manor Farm, Ledsham LS25

Freehold

Offers over £750,000
Micklefield 2 miles
South Milford 2.7 miles
Castleford 3.2 miles

An exciting and rare opportunity to acquire a significant residential development site on the fringe of the sought after village of Ledsham, with detailed planning permission granted to create 2 barn conversions and 3 new dwellings in a delightful semi-rural setting.

Development opportunities of this nature are few and far between.

The sale of Manor Farm with the benefit of detailed planning permission is one of an increasingly rare opportunity to create 5 private residences in what will be a charming enclave of individual houses.

Manor Farm occupies a prominent corner position in the village, which is itself, surrounded by lovely open greenbelt countryside. Despite its semi-rural location, Ledsham is well placed for access to principal Yorkshire centres including those of Leeds, Selby, Wakefield, York and Harrogate and is almost equidistant from the A1, M1 and M62 motorways. Ledsham itself has a popular public house, parish church and there is a primary school in the neighbouring village of Ledston.

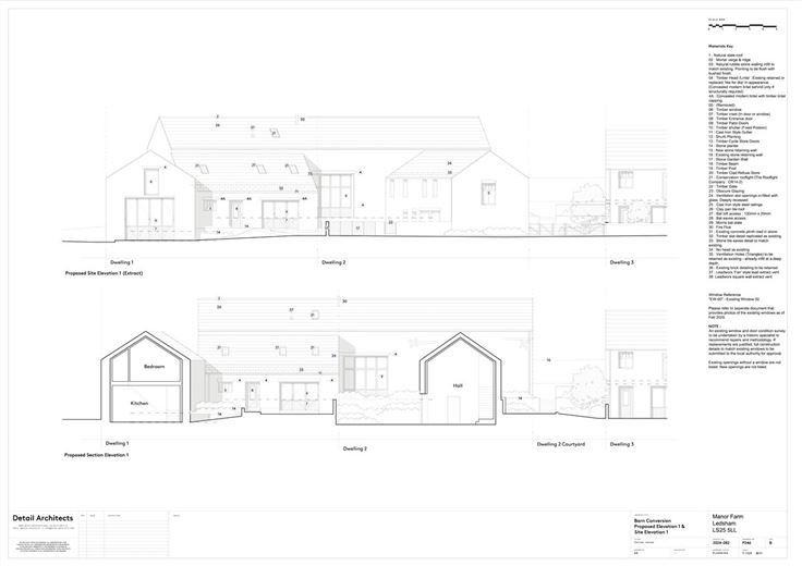
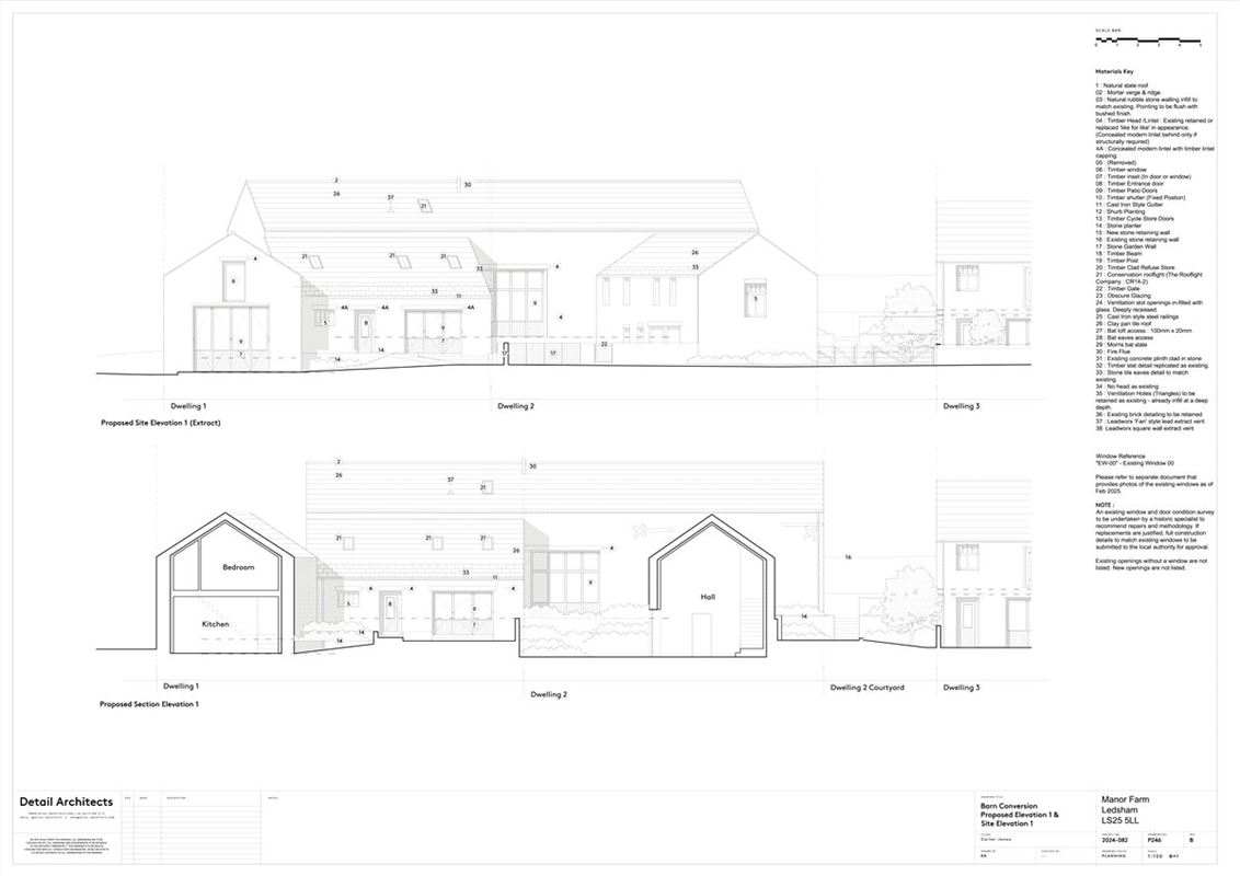
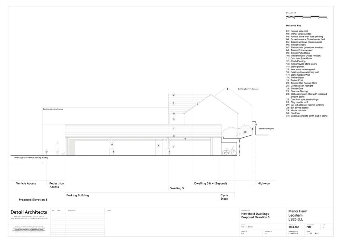
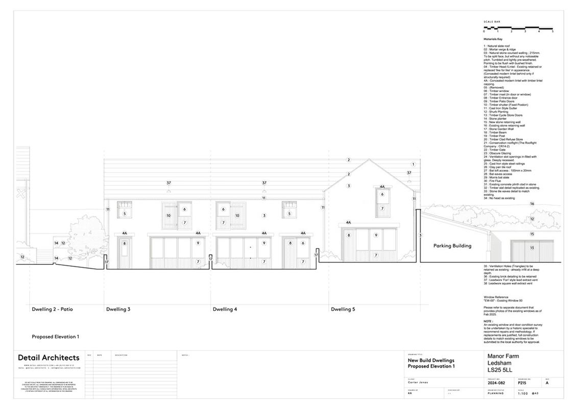
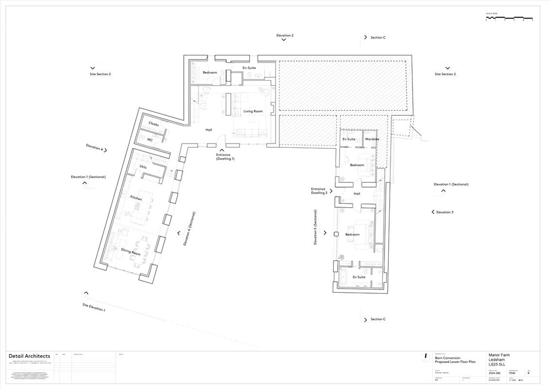
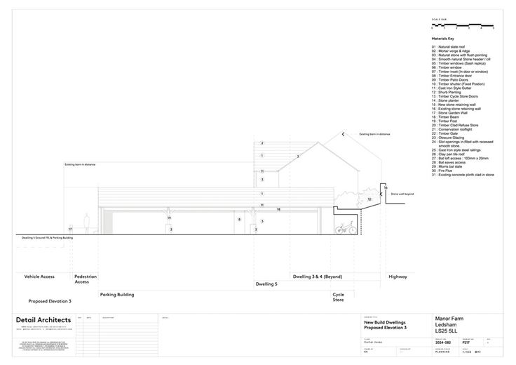
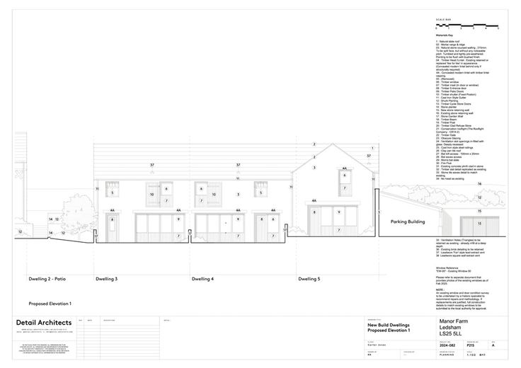
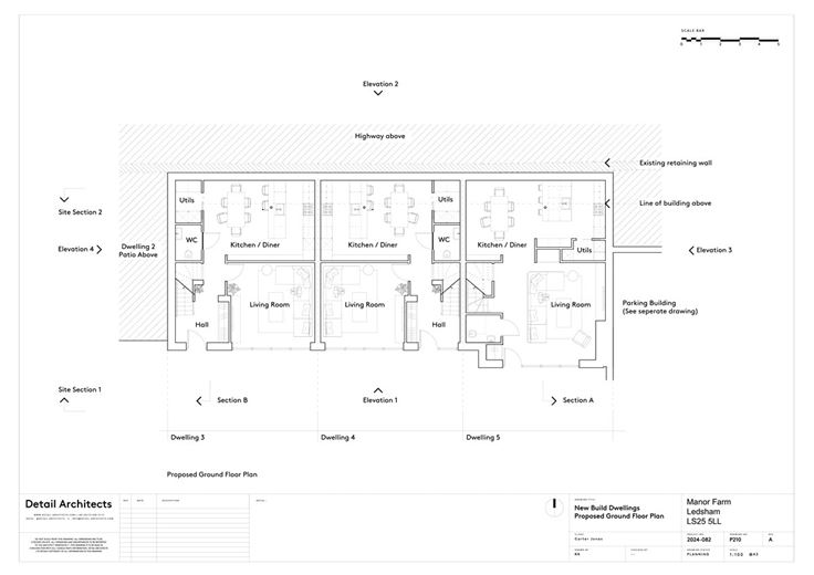
Full planning permission and listed buildings consent was granted by Leeds City Council for Change of use of agricultural land and buildings to C3 residential; conversion of barns to form two dwellings; demolition of modern agricultural buildings and erection of three dwellings and car barn; creation of new access, and hard and soft landscaping scheme on 18th August 2025 Application Number 22/00021/FU. Copies of the decision notices are attached to these sales particulars and a complete set of plans and associated documents are available on the Leeds planning web portal.

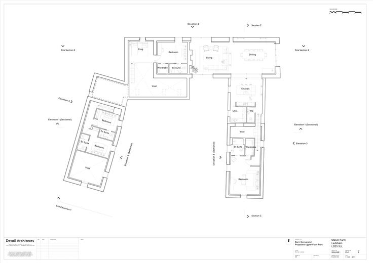
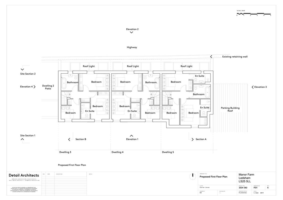
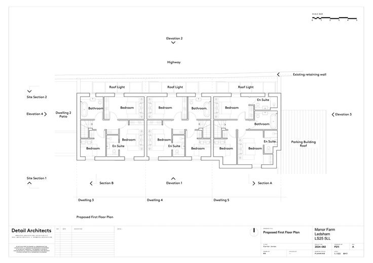
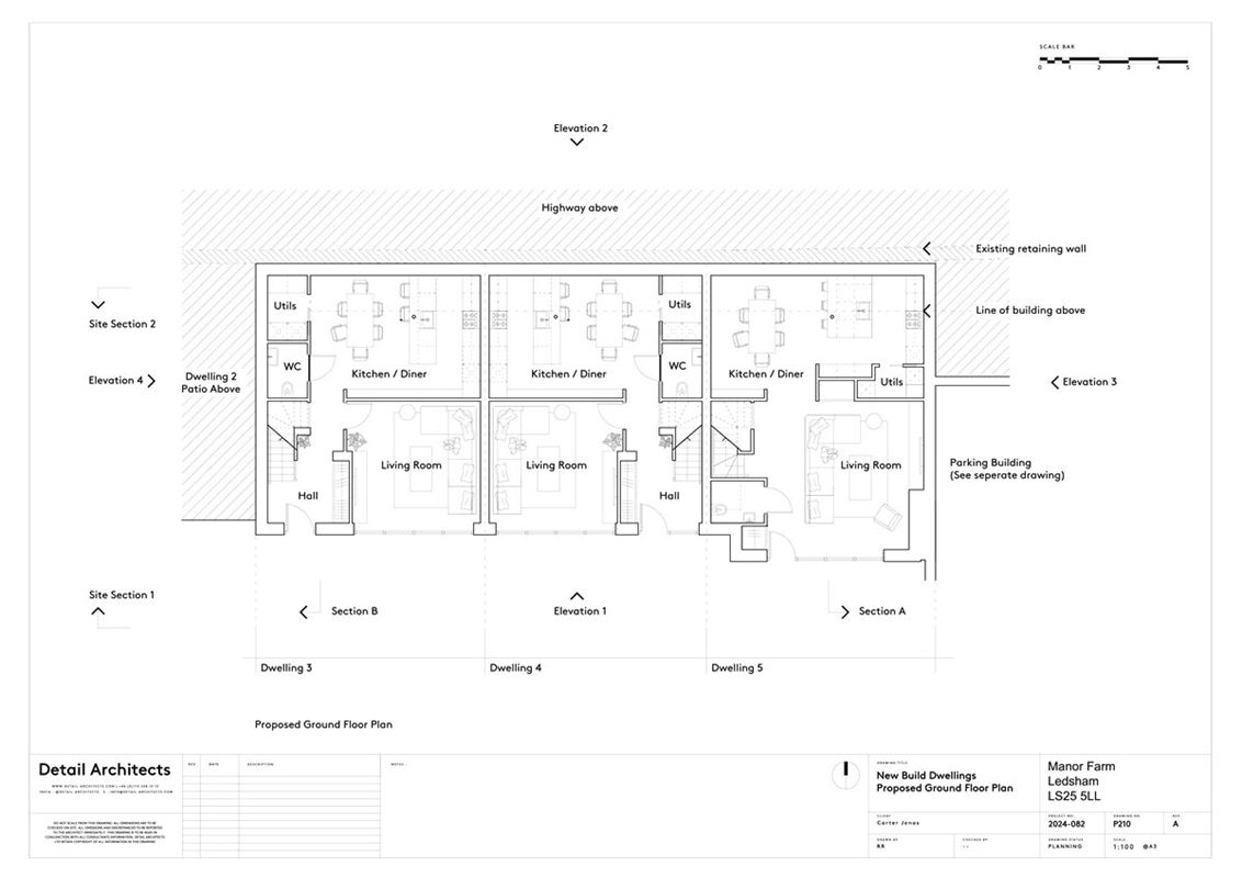
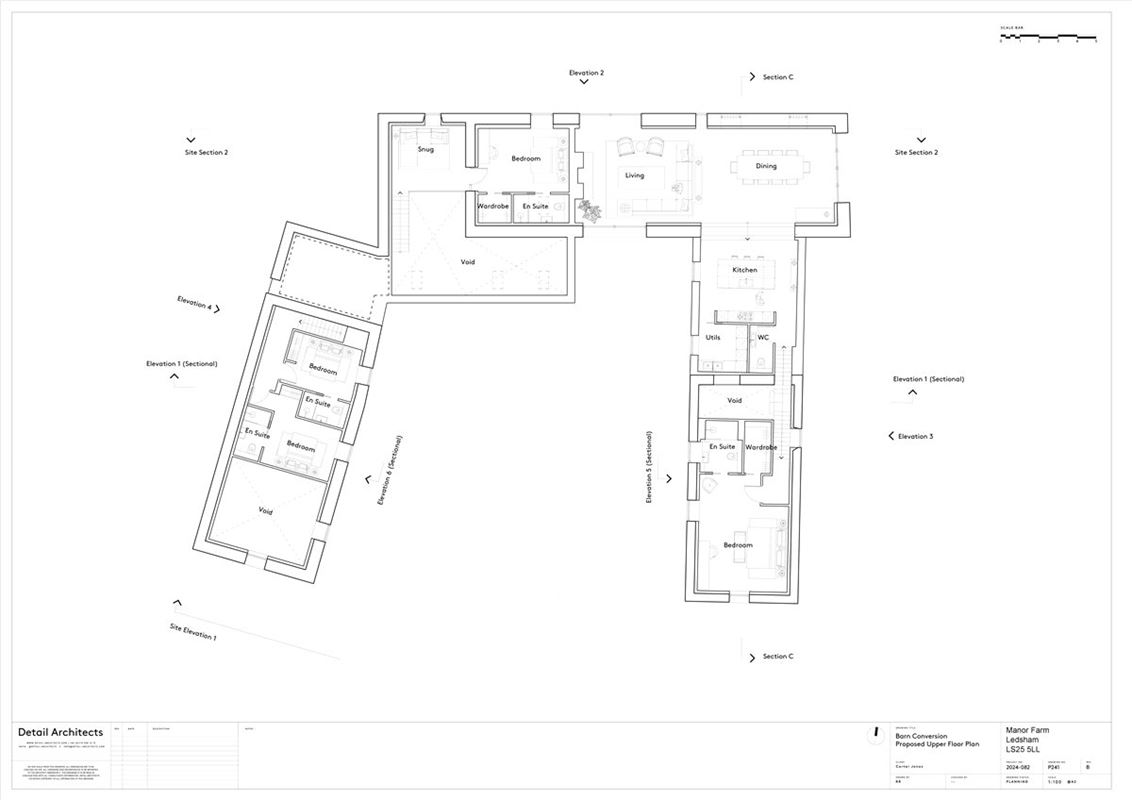
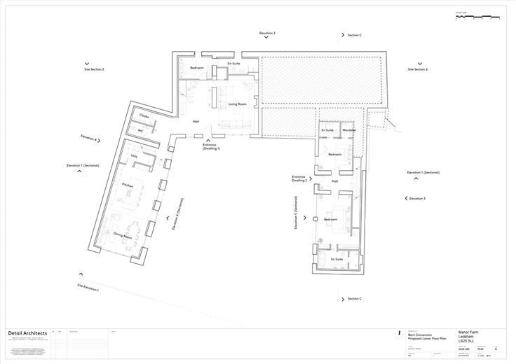
The proposed dwellings will comprise the following

Plot 1 - Barn Conversion with 4 bedrooms and 4 bathrooms - 2,190 square feet/204 square metres.
Plot 2 - Barn Conversion with 3 bedrooms and 3 bathrooms - 2,322 square feet/216 square metres.
Plot 3 - New Build, End Terrace 3 Bedrooms and 2 bathrooms - 1,146 square feet/106 square metres.
Plot 4 - New Build, Inner Terrace 3 Bedrooms and 2 bathrooms - 1,146 square feet/106 square metres.
Plot 5 - New Build, End Terrace 3 Bedrooms and 3 bathrooms - 1,235 square feet/115 square metres.

Total floor area – 8,039 square feet/ 747 square metres.

All 5 dwellings will have the benefit of 2 allocated carport/parking spaces with EV charging points.

The next steps...

Before making an offer on a property you will want to consider your financial situation, your income and outgoings.

Will you finance the purchase of your next property from the sale of an existing property which can put you in a chain, arrange a mortgage through your bank or buy the property outright.

To help you finance your next property purchase, we have a long established relationship with an independent mortgage broker who can discuss your situation with you.

Remember that having a 'mortgage decision in principle' can make you a more attractive buyer when you make an offer on a property. Contact our mortgage advisers for free, no obligation and impartial advice.

Some advantages of a broker are:

  • They do all the legwork for you, working on your behalf with the lender
  • They compare wholesale mortgage rates from a large number of banks and lenders all at once
  • Their wholesale interest rates can be lower than retail (bank branch) interest rates
  • They offer more loan options because they work with numerous banks and lenders
  • They can finance tricky deals because of their knowledge and various lending partners
  • They are typically easier to get in contact with, and are less bureaucratic.

However advantages of working with your bank are:

  • You may be able to build off an existing relationship (and gain discounts if you have a checking or savings account)
  • You may already know the banker who will handle your mortgage
  • Banks may be more accountable than a smaller shop
  • They may offer lower interest rates in some cases
  • Their ability to add mortgage to existing banking profile and make automatic payments from linked account.

When you see a property you are interested in on our website, call us 24/7 to arrange a viewing. Or if you prefer, get in touch via our website and we will call you back to find a time to view the property that suits you.

Once you’ve found a property you want to buy, it’s time to make an offer. A bit of negotiation is to be expected, however don't offer so little that you end up in a lengthy negotiation process, as you might lose the property altogether if someone else makes a higher bid.

If other offers have been made on a property we aren't legally able to tell you what they are, but we may indicate if they were close to the asking price.

If you have a property to sell, why not see how we can help you.

Or if you’re considering letting your property, we can take the stress out of managing your rental, and our award winning lettings team offer a service that can be tailored to your needs.

Combined with nearly 170 years of experience and one of the highest customer satisfaction scores in the industry, Carter Jonas is the perfect property partner.

Why not book a free, no obligation valuation of your property and find out how Carter Jonas can help you make your next move.

Key property details
Locality
Village
Tenure
Freehold
Carter Jonas reference
HAR250253

Suggested properties

Here are a few properties you might like, but within 2 extra miles of your current search

Offers over £685,000
2 bedroom flat
Asking price £835,000
5 bedroom house
Offers over £1,500,000
4 bedroom house
Guide price £550,000
4 bedroom house
£225,000
2 bedroom flat
Asking price £725,000
3 bedroom flat
Asking price £249,999
2 bedroom flat
Asking price £699,950
3 bedroom flat
Asking price £250,000
1 bedroom flat
Asking price £375,000
2 bedroom flat
Offers over £900,000
7 bedroom house
Asking price £1,295,000
10 bedroom house
Thinking of selling?

Find out what your property is worth