Chirk, Wrexham, LL14
Letting Fees
Download letting feesDeposit Required
£3,462
Description
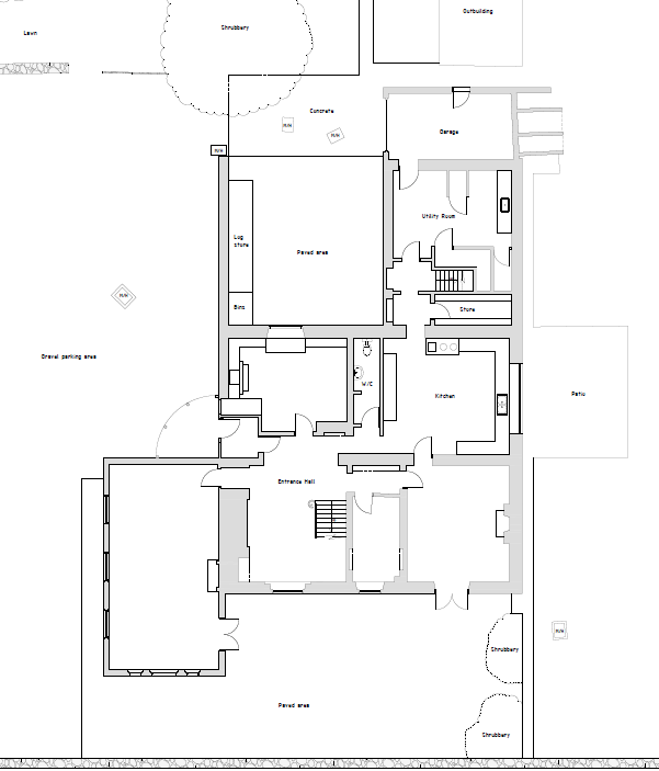
A large, detached property on a 0.88-acre plot with a spacious hardcore parking area, and a lawned garden to the front, to the rear is a second lawned garden which features a patio area. Attached is a single garage. The property recently under went internal renovation which included redecoration of a number of rooms, a new kitchen oven and extractor fan, new laminate flooring in the entrance hall, several new radiators, and new bathroom extractor fans. You enter the property into a spacious reception hall which provides carpeted stairs to the first floor. There are doors off to two reception rooms which benefit from open fireplaces and floor to ceiling windows, an office and the inner hallway. The inner hallway provides access to the third reception room, a downstairs W/C, and the kitchen which features fitted wall and base units, and a double sink. The kitchen leads to the rear lobby which has a pantry off, secondary stairs to the first floor, and a utility which benefits from fitted wall and base units, a sink, and plumbing for a washing machine. Ground Floor Accommodation (metres): Entrance Hall: 6.518 x 4.437 Reception Room 1: 4.853 x 9.088 Office: 2.078 x 3.814 Reception Room 2: 5.182 x 4.565 Kitchen: 5.188 x 5.613 Pantry: 3.432 x 1.399 W/C: 1.197 x 3.849 Reception Room 3: 4.152 x 4.791 Utility: 3.935 x 5.279 Garage: 5.583 x 2.932 The first-floor landing provides access to four bedrooms, a bathroom, and leads to the secondary landing. Bedroom 1 is the master suite which is a large double bedroom with a fitted wardrobe, there is a dressing room with a second fitted wardrobe, and an ensuite bathroom with a W/C, sink, and a bath. Bedroom two is a double bedroom with a fitted wardrobe, and an ensuite with a W/C, sink, and a bath – this ensuite can also be accessed off the landing. Bedroom 3 is a double bedroom with a fitted wardrobe. Bedroom 4 is a small double bedroom with a fitted wardrobe. The family bathroom has a W/C, sink, and a bath. The secondary landing can be accessed through a door off the main landing, or by stairs in ground floor rear lobby, it provides access to two more bedrooms and a bathroom. Bedroom 5 is a single bedroom with a fitted wardrobe. Bedroom 6 is a double bedroom with a fitted wardrobe. There is a bathroom with a W/C, sink, bath, and a shower cubicle. The secondary landing offers a boiler room and small steps to the loft rooms. The property benefits from oil fired central heating, mains & bore hole water supply, septic tank drainage, two wood-burning stoves & Aga. Pets considered.
Location
Key property details
- Accessibility
- Ask agent
- Parking
- Ask agent
- Garden
- No
- Letting type
- Long let
- Minimum tenancy
- 12 months
- Carter Jonas reference
- SYR240039
Description
A large, detached property on a 0.88-acre plot with a spacious hardcore parking area, and a lawned garden to the front, to the rear is a second lawned garden which features a patio area. Attached is a single garage. The property recently under went internal renovation which included redecoration of a number of rooms, a new kitchen oven and extractor fan, new laminate flooring in the entrance hall, several new radiators, and new bathroom extractor fans. You enter the property into a spacious reception hall which provides carpeted stairs to the first floor. There are doors off to two reception rooms which benefit from open fireplaces and floor to ceiling windows, an office and the inner hallway. The inner hallway provides access to the third reception room, a downstairs W/C, and the kitchen which features fitted wall and base units, and a double sink. The kitchen leads to the rear lobby which has a pantry off, secondary stairs to the first floor, and a utility which benefits from fitted wall and base units, a sink, and plumbing for a washing machine. Ground Floor Accommodation (metres): Entrance Hall: 6.518 x 4.437 Reception Room 1: 4.853 x 9.088 Office: 2.078 x 3.814 Reception Room 2: 5.182 x 4.565 Kitchen: 5.188 x 5.613 Pantry: 3.432 x 1.399 W/C: 1.197 x 3.849 Reception Room 3: 4.152 x 4.791 Utility: 3.935 x 5.279 Garage: 5.583 x 2.932 The first-floor landing provides access to four bedrooms, a bathroom, and leads to the secondary landing. Bedroom 1 is the master suite which is a large double bedroom with a fitted wardrobe, there is a dressing room with a second fitted wardrobe, and an ensuite bathroom with a W/C, sink, and a bath. Bedroom two is a double bedroom with a fitted wardrobe, and an ensuite with a W/C, sink, and a bath – this ensuite can also be accessed off the landing. Bedroom 3 is a double bedroom with a fitted wardrobe. Bedroom 4 is a small double bedroom with a fitted wardrobe. The family bathroom has a W/C, sink, and a bath. The secondary landing can be accessed through a door off the main landing, or by stairs in ground floor rear lobby, it provides access to two more bedrooms and a bathroom. Bedroom 5 is a single bedroom with a fitted wardrobe. Bedroom 6 is a double bedroom with a fitted wardrobe. There is a bathroom with a W/C, sink, bath, and a shower cubicle. The secondary landing offers a boiler room and small steps to the loft rooms. The property benefits from oil fired central heating, mains & bore hole water supply, septic tank drainage, two wood-burning stoves & Aga. Pets considered.
Location
Key property details
- Accessibility
- Ask agent
- Parking
- Ask agent
- Garden
- No
- Letting type
- Long let
- Minimum tenancy
- 12 months
- Carter Jonas reference
- SYR240039
